查看完整案例

收藏

下载
项目名称:法国巴黎国际大学城中国学舍
位置:法国
设计公司: 非常建筑, CAAU
摄影师:田方方
中国学舍位于巴黎14区内的国际大学城。巴黎市于1925年创建大学城,旨在为留学生提供住宿。目前有40余栋以国家命名的宿舍楼。大学城以其优秀的建筑闻名于世,其中包括杜达克(Willem M. Dudok)设计的荷兰学院、勒柯布希耶设计的瑞士馆、寇斯塔(Lucio Costa)和勒柯布希耶联手设计的巴西之家、巴杭(Claude Parent)设计的伊朗馆等等。1930年,巴黎大学城免费提供给中国一块建设用地,中国旅法建筑学生虞炳烈将中国学舍作为他的毕业设计题目。此前,巴黎多个院校的中国留学生已组成巴黎大学城中国学舍促成会,发表声明呼吁修建中国学舍。鉴于当时形势,项目未能推进。虞炳烈的中国学舍设计图纸现藏于南京东南大学档案馆內。2017年,中法两国联合组织设计竞赛,征求中国学舍(正式命名为中国基金会)的建筑方案。
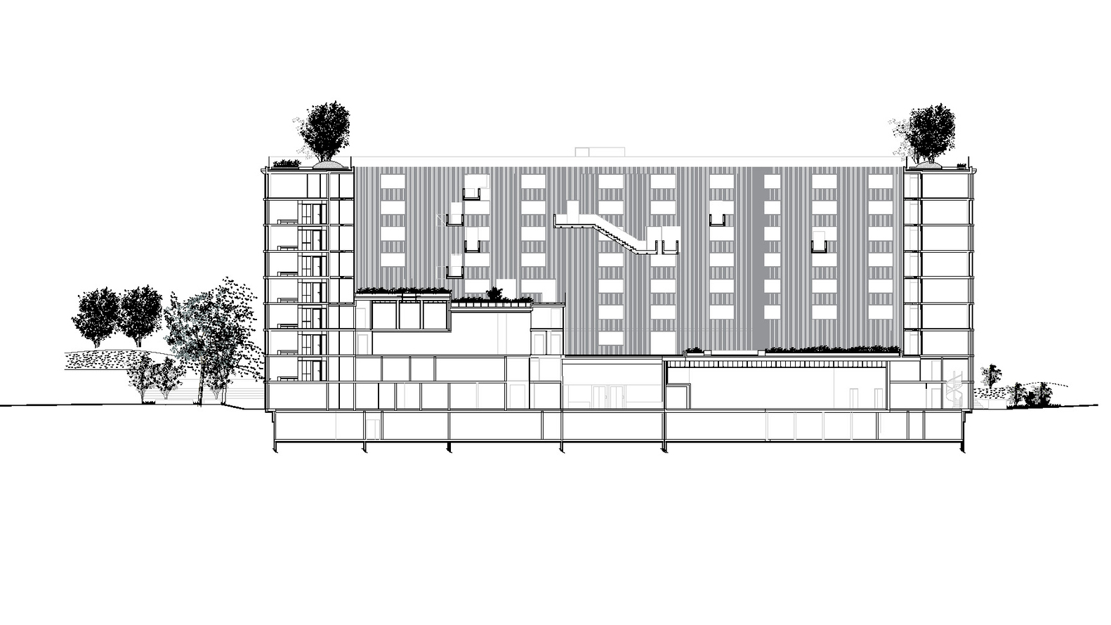
非常建筑和法国CAAU团队在5组中法建筑师联盟中胜出。中国学舍的基地在巴黎大学城的西南边缘地带,北临两个大学城运动场之一,南依园区外的巴黎环路。我们在设计构思的初始曾把该栋300间单间学生宿舍及500座文化活动厅建筑想象成为一个村落。为了使项目更好地与相对狭长的基地条件结合,我们以中国南方传统家族集合住宅 - 土楼(又称大圆楼)为参考,从村落的概念演化出一个8层不规则开口环状体量的建筑方案。勒柯布希耶瑞士馆设计的一个核心理念是健康生活。我们也认同此价值观。因此,我们在土楼的基础上发展出宿舍房间围绕中央庭院/花园的空间关系,让学生有尽可能多机会去走出户外接近自然。建筑的屋顶也设计成全楼垂直景观的一部分,学生可通过中心庭院中的楼梯及一系列平台到达,在屋面上具有中国意味的园林中一览巴黎风光。
因此,中国学舍也获得了“和园”的别称。与虞炳烈时代用形式形象表达中国文化的方式有所不同,我们更是通过空间及匠意来传递中国建筑文化的精髓。我们在中国学舍建筑表面采用了手制青灰色粘土砖。进而,借鉴不同的中国传统砌筑工艺,做出漏空、花格、叠涩等手法的现代版砖工表现,使材料和工艺成为体现中国精神的建筑形式语言的一部分。建筑表面的波动意在解决宿舍房间重复的单调,强化构成整体的个体单元,同时削弱环路的噪音污染。木格栅构成中央庭院周边的建筑界面。木材与青砖一起使用复述了中国古代之建筑即土木的观念。然而,这个建筑也属于巴黎,欧洲生产的手工青砖告诉我们人类的建造文化是相通的。
法国巴黎国际大学城中国学舍外部实景图
法国巴黎国际大学城中国学舍外部实景图
法国巴黎国际大学城中国学舍外部实景图
法国巴黎国际大学城中国学舍外部实景图
法国巴黎国际大学城中国学舍外部实景图
法国巴黎国际大学城中国学舍外部实景图
法国巴黎国际大学城中国学舍外部实景图
法国巴黎国际大学城中国学舍外部实景图
法国巴黎国际大学城中国学舍外部实景图
法国巴黎国际大学城中国学舍外部实景图
法国巴黎国际大学城中国学舍外部实景图
法国巴黎国际大学城中国学舍外部实景图
法国巴黎国际大学城中国学舍外部实景图
法国巴黎国际大学城中国学舍外部实景图
法国巴黎国际大学城中国学舍内部实景图
法国巴黎国际大学城中国学舍平面图
法国巴黎国际大学城中国学舍平面图
法国巴黎国际大学城中国学舍剖面图
法国巴黎国际大学城中国学舍立面图
客服
消息
收藏
下载
最近






















