查看完整案例

收藏

下载
项目名称:巴西A2房屋
位置:巴西
建筑师: 卡拉乔·阿尔基托什
该住宅位于市的一栋公寓内鲍鲁,在一块从后面到前面有明显坡度的土地上,允许在两个层面上进行布置。主入口在相对于街道的二楼,实际上占据了建筑项目的整个范围。进入是通过一个横向混凝土楼梯,从地面开始,旁边是车库和一个多功能的复杂的内部连接到住宅,目前被居民用作办公室。立面由两个混凝土山墙描绘,由混凝土柱子支撑,不仅将结构连接在一起,还沿着建筑的整个侧面延伸,贯穿内部空间。无论是内部还是外部,从结构到内部细节,自然元素在住宅的所有尺度上都很突出。暴露的混凝土、屋内和外甲板上的木地板、大玻璃面板和烧焦的木板等元素被用来连接空间。室内家具由著名巴西艺术家签名的作品和室内设计师精心挑选的作品组成,室内设计师也是房子的主人。
巴西A2房屋外部实景图
巴西A2房屋外部实景图
巴西A2房屋内部实景图
巴西A2房屋内部实景图
巴西A2房屋内部实景图
巴西A2房屋内部实景图
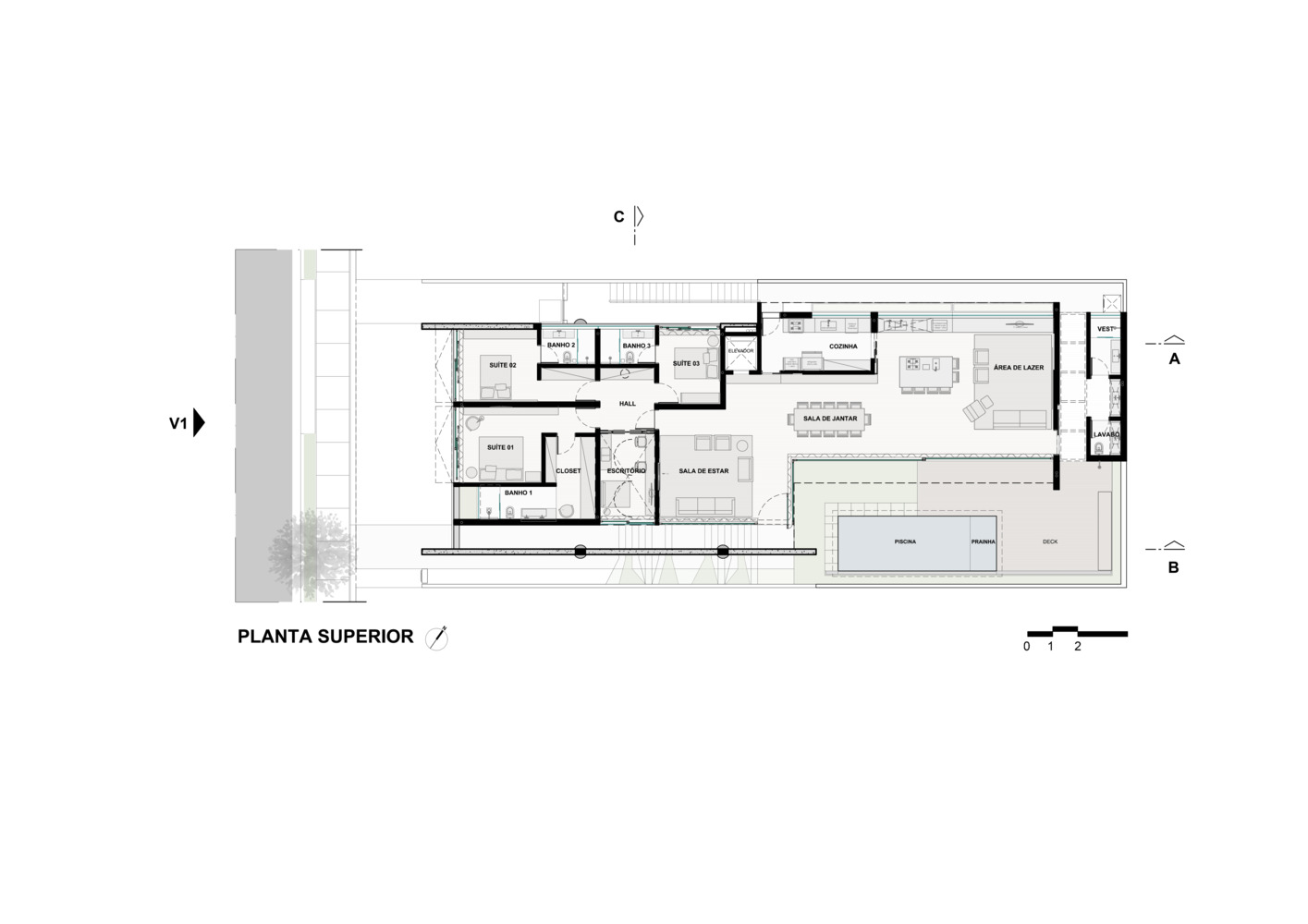
巴西A2房屋平面图
巴西A2房屋平面图
巴西A2房屋平面图
巴西A2房屋剖面和立面图
巴西A2房屋剖面图
巴西A2房屋剖面图
客服
消息
收藏
下载
最近















