查看完整案例

收藏

下载
项目名称:哥斯达黎加天井屋
位置:哥斯达黎加
建筑师: 卡尼尔·阿奎特科斯
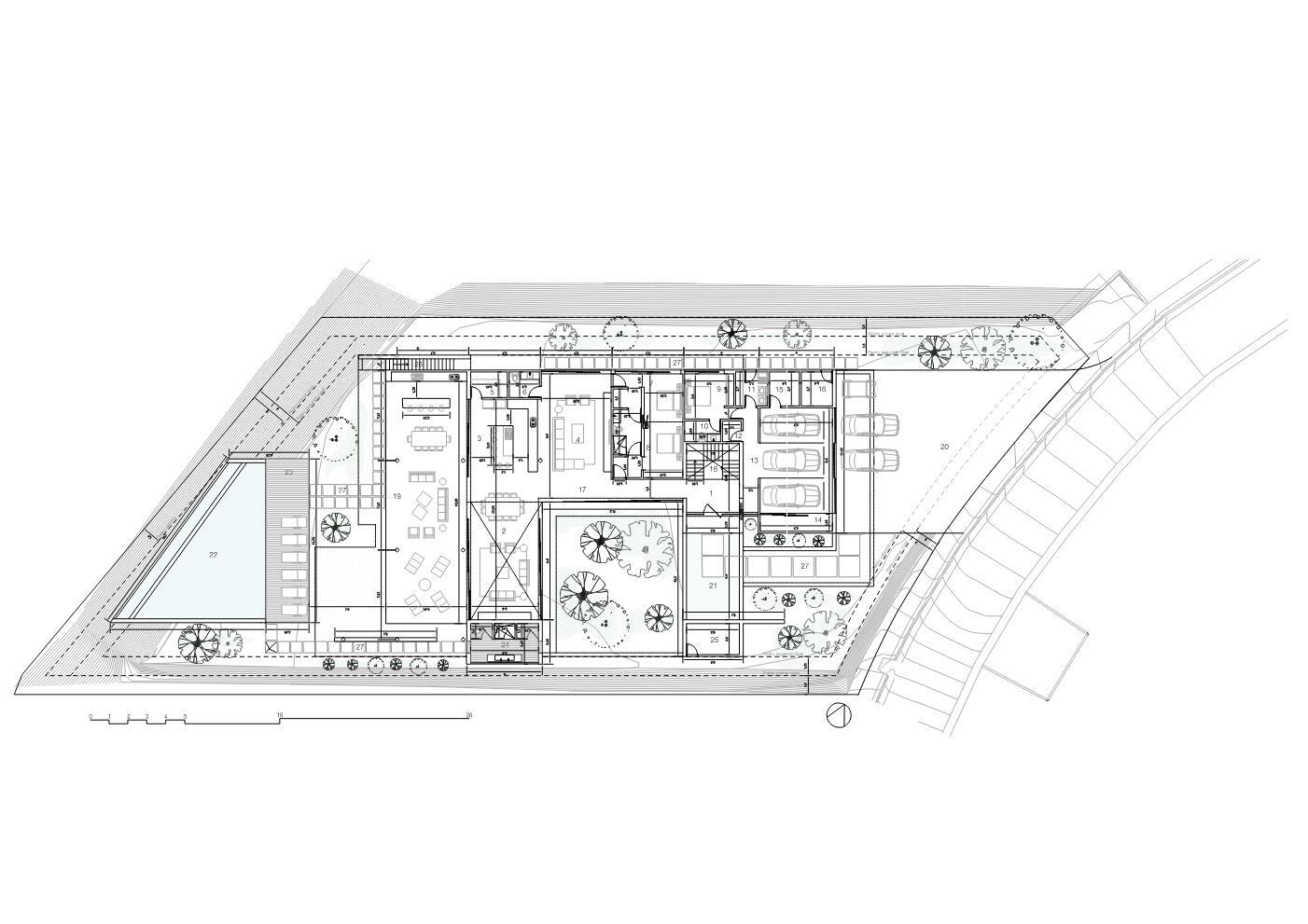
Casa Patio位于蓬塔雷纳斯位于哥斯达黎加太平洋海岸的普拉亚赫莫萨豪华住宅区。该项目是在一个1924平方米的物业内开发的,周围有花园,位于环绕社区的热带自然中心,西侧是太平洋。该土地的特点是平坦,两侧有两个斜坡,将相邻的地块分开。在它的两个主要端,一个入口面对公共街道,另一个可以看到大海。该住宅的设计面积为800平方米,设计意图是创造一个带有私人区域的主街区,社交区是主街区的横向街区,优先考虑海景。第二层的私人地块为第一层的露台、融入露台的主要社交空间以及包含植被的中央露台提供了覆盖和遮荫,从而为该露台周围的区域提供了生物气候处理。这个项目是从东到西的,它的主要景观是临海的,幸运的是在这里可以看到日落。它有完整的服务区,5间次卧室,主卧室,和面向西方的大型社交区,让你享受与大海融合的日落。围绕主天井的建筑方案的组成给了这座房子新鲜和透明的花园,它将外部和内部融为一体,创造了一种“总是与自然共享”的感觉。我们把这个住宅的设计称为“当代热带”,我们把它带到了现代,但没有忘记气候和它在哥斯达黎加的位置,使用了混凝土、金属和玻璃等材料,混合了木材、粘土砖和植被,软化了现代,增加了温暖。此外,这些材料有助于我们在项目中提出的生物气候设计。
哥斯达黎加天井屋外部实景图
哥斯达黎加天井屋外部实景图
哥斯达黎加天井屋外部实景图
哥斯达黎加天井屋外部实景图
哥斯达黎加天井屋外部实景图
哥斯达黎加天井屋外部实景图
哥斯达黎加天井屋外部实景图
哥斯达黎加天井屋外部实景图
哥斯达黎加天井屋外部实景图
哥斯达黎加天井屋外部实景图
哥斯达黎加天井屋外部实景图
哥斯达黎加天井屋外部实景图
哥斯达黎加天井屋外部实景图
哥斯达黎加天井屋外部实景图
哥斯达黎加天井屋外部实景图
哥斯达黎加天井屋外部实景图
哥斯达黎加天井屋外部实景图
哥斯达黎加天井屋外部实景图
哥斯达黎加天井屋外部实景图
哥斯达黎加天井屋外部实景图
哥斯达黎加天井屋外部实景图
哥斯达黎加天井屋内部实景图
哥斯达黎加天井屋内部实景图
哥斯达黎加天井屋内部实景图
哥斯达黎加天井屋内部实景图
哥斯达黎加天井屋内部实景图
哥斯达黎加天井屋内部实景图
哥斯达黎加天井屋内部实景图
哥斯达黎加天井屋平面图
哥斯达黎加天井屋平面图
哥斯达黎加天井屋立面图
哥斯达黎加天井屋立面图
哥斯达黎加天井屋立面图
客服
消息
收藏
下载
最近



































