查看完整案例

收藏

下载

翻译
Architect:ORG Permanent Modernity
Location:Brussels, Belgium; | ;View Map
Project Year:2015
Category:Supermarkets
The Abattoir Foodmet, a Mixed-use marketis located in the immigrant neighborhood of Anderlecht, Brussels, Belgium less than 2.5km (1.5mi) from
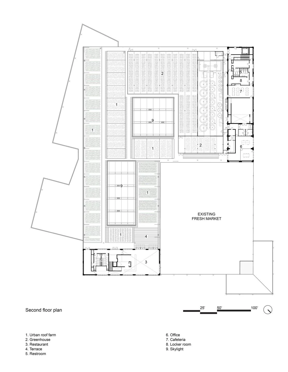
train station. The project includes industrial meat production facilities, various market stall types, logistics and parking spaces, and a large commercial roof farm (4000 m
, 43,000 ft
) with related retail programs including a farm-to-table restaurant. The market building, opened in June 2015, is the first phase of a district plan, which will convert an industrial slaughter house into a mixed-urban environment.
The project has been exhibited, recognized and published widely, including: a 2016 Honor Award for Design Excellence by the Boston Society of Architects;A full scale mock-up of the project's enclosure system “platonic panels” was exhibited at the 2016 Venice Biennale as part of the Arsenale Main Pavilion; the Brussels Market Building was published in Revista Plot 38 (Argentina); and an upcoming feature on Urban Spaces in Detail Magazine (Germany).
The Mixed-use market is built with a consistent architectural language, called ‘platonic panels’. The panels form over-dimensioned porticos that are able to be combined in a many different ways. The platonic panels create a building that is generous, flexible, and monumental. The dozens of large identical rooms, each connected with every adjacent one, could accommodate almost any use. Like Kazimir Malevich’s ‘White on White’, the space of the building reflects the self-identity and pluralism of its inhabitants. Here, market life is celebrated and given a civic presence.
The district master plan creates physical and visual through connections in the existing fabric, enhancing multiple links between the Abattoir site and the surrounding neighborhoods. In this way, the site is a focal point. The master plan proposes to create a 60,000 m
urban space at the center of the site, which can host other socio-cultural events alongside market activities.
The district has a very clear outline. The new plan defines its borders by a typology of urban warehouses, open-ended containers, buildings that have a clear urban form, but no predefined content. The warehouse form and type, not just end use and program, are essential to defining the spatial condition of the square and encourage investment and occupation. The warehouse form is compact with various strategies for light and air, and with the addition of tower elements, which can be seen from far away and further strengthen their form and demarcation of the public zone.
Professional urban planners, designers, technology, and financial experts from ORG have been guiding and advising the district redevelopment for more than 10 years. While designing the plan, we also guided neighborhood and city outreach and consensus building; created a ‘quality chamber’ to review the ongoing work and submit it to critiques of key civic stakeholders; did the economic modeling; applied and found grants to support capital improvements; and developed a sequence of pilot projects, where each investment triggered the opening up of a site somewhere else, thus allowing for a domino-effect of implementation. The first market building was completed in June 2015, with further plans and proposals for other buildings within the masterplan underway.
▼项目更多图片
客服
消息
收藏
下载
最近































