查看完整案例

收藏

下载
项目名称:渭南八一村的玻璃砖住宅
位置:渭南
建筑师: XAUAT
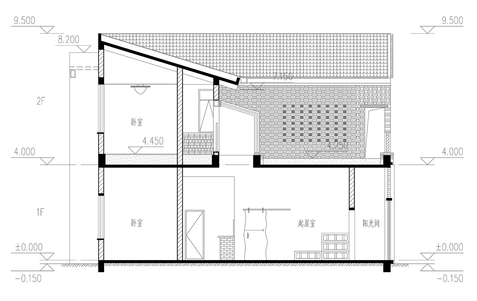
该住宅位于临渭区八一村,渭南陕西省城市。它最初建于2000年左右,是一座单层平顶建筑,采用砖石结构,内部有横梁和结构柱。经对该民居结构进行安全检测鉴定,该建筑安全性能符合现行规范要求,但由于多年无人入住,存在屋顶渗水、室内通风采光差、内墙发霉等问题。业主希望对民居进行改扩建,增加功能单元,延续关中民居的坡屋顶形式,保留庭院绿化,控制建设成本。通过对既有住宅的结构检查,掌握内部结构特点,遵循附加结构的安全性、适应性、经济性原则,二层采用“砌体+框架”混合结构,主体为砌体结构,圈梁和构造柱加强结构刚度;玻璃砖墙部分为钢筋混凝土框架结构,空间划分灵活;屋顶是一个檩条系统。屋顶为轻钢结构,带檩条体系,大大减轻了自重,最上层覆盖机制红瓦。从南到北限制了大门井和主住宅的空间分布,有前、中、后三个庭院。前院作为民居与国道之间的缓冲区,满足停车和农作物种植的需要;中央内院是满足日常休息、娱乐、观景需求的主要生活区,后院是仓储及设备管道埋井区。
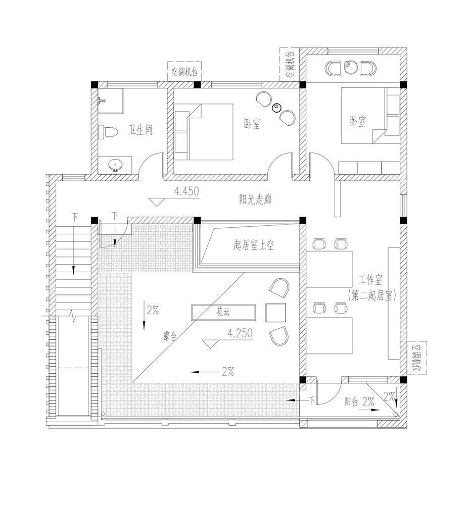
改造后的两层公寓,围绕居住功能,采用交通空间集中布局。首层进户门和阳光走廊设置在南面,客厅、餐厅、酒吧等公共空间布置在中间。西侧的直楼梯提供了到二楼的垂直交通,是一种延伸的客厅功能,按照上下两层的逻辑围绕室外露台呈L型布置。朝南的坡屋顶装有太阳能光伏板,以满足住宅的日常用电需求。生态和环境与居民的生活质量密切相关。玻璃砖住宅侧重于绿色和宜居品质改善技术在现代民居中的适应性应用,强调当地风、光、水和其他自然因素对住宅的影响,并应对四季气候的变化。南向阳光房采用大中空玻璃块和长条形窗户,最大化采光面积;客厅上部去掉部分原有楼板增加采光和通风井,改善室内采光的同时利用热压促进自然通风。外窗采用铝合金边框和Low-E中空玻璃,严格控制开启面积,便于夏季自然通风,冬季阻隔外界风吹和寒冷。
为解决与住宅南侧相邻的108国道交通噪声问题,住宅一、二层卧室分布在北侧,南向分别设置阳光房作为空间缓冲,南向外墙采用隔音性能优异、透光率高的中空玻璃块,以达到良好的降噪降噪效果。屋顶延续了关中传统民居“闷屋顶”的形式,作为冬夏两季的气候缓冲,对主要居住空间起到保温隔热的作用;南向外墙安装阳光房,墙体应用高性能相变蓄热材料,白天吸热,晚上缓慢放热;卧室和起居室的外墙采用内保温。卧室和起居室的外墙均采用内保温,以满足保温要求。屋顶铺设太阳能光伏板,为室内石墨烯取暖设备供电,实现全民居零碳取暖。为实现关中地区雨水的循环利用和污水处理回灌,结合水景,在中央庭院东侧设置雨水净化系统,最终引入蓄水池,为庭院提供灌溉和景观用水;室内卫生间通过管道接入后院东侧的三格式化粪池,经生态湿地净化后排入北侧农田;淋浴、洗衣、厨房等生活污水就近排入。
淋浴、洗衣、厨房的生活污水排入后院西侧的三缸污水处理池,净化后通过管道排入前院的蓄水池,用于农田灌溉。在农村经济薄弱地区使用低成本的技术手段,在住宅整体功能和性能上的经济投入,对西北农村既有住宅的改造升级具有重要意义。传统聚落和民居的本土特色体现在选址、朝向、平面布局、空间组合、建筑材料和结构处理等方面,反映了人们根据自然规律创造良好生活环境的思想和经验。从设计到施工渭南八一村玻璃砖民居着眼于关中民居的文脉、材料、创新、技术,将传统建筑技术与现代建筑空间设计理论相结合,合理利用和继承原有的材料结构和结构体系,创造了关中民居的新模式,并通过实验和示范研究,逐步将民居推向现代和绿色。
渭南八一村的玻璃砖住宅外部实景图
渭南八一村的玻璃砖住宅外部实景图
渭南八一村的玻璃砖住宅外部实景图
渭南八一村的玻璃砖住宅外部实景图
渭南八一村的玻璃砖住宅外部实景图
渭南八一村的玻璃砖住宅外部实景图
渭南八一村的玻璃砖住宅内部实景图
渭南八一村的玻璃砖住宅内部实景图
渭南八一村的玻璃砖住宅内部实景图
渭南八一村的玻璃砖住宅内部实景图
渭南八一村的玻璃砖住宅内部实景图
渭南八一村的玻璃砖住宅内部实景图
渭南八一村的玻璃砖住宅内部实景图
渭南八一村的玻璃砖住宅内部实景图
渭南八一村的玻璃砖住宅内部实景图
渭南八一村的玻璃砖住宅内部实景图
渭南八一村的玻璃砖住宅平面图
渭南八一村的玻璃砖住宅平面图
渭南八一村的玻璃砖住宅平面图
渭南八一村的玻璃砖住宅平面图
渭南八一村的玻璃砖住宅立面图
渭南八一村的玻璃砖住宅立面图
渭南八一村的玻璃砖住宅剖面图
渭南八一村的玻璃砖住宅剖面图
客服
消息
收藏
下载
最近


























