查看完整案例

收藏

下载

翻译
Architect:E32 Studios
Location:Soria, Spain; | ;View Map
Project Year:2018
Category:Warehouses
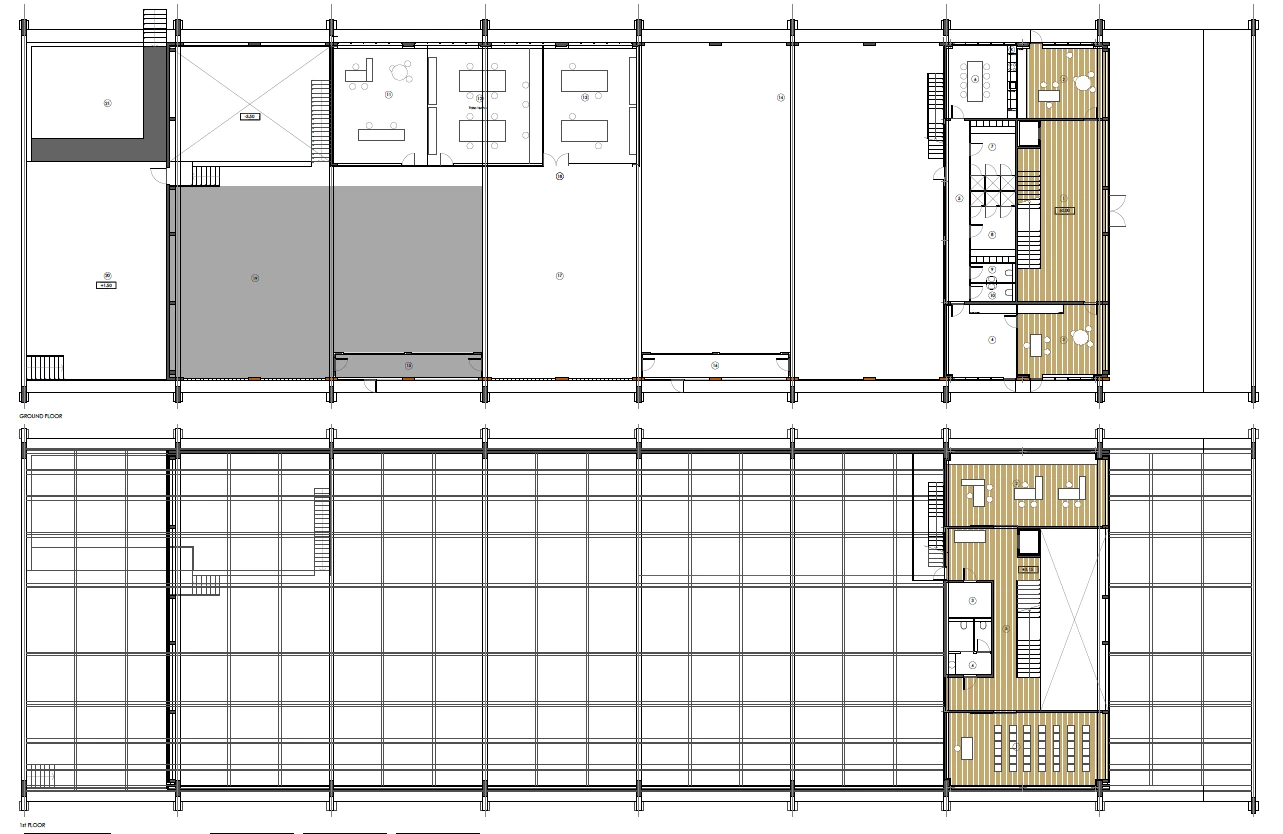
The industrial warehouse project in Soria demonstrates the importance of the environment as an architectural element, not only in the physical sense, but also in the cultural, social, and urban one. Very specific technical requirements were evidenced: a very marked industrial environment, with strict climatic conditions and an isolated environment. The project consists of the architectural and construction design of an industrial warehouse for the distillation of natural resin and derivatives.
It is proposed with the intention of understanding how such an industrialized environment can be related to the program, meeting the client's demands, the technical requirements and also enjoying something visually beautiful and in harmony with the space.
The studied parabolic shape offers a more aerodynamic aspect to the building as well as multiple advantages at a structural level and material reduction. The project ends up having a formal, structural and aesthetic coherence as well.
The Almazan program is located on a 1,760 m2 plot in the city of Soria, located in the east of the autonomous community of Castilla y León, in Spain. It is a very arid and dry territory, characterized by frequent snowfalls in winter and high temperatures in summer.
The nave follows a rectangular plan that houses the entire program in a single building, with a parabolashaped roof. This geometry allows for a series of outstanding advantages to improve the performance of the infrastructure: firstly, it allows rainwater and snow to be drained efficiently, being able to collect it in a cistern and reuse it on other occasions. Secondly, the height of the warehouse requires 18 free meters for the correct development of the industrial activity: the fact that the roof is losing height responds to the optimization of the interior volume without losing the necessary meters. We reduce the volume of the building by 20% compared to an orthogonal nave, improving and optimizing the comfort conditions inside.
It is a warehouse with a laminated wood structure covered with sandwich panels. In this way, the material that would normally be used in a cubic building is reduced by 30%, achieving the desired height while respecting the integration of the entire program in terms of design, research and the environment. It is also more aerodynamic; the structural dimension is smaller and it has advantageous consequences. The foundation plan is made up of footings and braces throughout the entire nave and can rest on each footing, by means of a pilaster, a patella to receive the main wooden structure that forms the parabolic arch of each portico. Above the reinforced concrete pilasters, an appropriate articulated joint links the main structure of the nave with its foundations.
This entails optimizing the foundation and the structure itself. The main parabolic trusses that make up the nave are made of laminated wood and treated in an autoclave. The straps will be made of wood with a bay length of 10 meters. As for the main enclosures, that is, those that make up the parabola, they have been made with a curtain wall base with a laminated wood substructure to hold the structure of the curtain wall itself. The longitudinal enclosures, which will be approximately 6 meters high, will be based on prefabricated concrete blocks. Leaving a series of openings generating access points based on tilting doors made of painted sheet steel and operated manually. The project ends up having a formal, structural and aesthetic coherence.
Principal Architect: Alexis Martínez de San Vicente Cals
▼项目更多图片
客服
消息
收藏
下载
最近
































