查看完整案例

收藏

下载
项目名称:阿根廷Casa Bayo住宅
位置:阿根廷
建筑师: Set.ideas
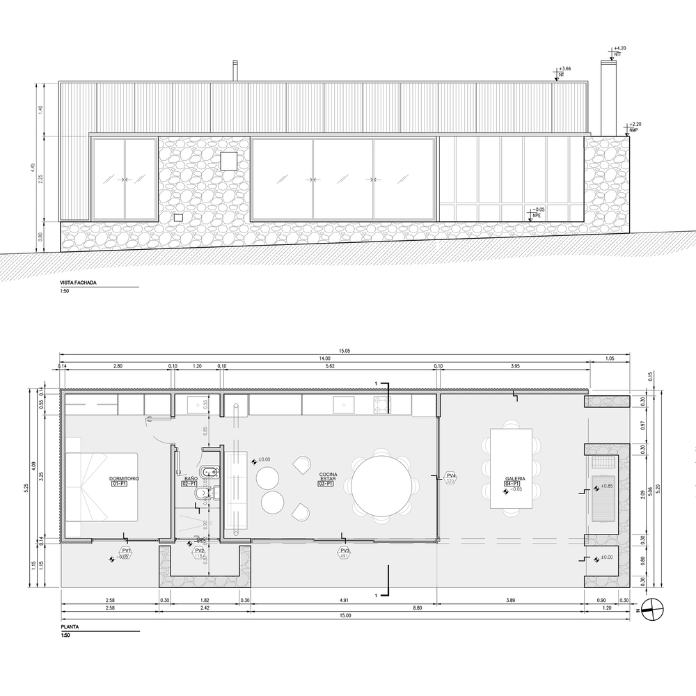
位于圣克莱门特,科尔多瓦,这个模块化的房子被移植在洛斯吉甘特斯山脉脚下的一块缓坡土地上。这座40平方米的带屋顶和22平方米半屋顶的房子的空间布局中,朝向山脉的景观发挥了重要作用。平方米的优化定义了高效的空间,分为两个功能组:服务区和社交空间。西南面是湿室和储物区,东北面是客厅/餐厅,与山景融为一体。外部物质性寻求与景观和谐一致,将一个石头基座与一个连续的金属板外壳连接起来。这样,随着时间的推移,耐用性和低维护性得到了保证。而内部主要由松木构成,这提供了一种温暖和简单的氛围,是典型的乡村住宅。对于施工,选择SIP板(注射聚氨酯夹芯板),因为它有利于物流(因为它是一个农村地区)和组装时间。模块化住宅综合了三个基本的设计前提:建筑效率、空间效率和综合能力。
阿根廷Casa Bayo住宅外部实景图
阿根廷Casa Bayo住宅外部实景图
阿根廷Casa Bayo住宅外部实景图
阿根廷Casa Bayo住宅外部实景图
阿根廷Casa Bayo住宅外部实景图
阿根廷Casa Bayo住宅外部实景图
阿根廷Casa Bayo住宅外部实景图
阿根廷Casa Bayo住宅外部实景图
阿根廷Casa Bayo住宅外部实景图
阿根廷Casa Bayo住宅外部实景图
阿根廷Casa Bayo住宅外部实景图
阿根廷Casa Bayo住宅外部实景图
阿根廷Casa Bayo住宅内部实景图
阿根廷Casa Bayo住宅内部实景图
阿根廷Casa Bayo住宅内部实景图
阿根廷Casa Bayo住宅内部实景图
阿根廷Casa Bayo住宅平面图
客服
消息
收藏
下载
最近




















