查看完整案例

收藏

下载
项目名称:爱尔兰围墙花园住宅
位置:爱尔兰
建筑师: 史蒂夫·伯克
围墙花园屋的特色其实与房子本身无关,而是与它周围的东西有关。这个地方到处都是旧石棚和外屋的废墟。这些废墟被保留和修复与体贴的触摸,以保留该网站的历史,并形成新的建筑插入的背景,其目的是庆祝这些墙壁。这种新的插入表现为两个不同 的“A”形框架体量,其中一个是两层体量,上层从下层跨出,形成一个有盖的外部入口走道,另一个是更简单的单层体量。这两个体量由一个平顶的单层建筑元素连接起来,这给了这两个截然不同的结构空间,使其彼此独立,并允许光线深入到围墙花园中。这种有意将较大的结构分解成较小的不同体积有助于减小建筑的规模,以反映周围各种现有石结构的规模。& nbsp;在计划中,新的插入物是现有石头废墟的“L”形镜像,以在新与旧之间创建一个受保护的围墙花园。建筑的材料是一个庆祝农村乡土工艺和触觉。石头,波纹金属,和tyrolean石膏和谐地坐在一起,形成了一个尖锐和干脆的传统农业大棚的现代诠释。
新建筑下部使用的石材覆面是从现场掉落的石墙中回收的。它是以现代的方式制作,以突出当代除了网站,同时也确保与现有的石墙凝聚力。在这个石头覆层之上,有一个900毫米高的摸上去像泰罗利石膏带,环绕着整个房子,把房子不同的体积和材料联系在一起。一个黑色波纹金属包层上层的2层卷,同时也包层屋顶的单一和2层卷。波纹金属的清晰细节使它超越了与农业建筑的典型联系,同时仍然保留了与该网站的过去的联系。波纹金属的深色反光表面在视觉上也会随着周围环境而后退。这座房子的设计采用了传统乡土皮肤的现代风格,采用非常现代的建筑方法(MMC)建造,达到了最高的可持续发展规范。这座房子是用轻型金属钢预制板建造的,它是超级绝缘的,它有三层玻璃窗,机械热回收系统,外部空气源热泵,它是非常气密的,并有屋顶安装的光伏板。这座房子达到了爱尔兰建筑能源等级(BER)A1,这是可能的最高等级。
爱尔兰围墙花园住宅外部实景图
爱尔兰围墙花园住宅外部实景图
爱尔兰围墙花园住宅外部实景图
爱尔兰围墙花园住宅外部实景图
爱尔兰围墙花园住宅外部实景图
爱尔兰围墙花园住宅外部实景图
爱尔兰围墙花园住宅外部实景图
爱尔兰围墙花园住宅外部实景图
爱尔兰围墙花园住宅内部实景图
爱尔兰围墙花园住宅内部实景图
爱尔兰围墙花园住宅内部实景图
爱尔兰围墙花园住宅内部实景图
爱尔兰围墙花园住宅内部实景图
爱尔兰围墙花园住宅内部实景图
爱尔兰围墙花园住宅内部实景图
爱尔兰围墙花园住宅内部实景图
爱尔兰围墙花园住宅内部实景图
爱尔兰围墙花园住宅内部实景图
爱尔兰围墙花园住宅内部实景图
爱尔兰围墙花园住宅内部实景图
爱尔兰围墙花园住宅内部实景图
爱尔兰围墙花园住宅内部实景图
爱尔兰围墙花园住宅内部实景图
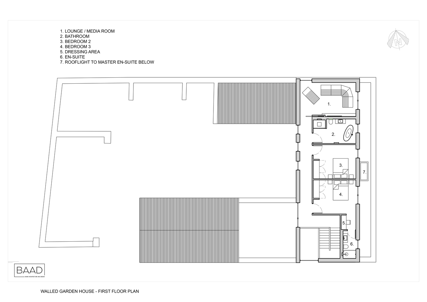
爱尔兰围墙花园住宅平面图
爱尔兰围墙花园住宅平面图
爱尔兰围墙花园住宅立面图
爱尔兰围墙花园住宅立面图
爱尔兰围墙花园住宅立面图
客服
消息
收藏
下载
最近































