查看完整案例

收藏

下载
项目名称:荷兰KDW 199房屋扩建
位置:荷兰
设计公司:CUBE Architecten
这座房子起源于1934年,相对没有动过。其目标是使它更节能,体积更大。这栋老房子确实有很多我们想保留的个性和细节。通过新的扩建,我们想要将一种完全不同的风格和氛围与这1930年代的氛围相结合;旧部分的安全和温暖的氛围结合了现代住宅的开放和透明的感觉。新扩建部分的开放式厨房餐厅的地板比旧部分的客厅低两步。从后院向外看,你真的看不到房子的经典正面。然而,从街上来看,你几乎看不到后面的现代扩建部分。然而在内部,2很容易合并。我们把房子扩建到所有三层,深达5米深。我们在这个设计中使用了3种不同的材料;燃烧的木头、玻璃和粗糙的石头。立面上烧焦的木材是一种被称为“寿木班”的古老日本技术,用一层薄薄的烧焦的木材来保护木材。与油漆不同,这并不需要偶尔重新做一次。所有的黑色太阳能电池板安装与烧焦的木条完全齐平。
厨房位于独立的粗俗的天然石墙上。这堵墙只通过一条三层玻璃与房子相连,就像一个被推出房子本身的抽屉一样。从厨房你可以看到桥上的房子,看到每个人都来到房子。因为一楼的玻璃被后退了一点,所以创造了一个小阳台。支撑后立面的3根柱子加强了这种效果。在此,我们能够在绿色花园前放置一个大的透明玻璃,同时仍然设法创造一种有点安全的氛围。将房子的旧部分更新为现代标准,需要采取必要的节能措施。除了腔绝缘,现有的外墙内部给予高质量的绝缘。为了保持房子20世纪30年代的旧特征,必须在内部这样做。甚至现有的楼梯也被移动了,以便能够继续对立面进行保温。此外,房屋旧部分的现有屋顶也被隔热三明治板所取代,整个一层也被新的隔热地板所取代。我们想保留旧的彩色玻璃,但还是把它放在了双层玻璃上。对于后面的大玻璃,我们选择了三层玻璃。
荷兰KDW 199房屋扩建外部实景图
荷兰KDW 199房屋扩建外部实景图
荷兰KDW 199房屋扩建内部实景图
荷兰KDW 199房屋扩建内部实景图
荷兰KDW 199房屋扩建内部实景图
荷兰KDW 199房屋扩建内部实景图
荷兰KDW 199房屋扩建内部实景图
荷兰KDW 199房屋扩建内部实景图
荷兰KDW 199房屋扩建内部实景图
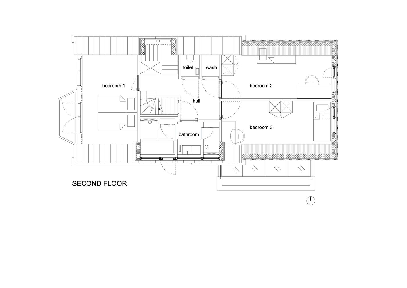
荷兰KDW 199房屋扩建平面图
荷兰KDW 199房屋扩建平面图
荷兰KDW 199房屋扩建平面图
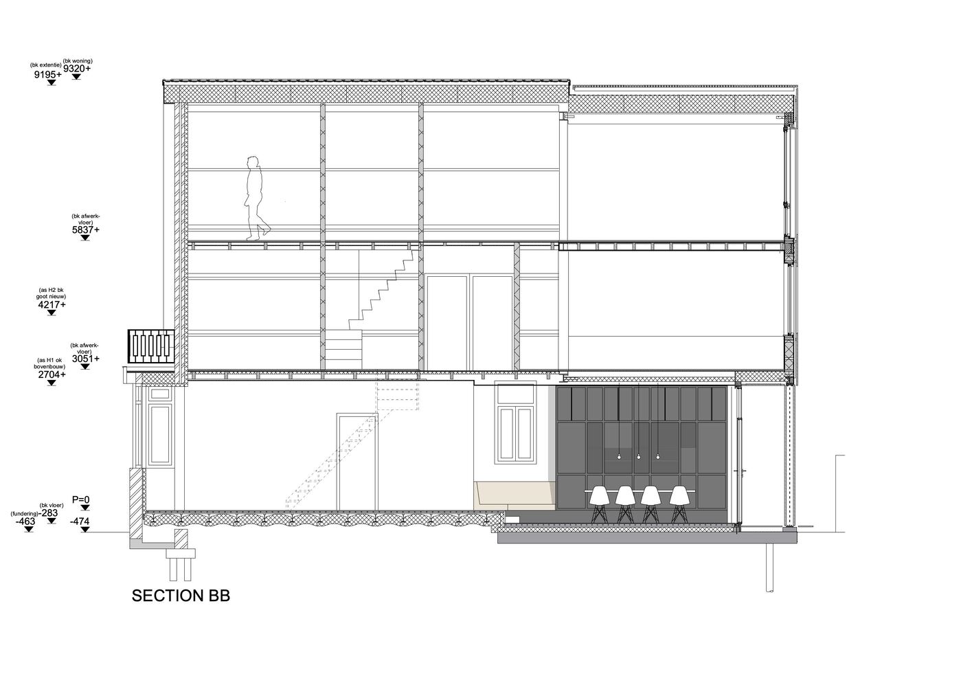
荷兰KDW 199房屋扩建剖面图
荷兰KDW 199房屋扩建剖面图
荷兰KDW 199房屋扩建剖面图
荷兰KDW 199房屋扩建剖面图
荷兰KDW 199房屋扩建立面图
荷兰KDW 199房屋扩建立面图
荷兰KDW 199房屋扩建立面图
客服
消息
收藏
下载
最近






















