查看完整案例

收藏

下载
项目名称:墨西哥莫雷利亚 4 号公寓楼
位置:墨西哥
设计公司:Quintanilla Arquitectos
摄影师 :Onnis Luque
该项目场地具有优越的地理位置——前方是一个环形公园,建筑立面被一棵七十年的老树遮挡住了。Circular de Morelia 住宅项目旨在增加该物业的住房数量。面对保留上世纪初房屋的挑战,建筑师决定把新建筑隐入公园。通过一组的体量,老房子的比例得到统一并与邻居衔接起来。在尊重老房子的改造干预下,这栋五层的住宅拥有九套公寓,这有助于潜在扩张和文化丰富的城市中心的密集化度。
墨西哥莫雷利亚 4 号公寓楼外部实景图
墨西哥莫雷利亚 4 号公寓楼外部实景图
墨西哥莫雷利亚 4 号公寓楼外部实景图
墨西哥莫雷利亚 4 号公寓楼外部实景图
墨西哥莫雷利亚 4 号公寓楼外部实景图
墨西哥莫雷利亚 4 号公寓楼外部实景图
墨西哥莫雷利亚 4 号公寓楼外部实景图
墨西哥莫雷利亚 4 号公寓楼局部实景图
墨西哥莫雷利亚 4 号公寓楼内部实景图
墨西哥莫雷利亚 4 号公寓楼内部实景图
墨西哥莫雷利亚 4 号公寓楼内部实景图
墨西哥莫雷利亚 4 号公寓楼内部实景图
墨西哥莫雷利亚 4 号公寓楼内部实景图
墨西哥莫雷利亚 4 号公寓楼内部实景图
墨西哥莫雷利亚 4 号公寓楼内部实景图
墨西哥莫雷利亚 4 号公寓楼内部实景图
墨西哥莫雷利亚 4 号公寓楼内部实景图
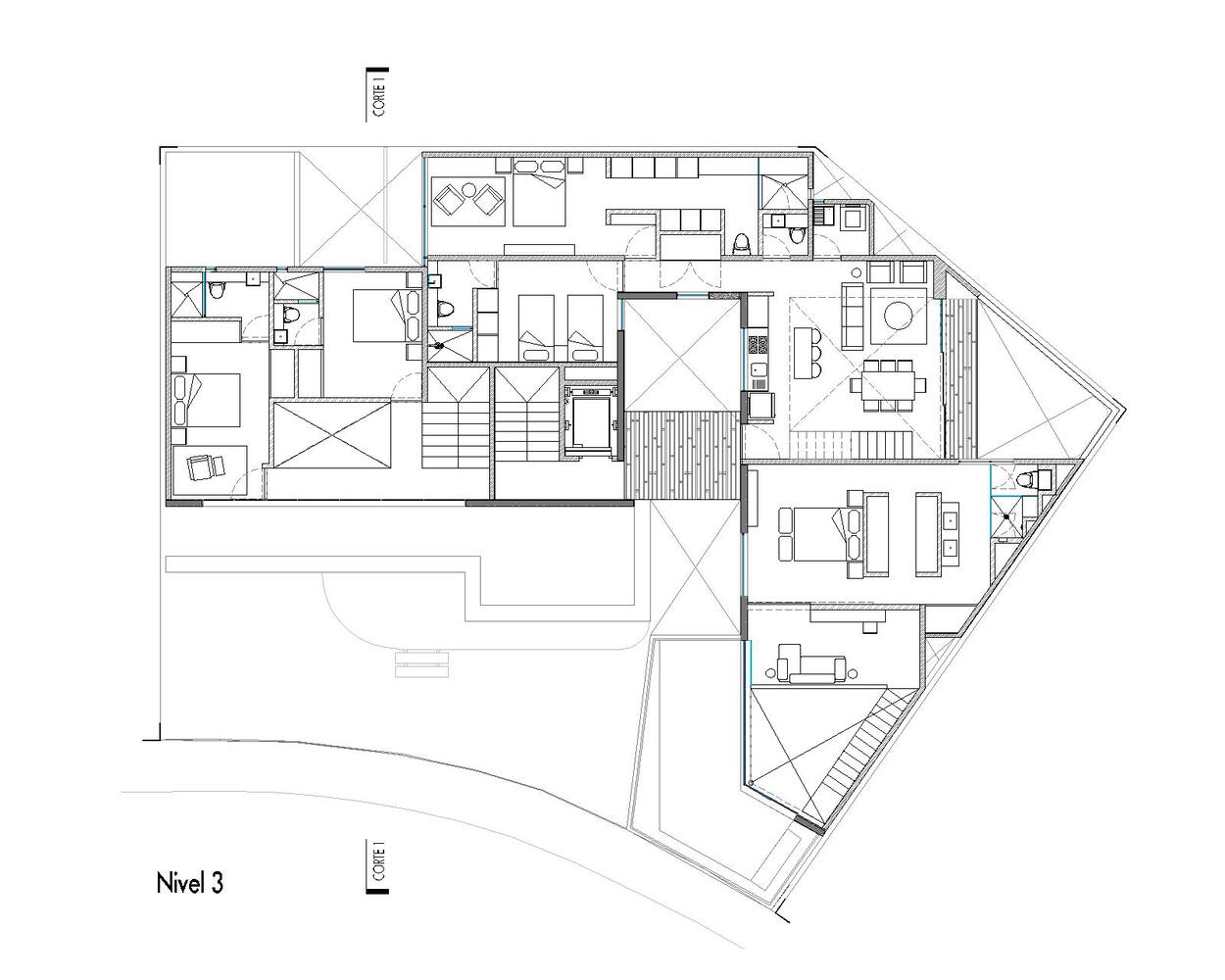
墨西哥莫雷利亚 4 号公寓楼平面图
墨西哥莫雷利亚 4 号公寓楼平面图
墨西哥莫雷利亚 4 号公寓楼平面图
墨西哥莫雷利亚 4 号公寓楼平面图
墨西哥莫雷利亚 4 号公寓楼平面图
墨西哥莫雷利亚 4 号公寓楼平面图
墨西哥莫雷利亚 4 号公寓楼平面图
墨西哥莫雷利亚 4 号公寓楼剖面图
客服
消息
收藏
下载
最近




























