查看完整案例

收藏

下载

附件

翻译
Architect:Hype Studio
Location:Porto Alegre, RS, Brasil; | ;View Map
Project Year:2020
Category:Residential Landscape;Apartments
NY205 is a residential building in the heart of the Auxiliadora neighborhood that connects with the city through a large Atrium square entrance and groundlevel commercial spaces designed to keep the building's surroundings pedestrian-friendly.
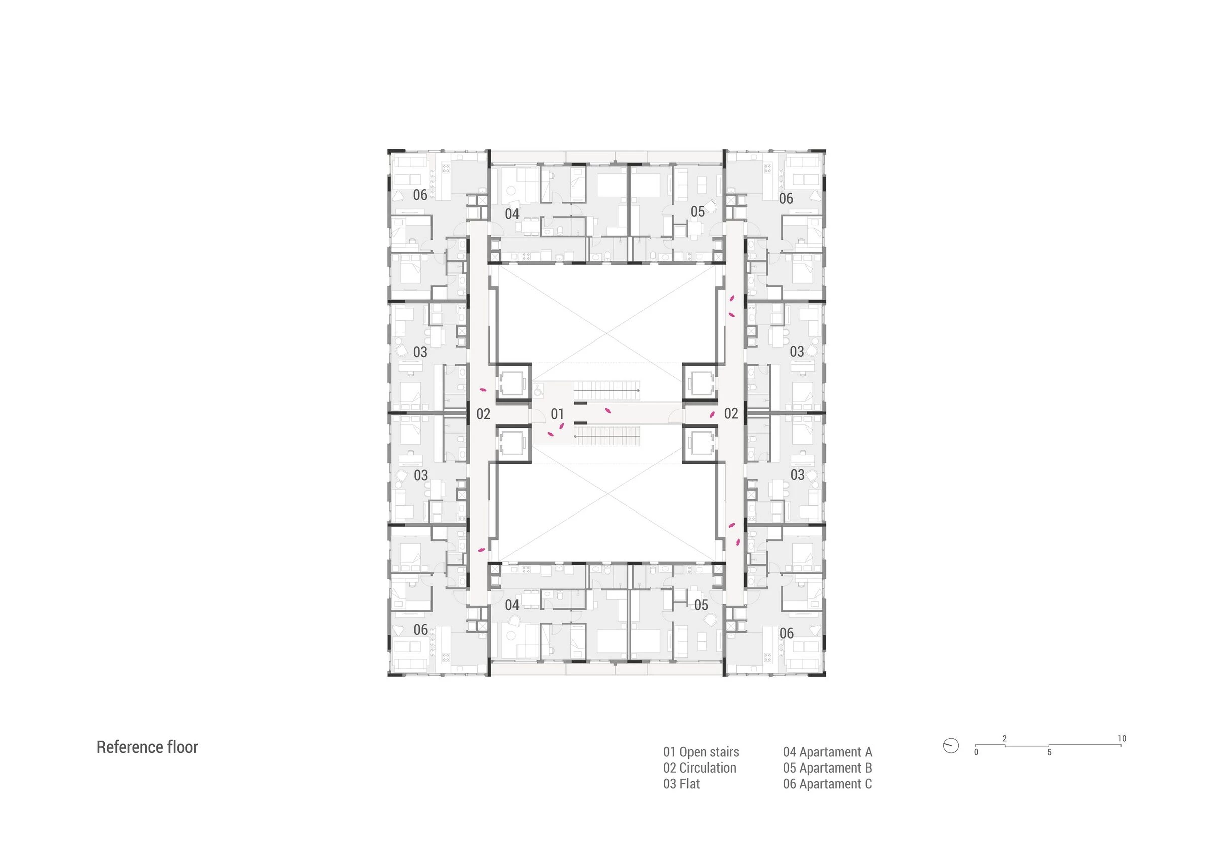
The building was designed around a central atrium, with the apartment units occupying the outer perimeter of the site. The large central void contains elevators and staircases, creating visually stimulating paths through the building and resulting in a very interesting and unique square on the groundlevel entrance.
An invitation to come inside, the large Atrium square is visually connected with the street and directs people towards its dashing staircases. They lead the way up to the building's amenities on the rooftop.
The units were designed to be combined into larger apartments if anyone desires to do so. All units are 1 Bedroom 450 sq ft or 2 Bedrooms 820 sq ft that can easily become a 3 Bedroom 1270 sq ft unit - the building's systems were all designed so that the adaptations are minimal and no major reconstruction is needed when combining units.
The building's amenities spaces - pool, fitness center and eat-in gourmet lounge - are all located on the rooftop, with sweeping views of the city. The building gets its name from its location in Porto Alegre: Avenida Nova York 205 (205 New York Avenue) - coincidently at the heart of one of Porto Alegre's most fashionable and desirable neighborhoods, well known for its boutique shops, restaurants and nightlife.
▼项目更多图片
客服
消息
收藏
下载
最近






























