查看完整案例

收藏

下载
项目名称:法国77套住宅单元公寓楼
位置:法国
设计公司:CoBe Architecture & Paysage
摄影师 :Luc Boegly
阿马尼亚克(Armagnac)区如今是一块巨大的铁路荒地,波尔多市的一个新中心在这个区域的中心正孕育而生。俯瞰阿马尼亚克广场(Place d’Armagnac),Tri Postal 街区正如其名称所示,包括城市中在2016 年停止运营的前邮件分拣大楼。如今它被分为三个部分,其中一部分将由 CoBe 进行翻新。就在这个象征性的建筑旁边,CoBe 参与了由 ECDM 机构协调的街区第一阶段的设计:一个混合用途的建筑群,由住房单元和办公功能组成,共用一个两层的底层。在这个综合体中,CoBe 负责了位于地块最东边的两座塔楼的设计,以及它们各自在共享基础上的部分。它们是项目的 L1 和 L2 地段。所有住宅楼的基础都按照相同的框架,由底部两层的梁柱结构和首四层外墙的长凉廊组成。在保持相同厚度的混凝土板的同时,由于一组交错的阳台,这两座 10 层的住宅楼 L1 和 L2 在视觉上从它们的邻居中脱颖而出,打乱了它们的线性和水平外观。实体和空隙的效果使立面充满活力,打破了基地明显的水平性和梁柱框架结构的强烈表达,并将阳台分为有顶和无顶的空间。
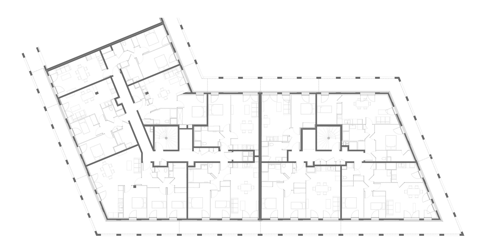
在立面方面,其色调在底部的“金发般”沙质预制混凝土和考虑到波尔多传统外墙色调的凉廊之间变换,而上层的阳台则采用浅灰色混凝土,与铝制细木工板和灰色涂层相结合。阳台的栏杆由穿孔铝制成,遵循改良的传统波尔多模式,一组混凝土护栏时而穿插其中,这些护栏不断延伸到板块上。阳台的底部巧妙地用带金色漆面的图案混凝土进行点缀。这两栋住宅楼分别单独拥有一个入户大厅,总共由 33 个社会租赁住房单元和 44 个自有产权住房单元组成,类型从一室户型到五室户型不等,平均分布在各个楼层。最上面的两层是复式户型,有双层高的客厅。地面双层有商业场所和两层停车场,以及为每户提供的地窖。由于该项目完全设计在地块的边缘,没有公共空间,因此每一户在设计时都有平均 10 平方米阳台或是凉廊的大型户外空间。住宅楼的宽度与邻近的办公楼相同(20.5 米),因为它们的体量被切割成大块,以便在每个立面上创造出两米宽的户外空间。所有住户尽享波尔多的美景的同时不必担心被其他住户窥探隐私。
法国77套住宅单元公寓楼外部实景图
法国77套住宅单元公寓楼外部实景图
法国77套住宅单元公寓楼外部实景图
法国77套住宅单元公寓楼外部实景图
法国77套住宅单元公寓楼外部实景图
法国77套住宅单元公寓楼外部实景图
法国77套住宅单元公寓楼内部实景图
法国77套住宅单元公寓楼内部实景图
法国77套住宅单元公寓楼内部实景图
法国77套住宅单元公寓楼内部实景图
法国77套住宅单元公寓楼平面图
法国77套住宅单元公寓楼平面图
法国77套住宅单元公寓楼平面图
法国77套住宅单元公寓楼平面图
客服
消息
收藏
下载
最近

















