查看完整案例

收藏

下载
项目名称:韩国金属立面住宅
位置:韩国
设计公司:Archirie
本项目坐落于一处典型的城市复合型住宅区中,区中既有独栋住宅也有公寓式住宅。因此,设计的核心理念旨在保证居住者的隐私,使室内空间免受周边各种密集的居住形式以及周围环境的影响,同时保证良好的室内采光,使空间明亮宜人。与典型的方形住宅场地不同,本项目的场地呈菱形,独特的地块形态也是空间组成以及建筑未来发展的重要线索。为了在有限的场地内回应屋主人对于空间的所有需求,建筑师选择将住宅顺应场地的形状,而不是在不规则的场地上生硬地排布一系列直角空间。设计旨在通过顺应场地的独特线条,使空间以积极的方式与场地特征相融,同时形成多样化的空间场景,最终达到使建筑自然融入周围住宅区的目的,而不是生硬地将建筑布置在场地中。设计的首要步骤是将居住空间扩展到整个场地中,并根据室内空间逐个细化场地上留下的空地,这种设置不仅能够满足当地规定的施工速率,同时也能够使住宅达到业主要求的必要面积。
通过这种方式创造出的空间被光线和自然一一填充,并作为周围环境与生活区之间的中间地带,在保护居住者隐私的同时创造出明亮宜人的空间氛围。与顺应场地形态与朝向的底层空间不同,上部楼层向后倾斜并略有扭曲。从街道上看,交错的形式在视觉上使上部楼层变得更加轻盈,几株桦树在扭曲的体块之间蔓延开自己的枝叶,定义了两个体块之间的边界,同时也吸引着人们想要进入这个空间之内一探究竟。为了进一步强调出建筑体块的形态,并丰富目前略显单调的街区环境,建筑的立面材料选择了金属。色彩柔和的彩钢板包裹着底部楼层,使底层空间看起来更加沉稳坚实;上部楼层则采用了不锈钢百叶,明亮的色彩使体块变得更加轻盈。由于不锈钢独特的反光特性,住宅二层的外观会随着一天内光线的变化而变化,为周围环境提供了一种明快的节奏感。这两种具有不同物理性质与密度表达的金属组合,与建筑上下偏移的两个体块相得益彰,同时又形成一种微妙的和谐关系。不锈钢大门打开,首先映入眼帘的是一处狭长的庭院空间,庭院内铺满了石头,并种植了桦树。
眼前的这一片小白桦林为住宅引入了自然的氛围,让人暂时忘记了自己仍身处市中心,同时也充当了住宅空间和外部道路的缓冲区。打开通往住宅内部的第二扇门,宽敞的客厅、餐厅和厨房出现在眼前,这些空间围绕着一座郁郁葱葱的中庭布置。而位于枫树中庭和小白桦林之间的客厅、厨房和餐厅空间,则为居住者提供了一个亲近自然、远离城市日常生活的理想庇护所。二楼的小花池与底层庭院的尺度不同,它被布置在两间儿童房之间,旨在保持两间儿童房之间的联系,同时协调空间彼此之间的距离。儿童房与花池之间设有一间多功能房间,这里也可以作为客厅或另一个小“庇护所”,孩子们学习累了的时候可以来此休憩玩耍,屋主夫妇也可以在这里小酌一杯。在体块交错形成的缝隙空间与建筑内部的边界之间,内部空间向外扩展,外部空间向内延伸,庭院中的光影、天空、树木、石头将自然的气息渗透到室内,成为室内空间的一部分。底部楼层的地面与墙体刻意地避免了奢华的装饰,旨在让光线和自然成为空间的背景;二楼的卧室则铺设了米色瓷砖,营造出平静而温暖的感觉。
韩国金属立面住宅外部实景图
韩国金属立面住宅外部实景图
韩国金属立面住宅外部实景图
韩国金属立面住宅外部实景图
韩国金属立面住宅外部实景图
韩国金属立面住宅外部实景图
韩国金属立面住宅外部实景图
韩国金属立面住宅内部实景图
韩国金属立面住宅内部实景图
韩国金属立面住宅内部实景图
韩国金属立面住宅内部实景图
韩国金属立面住宅内部实景图
韩国金属立面住宅内部实景图
韩国金属立面住宅内部实景图
韩国金属立面住宅内部实景图
韩国金属立面住宅内部实景图
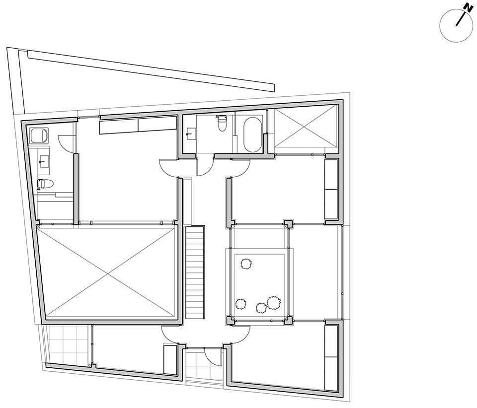
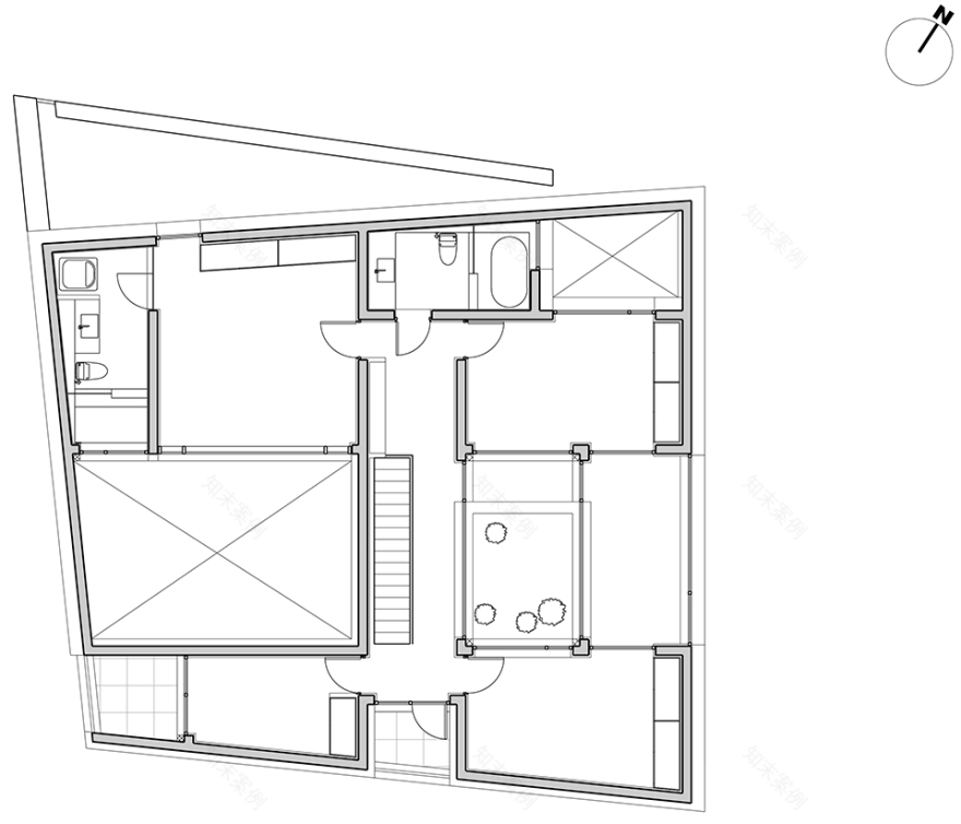
韩国金属立面住宅平面图
韩国金属立面住宅平面图
韩国金属立面住宅剖面图
客服
消息
收藏
下载
最近






















