查看完整案例

收藏

下载
项目名称:斯里兰卡屏风雕塑屋
位置:斯里兰卡
设计公司:Anushka Dassanayake
客户购买的地块是14个鲈鱼地;两侧有引道和私家车道。客户的要求是一套四居室的房子,在忙碌的一天工作之后,它会给家庭带来隐私和放松。树木和绿化大多位于土地的后方。因此,自初次访问以来;和示意图设计,很明显主要空间应该位于场地的后部。从这种方法开始,设计进一步发展为创造一个空间围护结构,以最大限度地利用场地内和周围的可用绿色植物。考虑到场地两侧有两条道路的位置,它为设计一个具有雕塑感和响应引道的结构提供了最佳机会。因此,今天这座两层四居室的住宅,就像一座雕塑;道路两侧没有任何边界墙,但不损害居民的安全或隐私。设计由定义其特征的两个主要元素组成。坚固的瓦砾墙提供了视觉基础或底座,悬臂式木板条盒位于其上,视觉上漂浮。在这两个元素之间是通畅的线性玻璃条窗,将沉重的石墙底座与其上方的木结构隔开。这突出了浮动效果,似乎导致了重力神化安排。房子通过木屏风和密集的碎石墙来应对前面尘土飞扬、没有阴影的道路的恶劣环境。
然而,同样的外观似乎被解构为绝对透明,与土地后部享有的阴凉花园和借来的景观融为一体。通往房子的方法是通过前面的雕刻木材板条门,通向侧花园。此后,房子的入口是通过侧花园和后花园。由于视觉上最令人愉悦的景色位于场地的后部,因此房屋的主要空间也位于此位置。双高主空间确保与内部空间以及郁郁葱葱和凉爽的外部空间的连通性。所有卧室和娱乐室,尽享户外美景;通过木屏风和树叶条过滤,成为每个空间的私人绿地。放置在滑动窗户和木屏风之间的树叶条弥补了这些空间中缺乏物理花园的情况。这座房子是围绕着现场存在的所有树木设计的,特别是一棵大树,它的树冠主要分布在现场。保护和整合所有树木,为房屋提供急需的遮荫和冷却。
屋顶在前部设有屋顶花园,在后部设有休息室和甲板。这座房子是围绕着现场存在的所有树木设计的,特别是一棵大树,它的树冠主要分布在现场。保护和整合所有树木,为房屋提供急需的遮荫和冷却。该设计响应热带气候条件。面向公共道路的木屏风不仅提供了安全性和隐私性,还积极化解了来自西方的刺眼阳光和季风雨。悬臂式盒子保护玻璃窗条,就像屋顶一样。包围主空间的双层玻璃窗在楼板水平之前停止 2'-0”。即使所有门窗都关闭,这也确保了室内的最大通风。玻璃和楼板之间的间隙提供了恒定的堆叠效果,房子的饰面现代而质朴,房子没有任何装饰元素,并忠于所使用的材料。大多数内部饰面是水泥、木材、玻璃和钢制型材。质朴的外观和中性色调增强了绿色植物,并将内部与外部融合在一起。
斯里兰卡屏风雕塑屋外部实景图
斯里兰卡屏风雕塑屋外部实景图
斯里兰卡屏风雕塑屋外部实景图
斯里兰卡屏风雕塑屋外部实景图
斯里兰卡屏风雕塑屋外部实景图
斯里兰卡屏风雕塑屋外部实景图
斯里兰卡屏风雕塑屋外部实景图
斯里兰卡屏风雕塑屋外部实景图
斯里兰卡屏风雕塑屋外部实景图
斯里兰卡屏风雕塑屋外部实景图
斯里兰卡屏风雕塑屋外部实景图
斯里兰卡屏风雕塑屋外部实景图
斯里兰卡屏风雕塑屋外部实景图
斯里兰卡屏风雕塑屋外部实景图
斯里兰卡屏风雕塑屋内部实景图
斯里兰卡屏风雕塑屋内部实景图
斯里兰卡屏风雕塑屋内部实景图
斯里兰卡屏风雕塑屋内部实景图
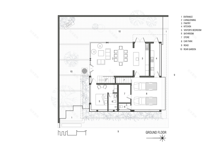
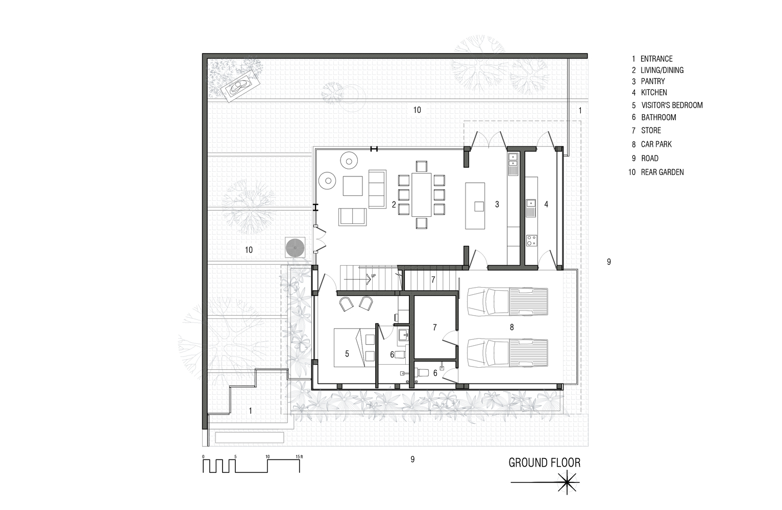
斯里兰卡屏风雕塑屋平面图
斯里兰卡屏风雕塑屋平面图
斯里兰卡屏风雕塑屋平面图
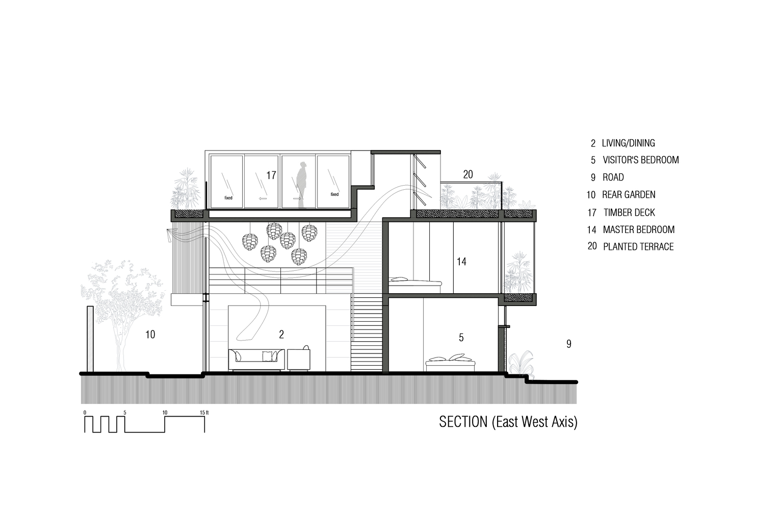
斯里兰卡屏风雕塑屋剖面图
斯里兰卡屏风雕塑屋剖面图
斯里兰卡屏风雕塑屋立面图
斯里兰卡屏风雕塑屋立面图
斯里兰卡屏风雕塑屋立面图
斯里兰卡屏风雕塑屋立面图
客服
消息
收藏
下载
最近





























