查看完整案例

收藏

下载
项目名称:南非野梅树屋
位置:南非
设计公司:Daniel Maggs Architects
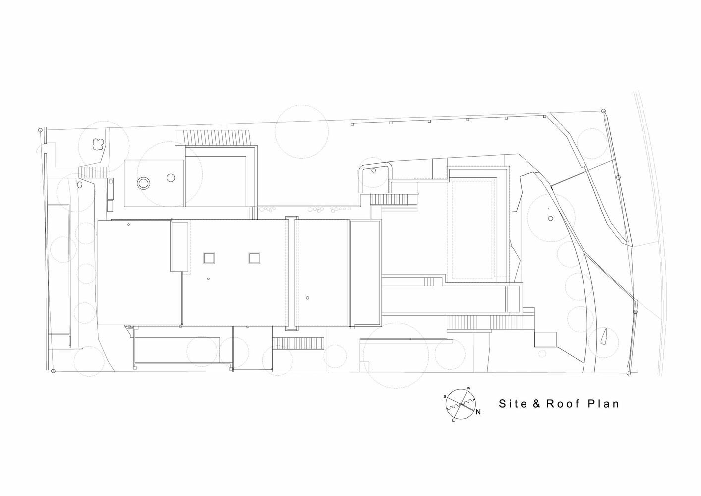
这座房子坐落在桌山的上城坡上,位于山区保护区的边缘。它坐落在一个美丽的已建成花园中,有成熟的野梅树和向街道延伸的梯田。房屋平面图是一个横跨斜坡的矩形,重新利用旧结构的挡土墙和足迹,以免打扰现有的树木和花园。房子通向三个不同层次的独立花园露台。在一楼,房子提供灵活的工作空间,包括工作室、办公室和公寓。一楼是主要的起居空间和卧室。二楼包括卧室和游戏室。房子的前面是一个可居住的遮阳板。这个结构构成了狮子头山的双体量景观,同时调节了阳光,并包含了一个阳台和一个乌鸦的巢穴。主流线位于房子的中间,作为一个巨大的铰接式灯笼,白天从上方自然照明,晚上人工照明,为相邻空间带来柔和的漫射光。居住空间被蝴蝶形屋顶遮蔽,中间有巨大的集水通道,供应雨水箱。倾斜屋顶的轮廓允许下方有各种有趣的空间,具有不同的天花板高度和坡度,包括高房间和低锥形空间。通过滑动墙,空间灵活且可变形,允许各种不同的用途。房子的材料主要是砖墙和灰泥墙,还有一些混凝土、钢材和木材。这座房子很大程度上是离网的,旨在以一种被动的方式很大程度上调节气候。整体印象是一艘“搁浅的船”坐在树林中,逐渐融入花园。
南非野梅树屋外部实景图
南非野梅树屋外部实景图
南非野梅树屋外部实景图
南非野梅树屋外部实景图
南非野梅树屋外部实景图
南非野梅树屋外部实景图
南非野梅树屋外部实景图
南非野梅树屋局部实景图
南非野梅树屋内部实景图
南非野梅树屋内部实景图
南非野梅树屋内部实景图
南非野梅树屋内部实景图
南非野梅树屋平面图
南非野梅树屋平面图
南非野梅树屋平面图
南非野梅树屋剖面图
南非野梅树屋立面图
南非野梅树屋立面图
南非野梅树屋立面图
南非野梅树屋立面图
客服
消息
收藏
下载
最近























