查看完整案例

收藏

下载
项目名称:日本关原住宅
位置:日本
设计公司:Airhouse Design Office
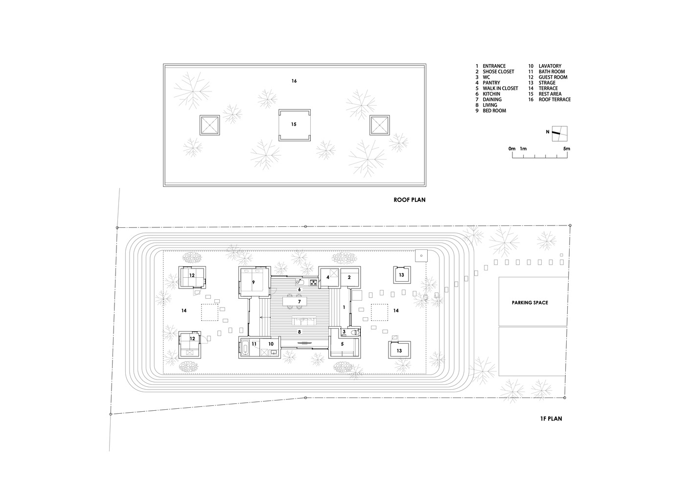
这座房子是为岐阜县关原市的一对夫妇设计的,它坐落在一块从北向南延伸的长方形地块上,毗邻树木繁茂的土地,营造出美丽的自然环境。该设计包括一个足以满足居民需求的中央生活空间,南北两侧都有一个露台,一个覆盖露台和室内空间的大屋顶。住宅的南侧是一个入口露台,通向室内并与客厅相连。北侧是一个露台,作为通往独立家庭祭坛室和客房的通道,同时也连接到主屋的客厅和卧室。两个露台上的屋顶使在户外度过的时间更加舒适。主要生活区部分位于地下。降低露台下方的地板允许高高的天花板,并且由于房子周围的斜坡,尽管四个侧面都有大窗户,但外面的能见度被阻挡,营造出轻松的氛围。巨大的草覆盖屋顶提供了广阔的周围景观。椅子或帐篷可以很容易地抬起来享受户外活动,草预计可以提供出色的隔热效果。屋顶中央有一个避难所。钢筋混凝土建筑采用箱形框架结构,选择简化的施工方法以降低成本。其结果是一个豪华的单层生活空间,内部和外部平滑地融合在一起,自然环境被慷慨地融入设计中,屋顶提供了令人兴奋的生活方式选择。我们预计随着时间的推移,大自然将变得更加强大,因为植物占据了物业上的开放空间和山坡,加强了与周围景观中的绿色植物的联系。
日本关原住宅外部实景图
日本关原住宅外部实景图
日本关原住宅外部实景图
日本关原住宅外部实景图
日本关原住宅外部实景图
日本关原住宅外部实景图
日本关原住宅内部实景图
日本关原住宅内部实景图
日本关原住宅内部实景图
日本关原住宅内部实景图
日本关原住宅内部实景图
日本关原住宅平面图
日本关原住宅剖面图
客服
消息
收藏
下载
最近
















