查看完整案例

收藏

下载
项目名称:阿根廷密斯412住宅
位置:阿根廷
设计公司:AToT - Arquitectos Todo Terreno + IDERO
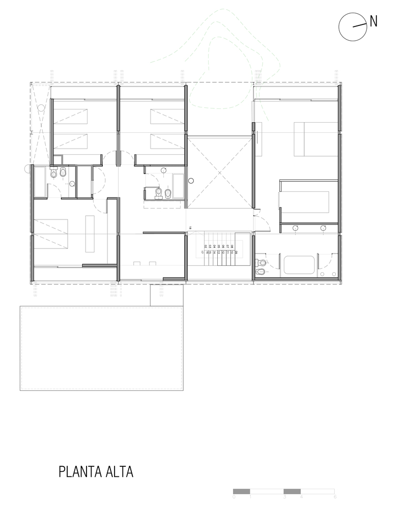
该项目是一系列高性能和节能工业化住宅的重复模型,结合了建筑设计、精密工程和工业能力。几乎所有的工作都是在工厂使用政府批准的条款和现场组装的,加快了工作时间。它是基于轧制的 W 螺栓型材系统开发的,然后将这些型材与预制板和墙壁放在一起,并用起重机放置它们各自的装置。建筑空间位于布宜诺斯艾利斯郊区,处于发展中的城市肌理中,通过将底层的集体使用空间和第一层的私人空间分开来开发建筑空间。较低的楼层表现为一个不确定和灵活的空间,其中服务空间朝向街道和最不利的一侧,以便能够在背景中打开其余活动朝向花园的视觉效果,并使用半-作为防晒的一种方法。这种布置通过使用悬垂的结构得到增强,并允许减少对结构的感知,从而实现其内部和外部之间更好的相互作用和连续性。上层从双层高度连接起来,作为唯一的分层元素,将父母的侧翼与儿童、客人和工作空间的另一侧分隔开。整个计划有移动视觉和太阳能保护装置,在白天和一年中的不同时间产生活力。最后,计划在屋顶放置一个太阳能收集系统,作为电力和供暖系统的支撑。
阿根廷密斯412住宅外部实景图
阿根廷密斯412住宅外部实景图
阿根廷密斯412住宅外部实景图
阿根廷密斯412住宅内部实景图
阿根廷密斯412住宅内部实景图
阿根廷密斯412住宅内部实景图
阿根廷密斯412住宅内部实景图
阿根廷密斯412住宅平面图
阿根廷密斯412住宅平面图
阿根廷密斯412住宅平面图
阿根廷密斯412住宅立面图
阿根廷密斯412住宅立面图
阿根廷密斯412住宅立面图
阿根廷密斯412住宅立面图
客服
消息
收藏
下载
最近

















