查看完整案例

收藏

下载

翻译
OLIMP
APARTHOTEL
Type: Architectural concept
Location: Bukovel, Ukraine
Area: 10500 м²
Year: 2017
Author: Ruslan Mazurenok
INVESTMENT PROJECT
The pre-project proposal for the hotel and apartment complex was developed for an investment company.
The terms of reference included the creation of an ecosystem of economy, business and luxury apartments and premium infrastructure: a restaurant, gym, spa, conference room, entrance lobby, and parking lot.
—
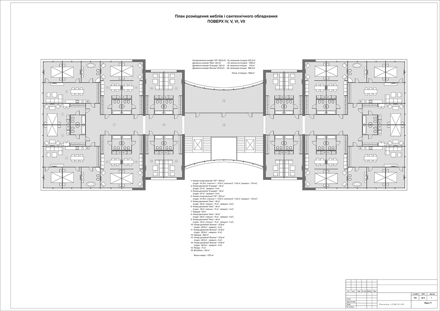
ІНВЕСТИЦІЙНИЙ ПРОЕКТ
Передпроєктна пропозиція готельно-апартаментного комплексу розроблена для інвестиційної компанії.
В технічне завдання входило створення екосистеми з апартаментних номерів економ, бізнес та люкс класу, та преміальної інфраструктури: ресторан, спортзал, СПА, конференс зал, вхідне лобі, стоянка для авто.
THANKS FOR WATCHING! | ДЯКУЮ ЗА ПЕРЕГЛЯД!
Ready for new achievements!
instagram | telegram
客服
消息
收藏
下载
最近

















