查看完整案例

收藏

下载
项目名称:澳大利亚双子住宅
位置:澳大利亚
建筑师: 约翰·艾尔威
照片:托比·斯科特
Tarragindi 郊区的中环距离市中心约 6.5 公里,主要包含 1950-60 年代建造在大块土地上的石棉覆盖的战后房屋。布里斯班市中心 1946 年以前的房屋一般无法拆除,因此开发商已利用这个机会进行填充和致密化,搬到这个郊区的中环。客户不是开发商,他想尝试一个填充项目作为投资机会。令人钦佩的是,他们很高兴对该地区典型的千篇一律的 McMansion 型填充物采取不同的方法。一种可以简单、可重复、优先考虑景观并为未来所有者提供适应机会的方法。旧房子被拆除,地块从中间分裂成两个新的 7.7m 宽的地块。城市规划鼓励的传统方法是在公共边界上建造 9m 的零后退,以便有足够的宽度容纳双车库和封闭的街道入口。这种典型的结果可以被描述为没有绿地的“远洋班轮”住房。面向街道(船体)的较低层的坚固车库和入口门的屏障;上面有一个无法使用的迷你阳台,后面有一个玻璃开口,面向街道(船桥);然后在侧面立面上安装了一些小的“舷窗”窗户,以管理隐私和俯瞰。
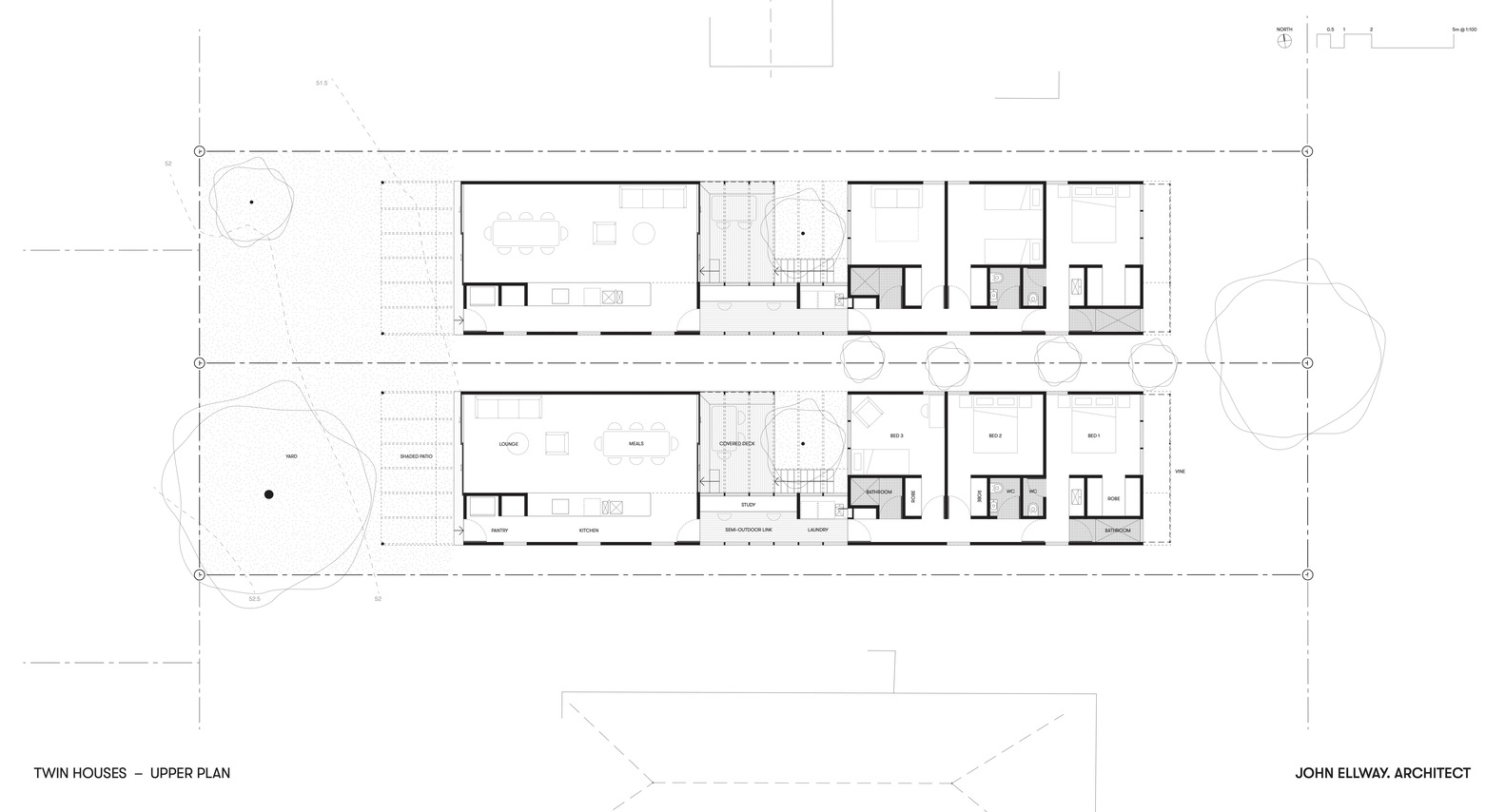
使用大多数布里斯班街区典型的丘陵地形,单层“双胞胎”房屋被抬高到面向街道的开放式小农场上方。这是一个停放汽车、孩子们在阴凉处玩耍、存放皮划艇和自行车的地方,其高度设置允许未来填充。该场地被仔细切割,并建立了水平以避免需要砌块挡土墙和地面上的混凝土板。这减少了交易和成本,这使得大部分建筑都是以木工为基础的,使用预制的墙和屋顶框架交付到现场,典型的当地体积住房。下面的小农场也起到了拉长从人行道到房子后面更多公共生活区的入口的作用。虽然这对房子是建在自己的地段上,没有共同财产,街道上没有栅栏,也没有在克罗夫特下面的两个区域之间划分栅栏。每栋房屋的景观在视觉上共享,将两个空间连接起来,以克服狭窄地段的感觉。分层种植管理隐私程度,但区域足够开放,允许邻居聊天,提供对彼此财产的被动监视,并营造社区感。房子被认为是平面中心的一个庭院,以避免房子前面有更多的私人卧室空间。
入口处有一棵树和甲板休息区,位于地下农场和内部楼层之间的中间水平,打破了入口过渡。庭院带来了光线,在凉爽的月份里,阳光深入到计划中,在温暖的月份里捕捉到微风。它创造了一个受保护的户外空间,可以在那里举行聚会,孩子们在小农场玩耍时受到监控,可以看到两层的景色。进入房子的上层,您会到达一个宽敞的用餐和生活空间,该空间通向一个长满草的后院。在房子的这个更公共的部分进行细节是很重要的。预算花费在带有齐平门槛的大型木材壁板门上。这是带有倾斜天花板的房屋区域,是从增加的空间感中受益最多的地方。厨房橱柜作为一个长长的双面岛位于房间的一侧,增加了存储空间,并使工作台的两侧都可以使用。卧室和浴室位于房屋较私密且较少使用的一端。这里的细节很简单,使用体积外壳技术。天花板设置在最低 2.4m 以减少材料和成本。铝制百叶窗开口从地板延伸到天花板,以最大限度地提高采光和通风,并抵消较低天花板高度的影响。晦涩的玻璃叶片可打开至 45 度,管理栏杆要求和隐私,而不需要相邻房屋典型的二级外部屏蔽层。
网状格子覆盖了房屋从地面到屋顶的街道立面。百香果为繁忙的道路提供了一个快速生长的种植缓冲区,减少噪音、灰尘、控制早晨的阳光,并管理其中一间浴室和卧室的隐私。房子的这一端通过与中央入口庭院相邻的半户外连接与起居空间相连。该链接是多用途的,可容纳一张长书桌用于学习、一个水槽和用作洗衣房的镜面壁龛、主浴室梳妆台以及挂毛巾和晾干衣服的地方。房子被设置成一个 900 毫米的网格,以允许标准尺寸的内门、窗户和纤维水泥覆层板在房子的长度上使用,以减少劳动力。考虑到成本,以相同的方式建造这两座房屋,同时创造了效率。减少了交付、混凝土泵、起重机的数量,并且仅减少了支持行业的访问次数。水槽和镜面壁龛可用作洗衣房、主浴室梳妆台以及挂毛巾和晾干衣服的地方。房子被设置成一个 900 毫米的网格,以允许标准尺寸的内门、窗户和纤维水泥覆层板在房子的长度上使用,以减少劳动力。考虑到成本,以相同的方式建造这两座房屋,同时创造了效率。减少了交付、混凝土泵、起重机的数量,并且仅减少了支持行业的访问次数。
水槽和镜面壁龛可用作洗衣房、主浴室梳妆台以及挂毛巾和晾干衣服的地方。房子被设置成一个 900 毫米的网格,以允许标准尺寸的内门、窗户和纤维水泥覆层板在房子的长度上使用,以减少劳动力。考虑到成本,以相同的方式建造这两座房屋,同时创造了效率。减少了交付、混凝土泵、起重机的数量,并且仅减少了支持行业的访问次数。以相同的方式建造这两座房屋,同时创造了效率。减少了交付、混凝土泵、起重机的数量,并且仅减少了支持行业的访问次数。以相同的方式建造这两座房屋,同时创造了效率。减少了交付、混凝土泵、起重机的数量,并且仅减少了支持行业的访问次数。每个项目都有更大的目标很重要。建造可以容纳各种家庭的最小面积,以使用最少的建筑材料。制定一个计划,让未来的业主有机会添加以适应和填充房屋周围的空间。不需要开发批准的费用,符合城市规划。最后,可以在具有不同场地条件的其他场地上以不同方式安排重复设计和模块的想法。
每个房间都作为一个模块固定在走廊上,将每个空间连接起来,就像沿着计划长度的脊柱一样。卧室和相邻的服务空间可以沿着脊柱分开和/或重新排列。例如,可以通过拉伸平面图在每间卧室之间添加额外的庭院;如果条件合理,房子的起居端可以翻转为面向街道;模块可以根据场地地形在场地上下移动,而不是坐在一层。还打算将研究连接区重新配置为内部楼梯,将上层连接到未来填充的下层,以取代串联停车区。这个项目最有价值的部分是客户是如何爱上这些房子的。Ben、Colleen 和他们的两个十几岁的女儿原本打算在两所房子中的一所住 12 个月左右,然后再卖掉这两所房子。他们非常喜欢住在那里并开发花园,他们搁置了出售其中一所房子的计划,现在正在将相邻的双胞胎租给另一个可爱的家庭。
澳大利亚双子住宅外部实景图
澳大利亚双子住宅外部实景图
澳大利亚双子住宅内部实景图
澳大利亚双子住宅内部实景图
澳大利亚双子住宅内部实景图
澳大利亚双子住宅内部实景图
澳大利亚双子住宅内部实景图
澳大利亚双子住宅内部实景图
澳大利亚双子住宅平面图
澳大利亚双子住宅平面图
澳大利亚双子住宅立面图
澳大利亚双子住宅立面图
澳大利亚双子住宅立面图
客服
消息
收藏
下载
最近
















