查看完整案例

收藏

下载
项目名称:澳大利亚10 折住宅
位置:澳大利亚
建筑师: 蒂明斯+怀特建筑师
照片:Peter Bennetts
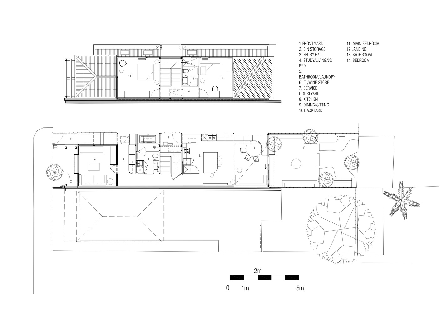
最初的爱德华时代单层小屋是黑暗的,与外界缺乏联系。我们在屋顶上使用了 10 个褶皱,沿着瘦长的房子和场地吸收光线。这些褶皱最大限度地减少了东部邻居的体积,并上升到了大型的两层当代西部邻居。这座房子谦逊地向街道致敬,对爱德华时代的小屋进行了现代调整,房子的两层楼部分远离街道,隐藏了卧室的体积。重建的原始房间被漆成白色,以与现场原始小屋和邻近房屋保持一致。房子的两层“新”部分被覆盖并涂成绿色,颜色与澳大利亚灌木的叶子相匹配。我们选择了木门窗,因为它们是我们的客户最常接触的建筑部分,而木材为调色板增添了温暖。在整个过程中,空间创造了自己的扩张和压缩感——从私密的餐厅到悬挂在精心挑选的艺术墙上的高耸天花板。
从原来的房子重新安排空间意味着厨房和餐厅现在向他们的季节性和可食用花园开放,邻居的房子看不见,但他们的成熟树木,包括棕榈和蓝花楹,成为我们客户季节性体验的一部分。忠实于我们的设计理念,这是一个经过深思熟虑和精心打造的住宅,为我们的客户改善生活十倍。” 该结构是轻型螺柱框架和屋顶横梁,采用 av 连接 fc 板涂漆。屋顶覆盖着彩色金属。 在一楼,单层前厅有时用作起居室、书房和客房。洗衣房和浴室是该计划的中心,一个小型服务庭院可以让淋浴间的景色和空气流通。花园和北极光直接从厨房和餐厅进入。在这个空间里休息的机会也是通过沙发和带软垫的 L 形长椅来实现的。楼上是第二间卧室和两间卧室,供我们的客户和他们十几岁的女儿使用。 房子使用被动冷却和通风,以尽量减少空调和人造光的使用,客户告诉我们,他们对它的功能非常满意。客户很高兴地投资了太阳能电池板、用于花园灌溉的水箱以及提高墙壁和屋顶隔热层规格的机会,从而使房子在整个季节都保持在相当稳定的温度。楼梯上可打开的天窗在夏天将热空气排出,而上层卧室则受益于冬天从楼下升起的热量。
澳大利亚10 折住宅内部实景图
澳大利亚10 折住宅内部实景图
澳大利亚10 折住宅内部实景图
澳大利亚10 折住宅内部实景图
澳大利亚10 折住宅平面图
客服
消息
收藏
下载
最近








