查看完整案例

收藏

下载
项目名称:西班牙真理广场住宅楼
位置:西班牙
设计公司:Laguillo Arquitectos + Cayuela Marqués Arquitectos
真理广场位于西班牙科尔多瓦纪念综合体前,近年经历了整体改造。罗马桥及Calahorra塔周边的翻新,包括Miraflores大桥的建造,可持续性地提升了Guadalquivir河流两岸的连接。此外,新Miraflores公园和Andalusian当代创造C4中心等重要设施改变了该场所有史以来作为城市边缘地区的现状。从这个角度来看,基地现在已经成为了城市战略区域的一部分,设计不仅要考虑项目与当地范式的关系,还要适应新的发展条件。基于历史保护的考虑,项目需要遵从当地城市法规。为了回应这些规定,设计创造了厚重的立面以及围绕庭院设置的开放、明亮的室内空间,其间设有开敞的交通流线。在此之上,项目还将规范看作唤醒人们所熟知的文化场景的愿望。开放的前院成为了公共到私密空间的过渡;水景和绿化形成的宁静庭院与带有垂直开窗的厚重立面形成对比;独特的材料性则由传统构造系统演变而来。因此,设计的主要目标之一是以当代语言转变建筑,同时用怀旧以外的手法在建筑本身的记忆和价值,以及环境的共同遗产之间建立起一种连续性。
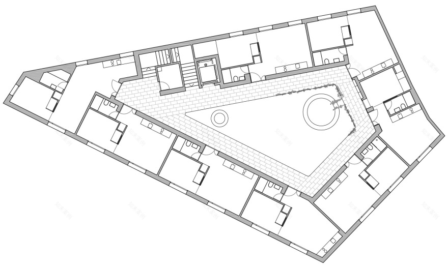
在面向城市纪念性空间的一侧,建筑呈现为厚重的体量,通过调节各个立面的尺度形成连续的形状。朝向河面的开窗更大,呼应了河岸景观和纪念性综合体的景色;朝向周边住宅的开窗较小,创造了一种特定的连接。建筑入口位于一处小小的公共空间边。门厅作为开放的入口大厅,在街道和庭院、公共和私密空间之间创造了一种连续性。综合体围绕一座温暖安静的庭院布局,庭院中设有绿化和水景,形成了一套传统的控制环境和生态气候的系统。另一方面,车行入口被设置在街道侧,利用地形形成了一道轻缓的斜坡,减少开挖的深度。项目包含14间带停车位的公寓,其中大部分住宅设有单独向外的开口,以保持自身的私密性。每间公寓中的固定功能相同,包括厕所、客厅-餐厅-厨房以及卧室,功能之间相互连接,创造了一个更加流动的空间,弥补面积的不足。装饰性的扶手如同织物一般,使人联想起当地流行的文化图像和植物图案。传统的卵石和石材铺地、石灰砂浆、木材、水景和植物是庭院的组成材料,和谐地制造出了一种令人愉悦的氛围,既熟悉又陌生。最终,项目中的所有决策通过传统与现代的张力连接在一起。
西班牙真理广场住宅楼外部实景图
西班牙真理广场住宅楼外部实景图
西班牙真理广场住宅楼外部实景图
西班牙真理广场住宅楼外部实景图
西班牙真理广场住宅楼外部实景图
西班牙真理广场住宅楼外部实景图
西班牙真理广场住宅楼外部实景图
西班牙真理广场住宅楼外部实景图
西班牙真理广场住宅楼外部实景图
西班牙真理广场住宅楼外部实景图
西班牙真理广场住宅楼外部实景图
西班牙真理广场住宅楼外部实景图
西班牙真理广场住宅楼外部实景图
西班牙真理广场住宅楼外部实景图
西班牙真理广场住宅楼外部实景图
西班牙真理广场住宅楼外部实景图
西班牙真理广场住宅楼外部实景图
西班牙真理广场住宅楼外部实景图
西班牙真理广场住宅内部实景图
西班牙真理广场住宅楼内部实景图
西班牙真理广场住宅楼内部实景图
西班牙真理广场住宅楼内部实景图
西班牙真理广场住宅楼内部实景图
西班牙真理广场住宅楼平面图
西班牙真理广场住宅楼平面图
西班牙真理广场住宅楼立面图
客服
消息
收藏
下载
最近





























