查看完整案例

收藏

下载
项目名称:墨西哥Barranca del Muerto复合式公寓
位置:墨西哥
设计公司:CCA
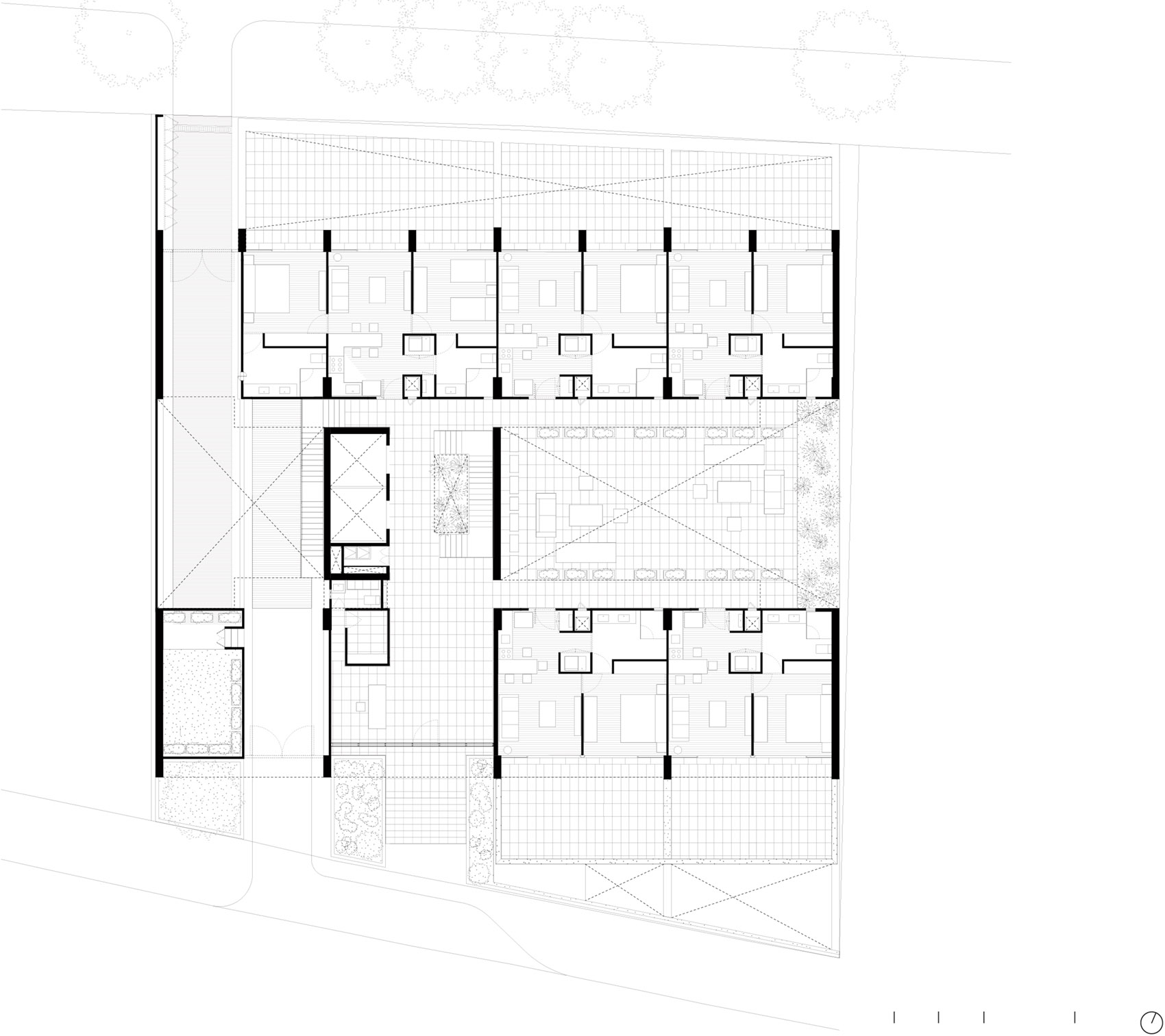
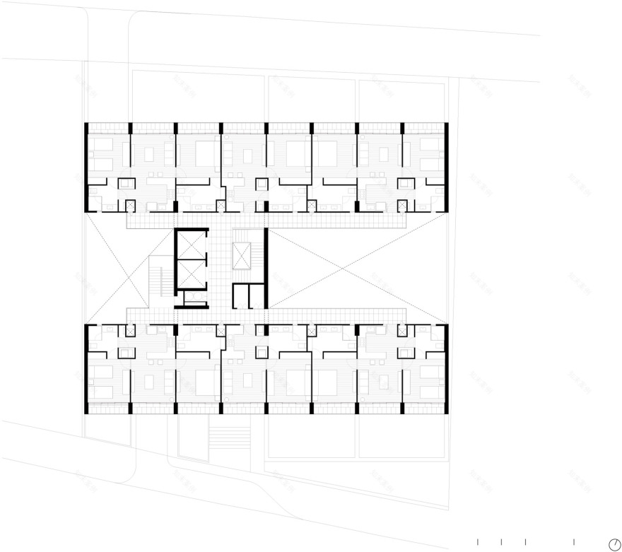
该项目以双塔楼设计为特色,其两个主立面分别朝向Barranca del Muerto和José María Ibarrarán街道。在建筑内部,两幢塔楼共享同一个交通核心筒,并通过十层楼高度的中央庭院相互连接。作为调整建筑内部空间结构的基本要素,钢筋混凝土网格两三组合形成一组室内空间。塔楼临街面采用退台设计,为塔楼与街道之间创造了一处隔绝城市喧嚣的宜居空间。外露的混凝土结构不仅构成了立面本身,也为每套公寓提供了阳台。
墨西哥Barranca del Muerto复合式公寓外部实景图
墨西哥Barranca del Muerto复合式公寓外部实景图
墨西哥Barranca del Muerto复合式公寓外部实景图
墨西哥Barranca del Muerto复合式公寓外部实景图
墨西哥Barranca del Muerto复合式公寓外部实景图
墨西哥Barranca del Muerto复合式公寓外部实景图
墨西哥Barranca del Muerto复合式公寓外部实景图
墨西哥Barranca del Muerto复合式公寓外部实景图
墨西哥Barranca del Muerto复合式公寓外部实景图
墨西哥Barranca del Muerto复合式公寓外部实景图
墨西哥Barranca del Muerto复合式公寓外部实景图
墨西哥Barranca del Muerto复合式公寓内部实景图
墨西哥Barranca del Muerto复合式公寓内部实景图
墨西哥Barranca del Muerto复合式公寓内部实景图
墨西哥Barranca del Muerto复合式公寓内部实景图
墨西哥Barranca del Muerto复合式公寓平面图
墨西哥Barranca del Muerto复合式公寓平面图
墨西哥Barranca del Muerto复合式公寓平面图
墨西哥Barranca del Muerto复合式公寓剖面图
客服
消息
收藏
下载
最近






















