查看完整案例

收藏

下载
项目名称:韩国Marea住宅
位置:韩国
设计公司:Rieuldorang Atelier
照片:尹俊焕
通过将我的观点从简单的住宿转变为游戏,我想到了一种养老金。什么是玩,在体验中伴随着乐趣和享受。大多数住在公寓里的人在生活空间中缺乏玩耍。这是一个简单的游戏,但在公寓客厅里却做不到。随风摇曳的植物、触碰泥土的体验等等。以及我在设计幼儿园时学到的儿童乐园的体验,为家庭泳池别墅与家人提出了新的服务视角。 高房价包含的服务满意度难免偏高。它来自质量和考虑。建筑的品质是奢华的标准。例如,对运动的深度考虑、对空间大小的满意程度、经验衍生的床高、儿童的游戏模式等。另外,考虑到客人可能会因高房价而感到负担,将两间客房隔开,并与每间客房的浴室相连,让两家人住得舒心。由于可以以一半的成本使用,因此可以灵活应对成本繁重的情况。一个简单平坦的草坪作为风景的地方比玩耍的地方更有意义。正如 Miracle Playground 实验所揭示的那样,这座小山足以进行各种类型的游戏。客人的评论证明,只要有泥土和山丘,孩子们可以自己创造和玩任何游戏。在泳池别墅里比泳池还要丘陵的院子里,孩子们一直玩到退房时间都满了。亲眼所见,心中充满了遗憾。观赏花园和游乐场之间的界限被移除。我希望客人能感受到山、树、草的自然美景。
韩国Marea住宅外部实景图
韩国Marea住宅外部实景图
韩国Marea住宅外部实景图
韩国Marea住宅外部实景图
韩国Marea住宅外部实景图
韩国Marea住宅外部实景图
韩国Marea住宅外部实景图
韩国Marea住宅外部实景图
韩国Marea住宅外部实景图
韩国Marea住宅外部实景图
韩国Marea住宅外部实景图
韩国Marea住宅内部实景图
韩国Marea住宅内部实景图
韩国Marea住宅内部实景图
韩国Marea住宅内部实景图
韩国Marea住宅外部实景图
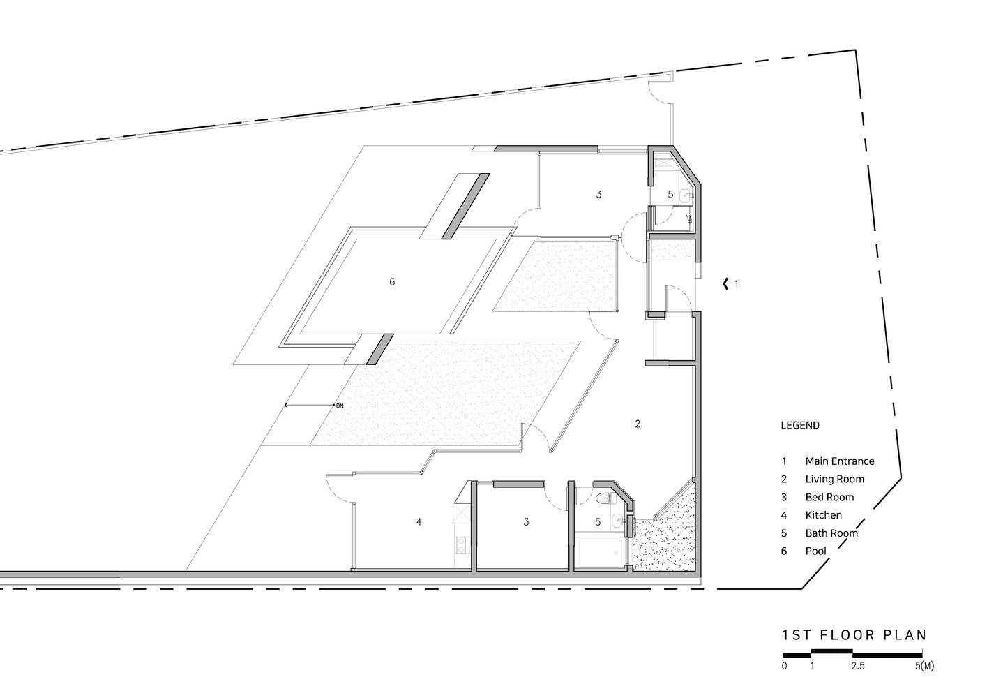
韩国Marea住宅平面图
韩国Marea住宅内部实景图
韩国Marea住宅平面图
韩国Marea住宅剖面图
韩国Marea住宅剖面图
韩国Marea住宅立面图
韩国Marea住宅立面图
客服
消息
收藏
下载
最近


























