查看完整案例

收藏

下载
项目名称:泰国Baan Akard Yen住宅
位置:泰国
设计公司:Studio Krubka
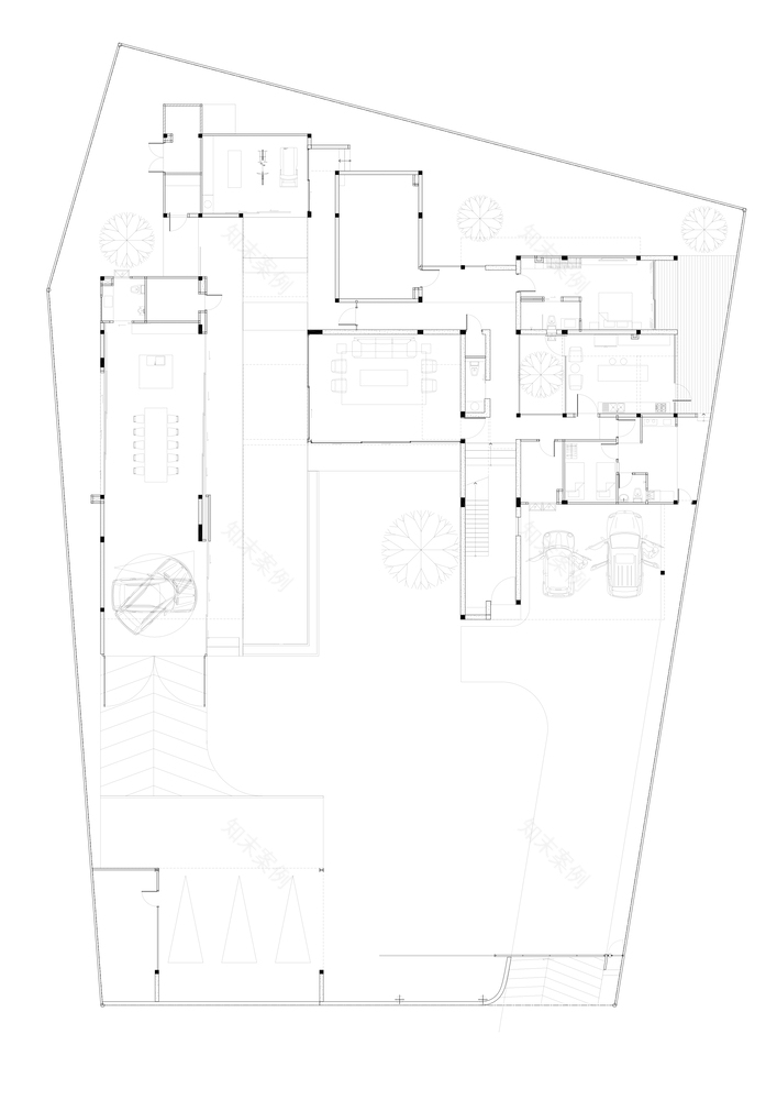
Baan Akard Yen 是位于泰国曼谷Yen Akard 街(Yen = Cool,Akard = Air)的两层住宅项目。这个项目的名字是业主对地址名称的一种玩弄,也是希望房子充满舒适和凉爽的微风的愿望。Baan Akard Yen 项目面积约为 1,600 平方米,经历了两个设计过程。最初,该物业仅位于约 400 平方米的土地上,其概念是通过框架视图在不同空间之间进行视觉互动,以便一个人知道另一个在房子内的位置。由于与业主希望拥有的空间要求相比,该区域的限制,Baan Akard Yen 的第一个设计侧重于流通和开口,以帮助导航和连接每个复杂的内部功能和空间组织。然而,就在施工开始之前,隔壁的一块新土地被收购,需要对设计进行大修。保持每个空间原有的视觉交互,新的设计将承担增加外部与内部关系的挑战。由于拥有更大的土地,可以展开原本复杂的空间组织,让规划更加简单明了。五个不同设计的庭院鼓励用户在整个项目中体验不同的景观,同时让房子轻巧舒适,而且不会太宽敞。
七个浇铸混凝土墙成为主要的视觉结构,并在项目中定义了不同的不同区域,同时允许通过位于这些主要结构内的特定开口将每个区域连接起来。因为房子的布局比原来的设计更分散,庭院起到了不同区域之间的视觉联系的作用,让居住者可以在视觉上访问房子的不同部分,从而使业主始终相互联系.该项目的标志之一是该建筑的主要“终端”或主厅,作为项目的中心,也是最难建造的建筑之一。设置有四、十四米高的浇筑混凝土墙和浇筑混凝土天花板,中央航站楼是一个指挥中心,当人们进入住宅时,首先看到的就是它。为了照亮这个空间,并在视觉上抬高天花板,走廊的每一端都有两个带天窗的弯曲混凝土天花板,允许光线穿透建筑物的最中央部分。混凝土的不完美特性允许光线接触表面,并在一天中的不同时间创造出微型阴影和光线的游戏。
泰国Baan Akard Yen住宅外部实景图
泰国Baan Akard Yen住宅外部实景图
泰国Baan Akard Yen住宅外部实景图
泰国Baan Akard Yen住宅外部实景图
泰国Baan Akard Yen住宅外部实景图
泰国Baan Akard Yen住宅外部实景图
泰国Baan Akard Yen住宅外部实景图
泰国Baan Akard Yen住宅外部实景图
泰国Baan Akard Yen住宅内部实景图
泰国Baan Akard Yen住宅内部实景图
泰国Baan Akard Yen住宅内部实景图
泰国Baan Akard Yen住宅内部实景图
泰国Baan Akard Yen住宅内部实景图
泰国Baan Akard Yen住宅内部实景图
泰国Baan Akard Yen住宅内部实景图
泰国Baan Akard Yen住宅内部实景图
泰国Baan Akard Yen住宅内部实景图
泰国Baan Akard Yen住宅内部实景图
泰国Baan Akard Yen住宅内部实景图
泰国Baan Akard Yen住宅内部实景图
泰国Baan Akard Yen住宅内部实景图
泰国Baan Akard Yen住宅内部实景图
泰国Baan Akard Yen住宅内部实景图
泰国Baan Akard Yen住宅内部实景图
泰国Baan Akard Yen住宅内部实景图
泰国Baan Akard Yen住宅平面图
泰国Baan Akard Yen住宅平面图
泰国Baan Akard Yen住宅平面图
泰国Baan Akard Yen住宅平面图
泰国Baan Akard Yen住宅剖面图
泰国Baan Akard Yen住宅剖面图
泰国Baan Akard Yen住宅剖面图
泰国Baan Akard Yen住宅剖面图
客服
消息
收藏
下载
最近




































