查看完整案例

收藏

下载
项目名称:印度尼西亚Rumah Bias住宅
位置:印度尼西亚
设计公司:Adria Yurike Architects
摄影:威廉·卡伦孔甘摄影
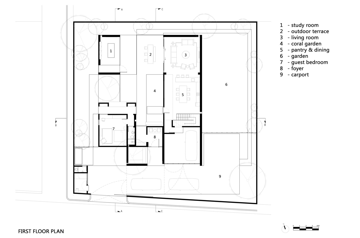
Bias house 位于印度尼西亚日惹的Sleman农村地区。目前,这是一对有两个孩子的年轻夫妇的家。在最初的项目简介中,这个家庭表示他们想要一栋有很多开放空间的房子,但同时仍然会给他们隐私。这导致我们用一些相互分离的空间程序来设计房子。因此,在建筑物的中心创造了一个宽敞的区域。这个项目的位置在街道的拐角处,土地的形状是正方形:29 x 29米。建筑质量的测量值为 21 x 16.5 米。土地后面的景观是稻田,有可能为整个建筑提供良好的自然光线和良好的气流。房子的结构可以被看作是一个盒子中的盒子,有一个通往建筑物外部的小开口。相反,建筑内部的房间相互之间有一种开放感,并以房子中间的半户外露台为中心。我们设计了一些空隙,将上层的多功能室与一楼的内部和外部连接起来,营造出二楼开放和宽敞的印象。家庭活动室、餐厅、书房和所有卧室,使房主可以走出卧室,在房子周围和屋内进行日常活动时,呼吸新鲜空气和自然热带光线。小手势是为了应对热带气候。其中之一是制作第二层皮肤,其功能是保护房屋内的房间和开放空间免受来自建筑物西侧的阳光照射。第二层表皮由铁木制成,垂直堆叠在建筑物朝西的某些区域的房间开口和花园空隙前。环绕房屋的绿色区域在水平和垂直方向上被推拉,以创造另一种印象,即房间与外部的联系更加紧密,因此更加宽敞,更加热带。这也使自然采光和良好的空气通风有机会进入房屋的其他部分。
印度尼西亚Rumah Bias住宅外部实景图
印度尼西亚Rumah Bias住宅外部实景图
印度尼西亚Rumah Bias住宅外部实景图
印度尼西亚Rumah Bias住宅外部实景图
印度尼西亚Rumah Bias住宅外部实景图
印度尼西亚Rumah Bias住宅外部实景图
印度尼西亚Rumah Bias住宅外部实景图
印度尼西亚Rumah Bias住宅外部实景图
印度尼西亚Rumah Bias住宅局部实景图
印度尼西亚Rumah Bias住宅内部实景图
印度尼西亚Rumah Bias住宅内部实景图
印度尼西亚Rumah Bias住宅内部实景图
印度尼西亚Rumah Bias住宅内部实景图
印度尼西亚Rumah Bias住宅内部实景图
印度尼西亚Rumah Bias住宅内部实景图
印度尼西亚Rumah Bias住宅内部实景图
印度尼西亚Rumah Bias住宅平面图
印度尼西亚Rumah Bias住宅平面图
印度尼西亚Rumah Bias住宅平面图
印度尼西亚Rumah Bias住宅平面图
印度尼西亚Rumah Bias住宅剖面图
印度尼西亚Rumah Bias住宅剖面图
印度尼西亚Rumah Bias住宅剖面图
印度尼西亚Rumah Bias住宅立面图
印度尼西亚Rumah Bias住宅立面图
印度尼西亚Rumah Bias住宅立面图
客服
消息
收藏
下载
最近





























