查看完整案例

收藏

下载
项目名称:印度尼西亚Stack By Step Red Zone宿舍
位置:印度尼西亚
设计公司:Ismail Solehudin Architecture
摄影师:马里奥·维博沃
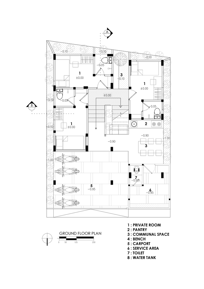
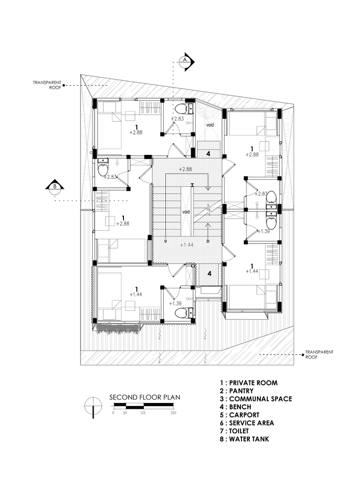
我们发现该场地面积如此之小,位于拥挤的城市空间,将用于商业建筑。我们怀疑,在我们的项目中,使用单载或双载概念的普通类型宿舍是土地效益的最佳设计吗?我们做了一项研究,将一般的双载走廊概念与我们的概念进行比较,结果表明,普通概念并不比我们提供的更有效。将曾经是人流的走廊区域,作为单元区域进行接管,是我们的第一个想法。这个想法使楼梯成为每个单元之间唯一的水平和垂直循环。此外,楼梯可以成为居民的社交空间。因此,在单元总数完全相同的情况下,我们提供的概念比常见的双载概念提供更少的占地面积。这证明我们的概念对土地效益更有效。这种循环系统成为另一种不同于其他宿舍设计类型的建筑陈述。为了使这个声明更有说服力,我们为外墙使用了红色。正是因为红色是最强烈的颜色,它的波长在630-760纳米之间,所以让红色瞬间抓住了人们的眼球。住宅区之间的多住宅的功能和位置成为建筑形式的想法,我们希望这座建筑成像一个累积的堆叠房屋。我们通过主循环形成的堆叠体块来实现这个图像,这个实现形成了一个错层空间。然后,遵循每个单元格下方的碎片化倾斜屋顶使图像更加清晰。这些屋顶下的空间将用作夹层,以在未来扩大单元的房间。与此同时,屋顶支离破碎的堆叠体块成为对热带气候的另一种回应,这种气候可能会使建筑物内部的空气流通更多。
印度尼西亚Stack By Step Red Zone宿舍外部实景图
印度尼西亚Stack By Step Red Zone宿舍外部实景图
印度尼西亚Stack By Step Red Zone宿舍外部实景图
印度尼西亚Stack By Step Red Zone宿舍外部实景图
印度尼西亚Stack By Step Red Zone宿舍内部实景图
印度尼西亚Stack By Step Red Zone宿舍内部实景图
印度尼西亚Stack By Step Red Zone宿舍内部实景图
印度尼西亚Stack By Step Red Zone宿舍内部实景图
印度尼西亚Stack By Step Red Zone宿舍内部实景图
印度尼西亚Stack By Step Red Zone宿舍内部实景图
印度尼西亚Stack By Step Red Zone宿舍平面图
印度尼西亚Stack By Step Red Zone宿舍平面图
印度尼西亚Stack By Step Red Zone宿舍平面图
印度尼西亚Stack By Step Red Zone宿舍平面图
印度尼西亚Stack By Step Red Zone宿舍平面图
印度尼西亚Stack By Step Red Zone宿舍剖面图
印度尼西亚Stack By Step Red Zone宿舍立面图.
客服
消息
收藏
下载
最近




















