查看完整案例

收藏

下载

翻译
Firm: DesignEpoch
Type: Residential › Multi Unit Housing Commercial › Office
STATUS: Built
YEAR: 2023
SIZE: 10,000 sqft - 25,000 sqft
BUDGET: $50K - 100K
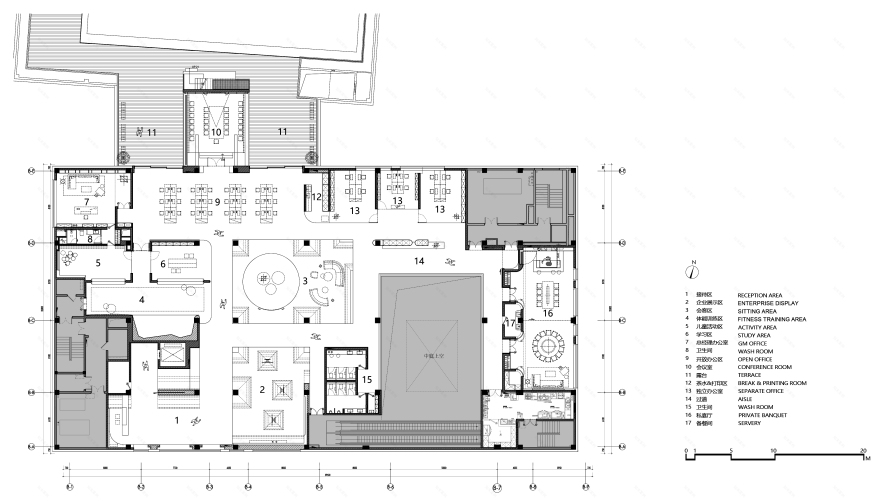
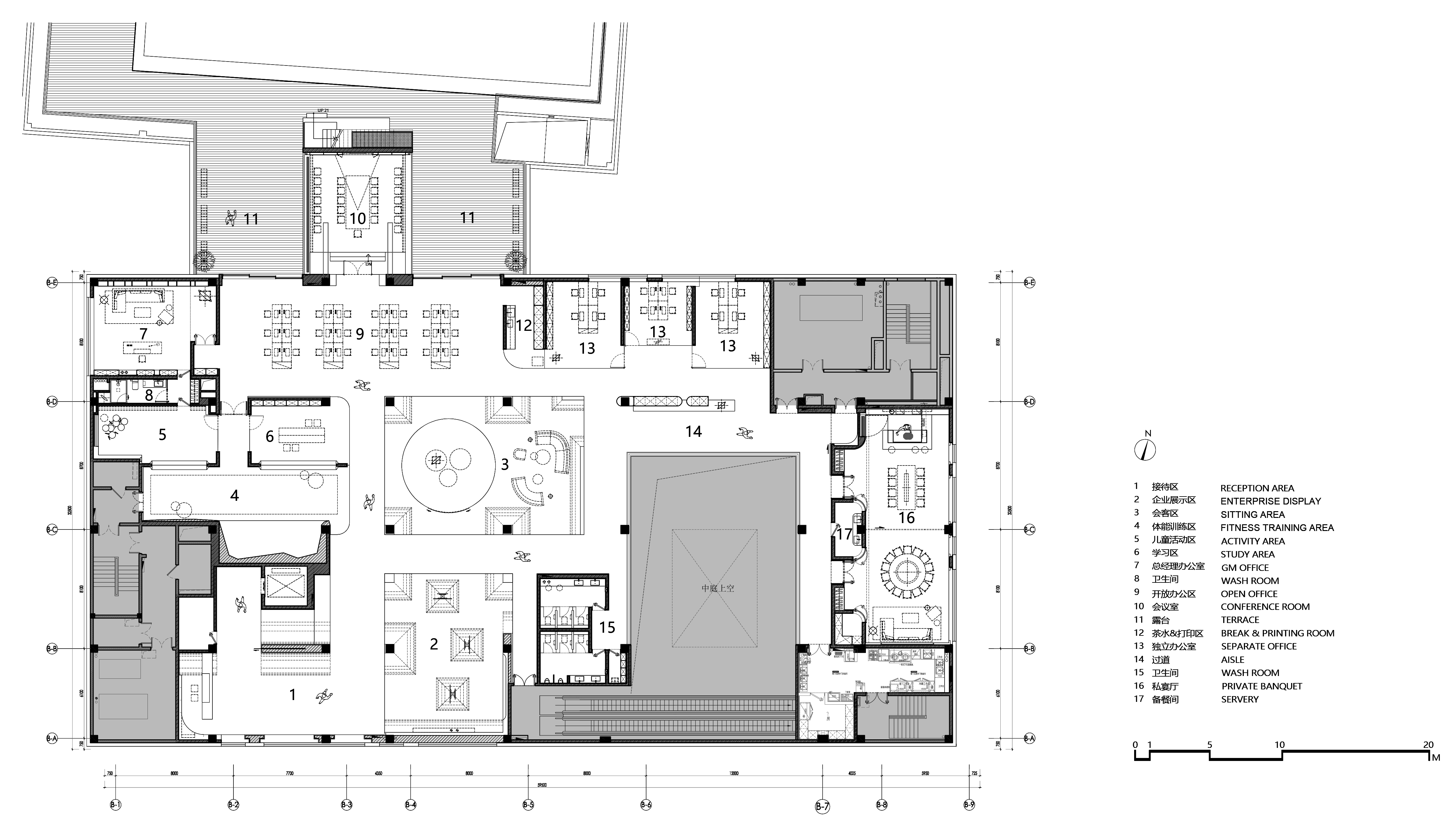
From traditional modular cubicles to today’s open collaborative spaces, humans have never stopped changing the way they work. Designed by the One House team led by founder Fang Lei, the interior of the new office of Shanghai Transaction Succeed Industrial Investment, recently unveiled at Shanghai Yuejie Expo Park, is contemporary, minimalist, smart and efficient, incorporating multiple work scenarios to create a “borderless, parallel workspace”.“To rethink the office space of the future, to adapt to it and drive business growth, and to highlight uniqueness in commonalities is a vision shared by the client and ourselves. On top of the everyday workspace, We set out to explore the combination and interaction of multiple spaces by examining and exploring the distinctive features of the company, and by extracting, breaking down and developing from the elements of its logo. We seek to incorporate more possibilities to co-create a cool and fun work environment,” said Fang Lei. Depth and tranquility set the tone for the entrance, as multiple mirrors on the ceiling and walls blur the line between virtual and real, conveying a sense of ritual. Visually and emotionally, it expresses a process from restraint to release. Drawing from the iconic curved shape, free-flowing silhouettes are created. The interior opens up from a glass front punctuated by curved windows, an important element throughout the space. The entrance plays with aesthetic contrasts through the use of different shades of the same color, various materials and diverse shapes that exist in exquisite tension, unraveling chapters of artistic imagination and fascinating discovery.The raised floor, tiered roof and built-in BOX block become the defining spatial features of the display section, where repeated organic forms, undulating silhouettes and multi-dimensional mapping overlap to create a fluid space that mimics a wormhole. Designed with current and future functions in mind, the display section leaves blank spaces in between, a gallery and an exhibition in one. An art installation serves as a central hub, melting boundaries for an endless expanse of vision, a striking view with contrasting colors and lighting. The fusion of squares and circles leads to a balanced and meaningful expression.The adjacent reception area provides a casual setting for social interaction, where a harmonious ensemble of shapes, colors and textures is conveyed with a sense of volume, fluidity and enveloping comfort through Fang Lei’s meticulous execution.A circular layout of traffic flow lends flexibility to the space while connecting each functional zone. A glass curtain encloses the atrium, filtering out noise without blocking sunlight. Covered in mirror-finished stainless steel, the column appears to be afloat with rows of storage cabinets, channeling versatility and a clean minimalism with a circular hallway. Characterized by great visual permeability and neat elegance, the open office space features large floor-to-ceiling windows that eliminate the boundary between the exterior and interior, and dark ceiling grilles that echo the floor in color.A sunken meeting room is created using the original building structure. Aluminum sheets at the top run down and connect seamlessly to the floor; columns wrapped in the same material retain the curved details.The epitome of minimalist design, the general manager’s office is defined by simple lines, dimensions and details, with distinctive emotional auras rendered through color.The private banquet room is separated by sliding doors that open and close easily and smoothly as needed, and is thoughtfully outfitted by the designer with supporting service facilities.The wall of the teppanyaki section is covered with a metal grid that provides rich textures and a tactile feeling with varying materials, changes of light and shadow and multitudes of layers. The door frame at the entrance, with its rectangular shape, contrasts with the curvy lines of the door leaf, sparking a dialogue between masculinity and softness.Open and private at the same time, the banquet room is a continuation and integral part of the entire space, dotted with the same materials, shapes and details. It is a space of tranquility, contrasted by the Huangpu River rushing by outside the window. Together with the Power Station of Art, they evoke urban memories that connect the present to the past with old and new buildings standing next to each other, and arouse complex emotions between people and the interior and exterior environment, shaping a unique spatial experience. In addition to the office and banquet areas, there is a recreation section designated for learning and play for our clients’ children, including a music room, a study area, a physical training area and a climbing wall. Drawing inspiration from the Star Wars series, the music room is shaped like a space capsule, with a Darth Vader motif emerging from behind mirrored glass. The shifting colors of the strips give off a dynamic, cool vibe.With a focus on lightness and translucency, the study area features light-emitting ceiling films and curved elements that mark an elegant and effortless departure from conventional design patterns, making it perfect for children. Incorporating modernism, avant-garde and inclusiveness into the design of the Shanghai Transaction Succeed Office, the designer Fang Lei delves into its daily routines and future possibilities to shape a wondrous encounter between people and space and between work and life, creating artistic and captivating moments imbued with vivid imagination and aesthetic tension.
客服
消息
收藏
下载
最近













