查看完整案例

收藏

下载
项目名称:日本光丘的房子
位置:日本
摄影师:铃木跳平
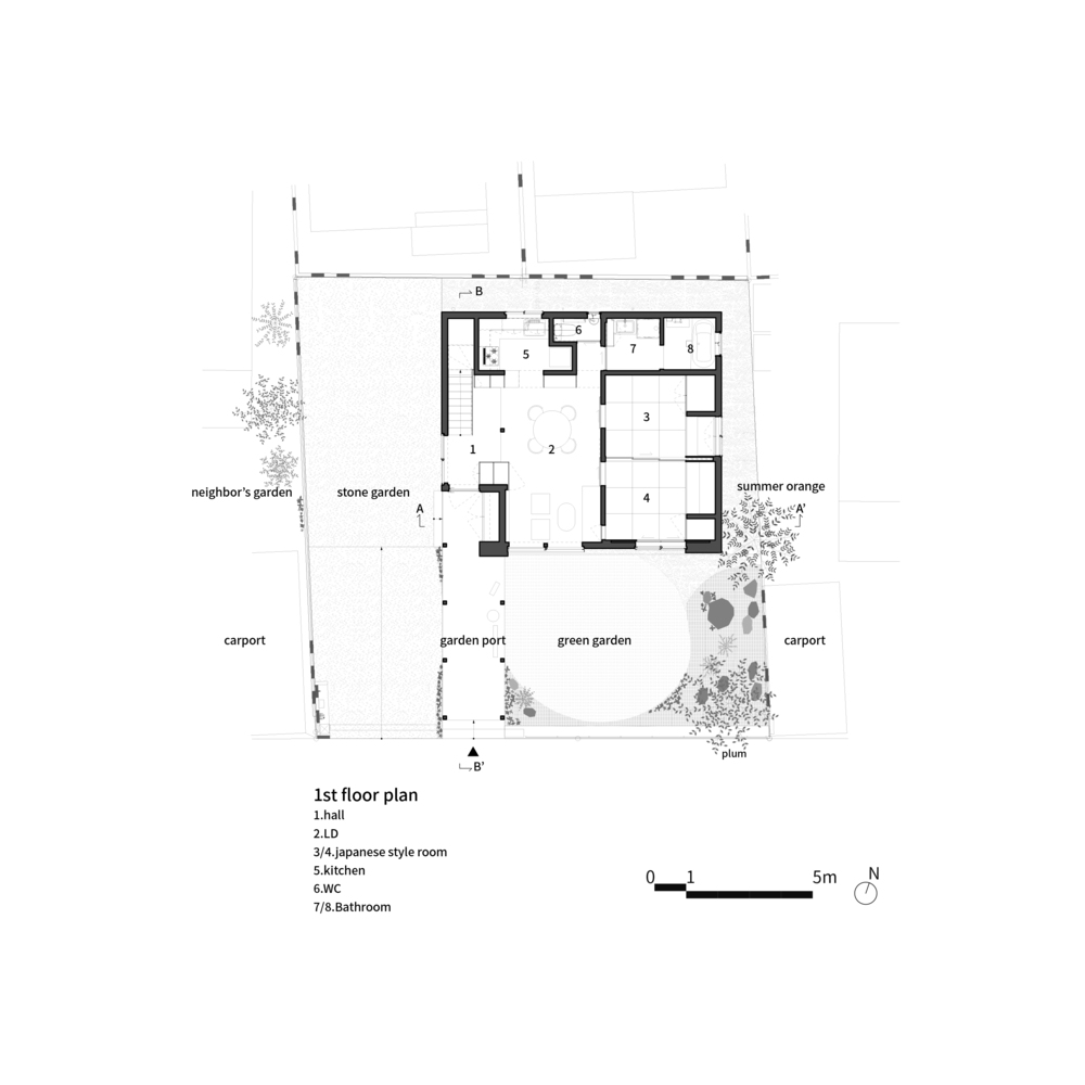
该地块是 1960 年代开发的郊区住宅区。客户想重建原来的房子,为母子家庭建造一个两户人家的房子。我们以现有房屋的环境作为我们设计的基础,因为有许多要求,例如现有建筑的位置,花园和停车场的位置,日式房间的位置,保持数量房间,并保留现有的树木。我们认为有必要解开和重建居民所体现的环境,以创造一个新的环境。我们感觉到两棵树扎根在土地上(一棵李树和一棵夏橙),虽然它们的存在很谦虚,但却为过去房子和花园之间的关系创造了一个坚实的轮廓。从房间里看到的梅树,早春的夏橙黄色成熟,邻居花园里的花草树木,以及让我们想起四季更替的丰富大自然,我们认为这将提供一个组织的机会新生活。
我们首先定义了两个花园,一个是硬质的石头花园,欢迎来自场地外的人、物和车,另一个是植物自然生长的软质绿色花园。然后我们把大亭子般的门廊连接了建筑、两个花园和道路。我们将其命名为“花园港口”,表示人们在郊区城市景观中的位置,车棚位于前台。花园端口穿过建筑物,让光和风穿透整个建筑物。在建筑内部,通过改变用lauan胶合板完成的私人体积的位置,并通过增加两个空隙和一个阁楼,我们创造了一个将整个建筑连接在一起的间隙空间。不同高度和大小的开口被放置在由白色胶合板完成的间隙空间中,以在每个位置创造不同的亮度阴影。此外,缝隙空间让视线穿过其他房间、两个花园、邻居的花园、公园和天空,使流通不以房间结束,而是向周围开放。间隙空间。在保持外观“郊区面貌”的同时,继承了建筑地块和特设的分割体量,扩大的门廊和不同尺度和纹理的缝隙空间叠加在包间上,赋予居住空间多层次的性格。通过这些空间将自我与他人以及更远的外部联系起来,房屋与外部之间的先前关系被更新为个人、家庭和社区之间的灵活联系。
日本光丘的房子外部实景图
日本光丘的房子外部实景图
日本光丘的房子外部实景图
日本光丘的房子外部实景图
日本光丘的房子外部实景图
日本光丘的房子内部实景图
日本光丘的房子内部实景图
日本光丘的房子内部实景图
日本光丘的房子内部实景图
日本光丘的房子内部实景图
日本光丘的房子内部实景图
日本光丘的房子内部实景图
日本光丘的房子内部实景图
日本光丘的房子内部实景图
日本光丘的房子内部实景图
日本光丘的房子内部实景图
日本光丘的房子平面图
日本光丘的房子平面图
日本光丘的房子平面图
日本光丘的房子平面图
日本光丘的房子剖面图
客服
消息
收藏
下载
最近
























