查看完整案例

收藏

下载
项目名称:英国汉宁顿路住宅
位置:英国
设计公司:Matthew Giles Architects
摄影师:洛根·麦克杜格尔-尔湾
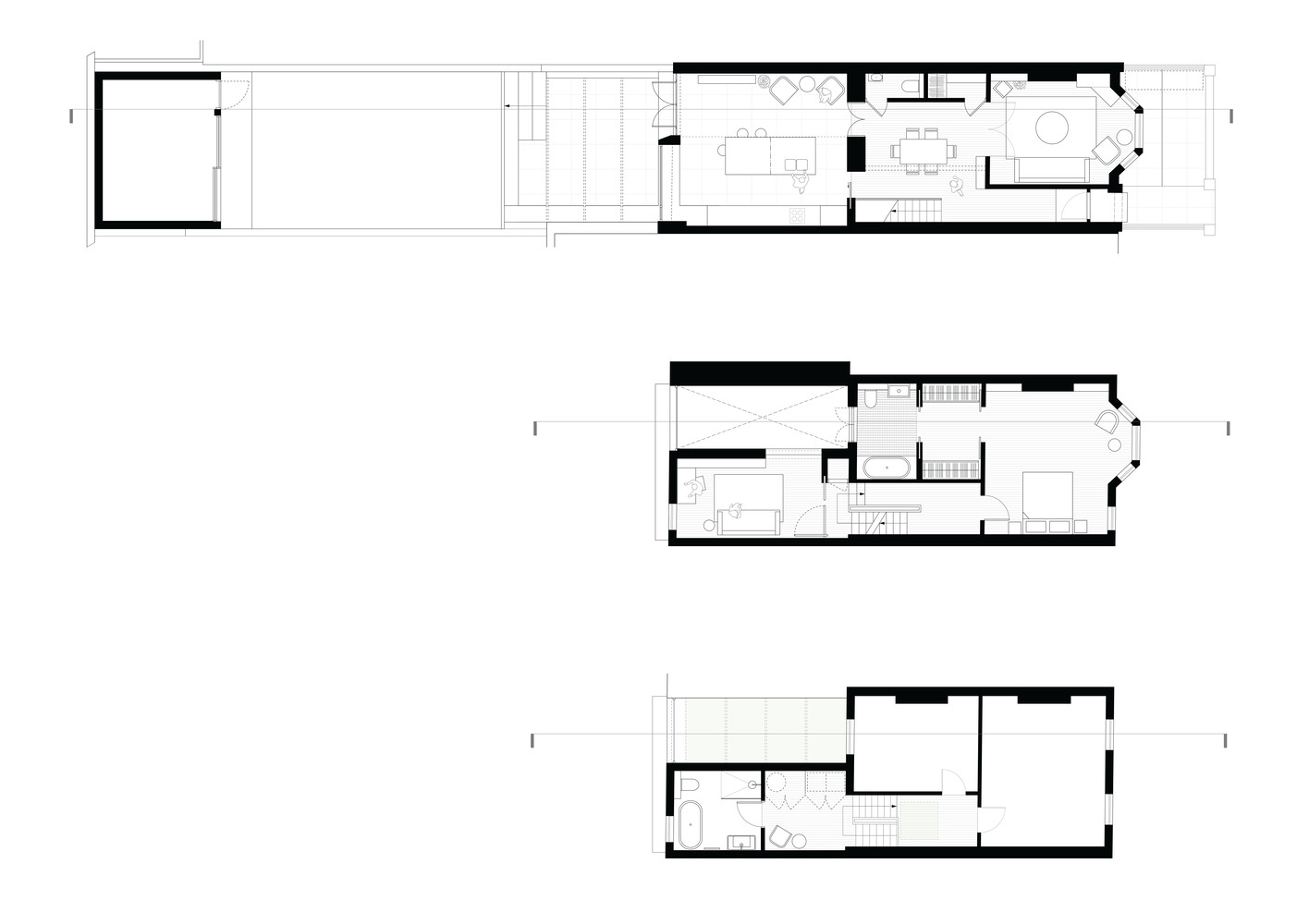
马修·贾尔斯建筑师创造了一系列室内外体验,融合了广阔的空间和非常规的截面布置,以一种增加日常乐趣的方式重新构想了维多利亚式联排别墅。该设计位于克拉珀姆老城区,重新安排了底层和一楼的布局,并在广阔的 2 层空间下方增加了一个新的开放式厨房和起居空间。在进入房子时,年轻的家庭可以通过延伸的建筑足迹直接看到厨房和主要生活空间。宽敞的入口让位于连接前接待室和厨房的用餐区。设计师从这里颠覆了典型的内部布置;空间突然扩大,在厨房上方显露出一个戏剧性的双高空间,上面有一盏定制的铝框屋顶灯。包含邻近物业的侧墙为空间增添了丰富的质感,随着时间的推移,层层油漆使该方案与场地的历史进行了公开的对话——墙也是玩弄“内部”感觉的关键部分。外部”。一楼书房和浴室的开口为两层之间持续的社交和视觉联系创造了机会。穿过房子,这些内部窗户也增强了从家庭到家庭可以全天互动的通道的过渡感。宽敞的主要居住空间不仅创造了视觉趣味,而且支持调节温度和空气供应的自然通风策略。一楼和二楼的开口利用烟囱效应和交叉通风。
凉爽的外部空气不断地从较低层吸入——在建筑物内加热,然后向上上升,通过高层通风口排出。这种被动策略使家庭能够呼吸均匀分布的热量,并减少对碳基能源系统的需求。新扩建部分引入了钢框架 Crittall 玻璃门窗,使后立面焕然一新。窗格的大小已根据现有维多利亚时代窗户设定的视觉顺序进行调整。后立面可以看到新美化的后露台和花园。厨房和外部之间有一个混凝土亭子的网格,在两个区域之间建立了关系。下沉式露台的水平变化和轻质木材凉棚有助于定义户外休息室。作为社交室内空间的延续,露台设有用于准备食物和户外用餐的工作台。从露台出发,一小段台阶通向一个新的花园草坪和一个与主屋相得益彰的工作空间。Matthew Giles Architects 的方案取代了以前夹在该物业壁橱翼中的质量差的瘦身衣,展示了谨慎的建筑干预可以从根本上改变房屋能够提供的体验。
英国汉宁顿路住宅外部实景图
英国汉宁顿路住宅外部实景图
英国汉宁顿路住宅外部实景图
英国汉宁顿路住宅外部实景图
英国汉宁顿路住宅内部实景图
英国汉宁顿路住宅内部实景图
英国汉宁顿路住宅内部实景图
英国汉宁顿路住宅内部实景图
英国汉宁顿路住宅内部实景图
英国汉宁顿路住宅内部实景图
英国汉宁顿路住宅平面图
英国汉宁顿路住宅平面图
英国汉宁顿路住宅剖面图
英国汉宁顿路住宅剖面图
客服
消息
收藏
下载
最近

















