查看完整案例

收藏

下载
项目名称:乌拉圭罗安达住宅
位置:乌拉圭
设计公司:Fábrica de casas
摄影师:马科斯·吉波尼
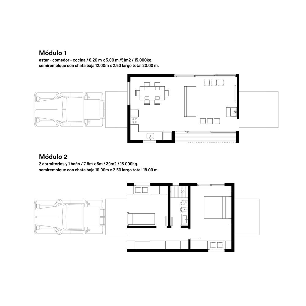
房子是给谁住的。它被植入何塞·伊格纳西奥 (José Ignacio) 附近的乡村景观中,是海上农场替代住房的解决方案。它还旨在作为一系列干预措施的可能开始,即在不攻击现有事物的情况下引入的撤退。FABRICA DE CASAS 响应客户的需求,无需施工。选择在当地和景观中发生率低的地方。位于原生坐骑的边缘,它几乎是一个物体,一个与景观融为一体的拉帕乔盒子。选择这种木材是为了让它自然生锈。它是一种无需维护即可随时间流逝的材料,并且会像原生支架一样修改其颜色和纹理。这所房子是从舒适的地方开始的乡村生活的撤退。它与外界有关,但也是一种闭关。它解决了客厅餐厅厨房的公共空间,有两间卧室和一间浴室。通过双重方向的空间尊重北面的阳光和南面的原始房屋之间的紧张关系。正如它们使我们能够与景观永久接触一样。面临的挑战是植入一座以微妙方式融入景观的房屋。
乌拉圭罗安达住宅外部实景图
乌拉圭罗安达住宅外部实景图
乌拉圭罗安达住宅外部实景图
乌拉圭罗安达住宅外部实景图
乌拉圭罗安达住宅外部实景图
乌拉圭罗安达住宅外部实景图
乌拉圭罗安达住宅外部实景图
乌拉圭罗安达住宅外部实景图
乌拉圭罗安达住宅外部实景图
乌拉圭罗安达住宅外部实景图
乌拉圭罗安达住宅外部实景图
乌拉圭罗安达住宅外部实景图
乌拉圭罗安达住宅外部实景图
乌拉圭罗安达住宅外部实景图
乌拉圭罗安达住宅内部实景图
乌拉圭罗安达住宅内部实景图
乌拉圭罗安达住宅内部实景图
乌拉圭罗安达住宅内部实景图
乌拉圭罗安达住宅内部实景图
乌拉圭罗安达住宅内部实景图
乌拉圭罗安达住宅内部实景图
乌拉圭罗安达住宅内部实景图
乌拉圭罗安达住宅内部实景图
乌拉圭罗安达住宅内部实景图
乌拉圭罗安达住宅平面图
乌拉圭罗安达住宅平面图
乌拉圭罗安达住宅平面图
乌拉圭罗安达住宅剖面图
乌拉圭罗安达住宅立面图
客服
消息
收藏
下载
最近
































