查看完整案例

收藏

下载
主角是一家咖啡馆酒吧,位于乌克兰哈尔科夫市的历史部分。这里是富有创造力和想像力的人们的聚会场所,他们可以分享想法并表达自己。这里的每位客人都是“主角”,是故事情节的主角,也是创意的倡导者。
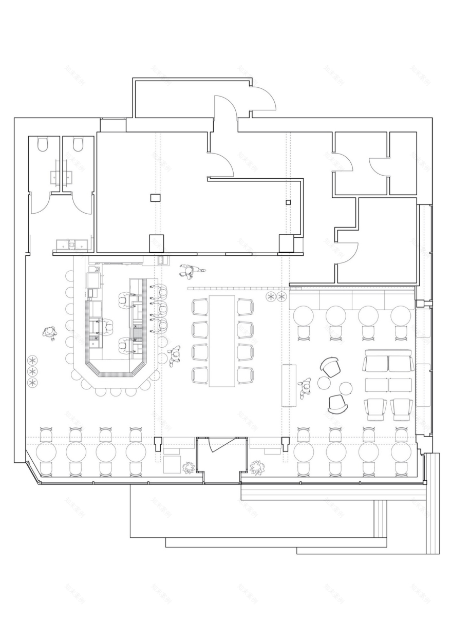
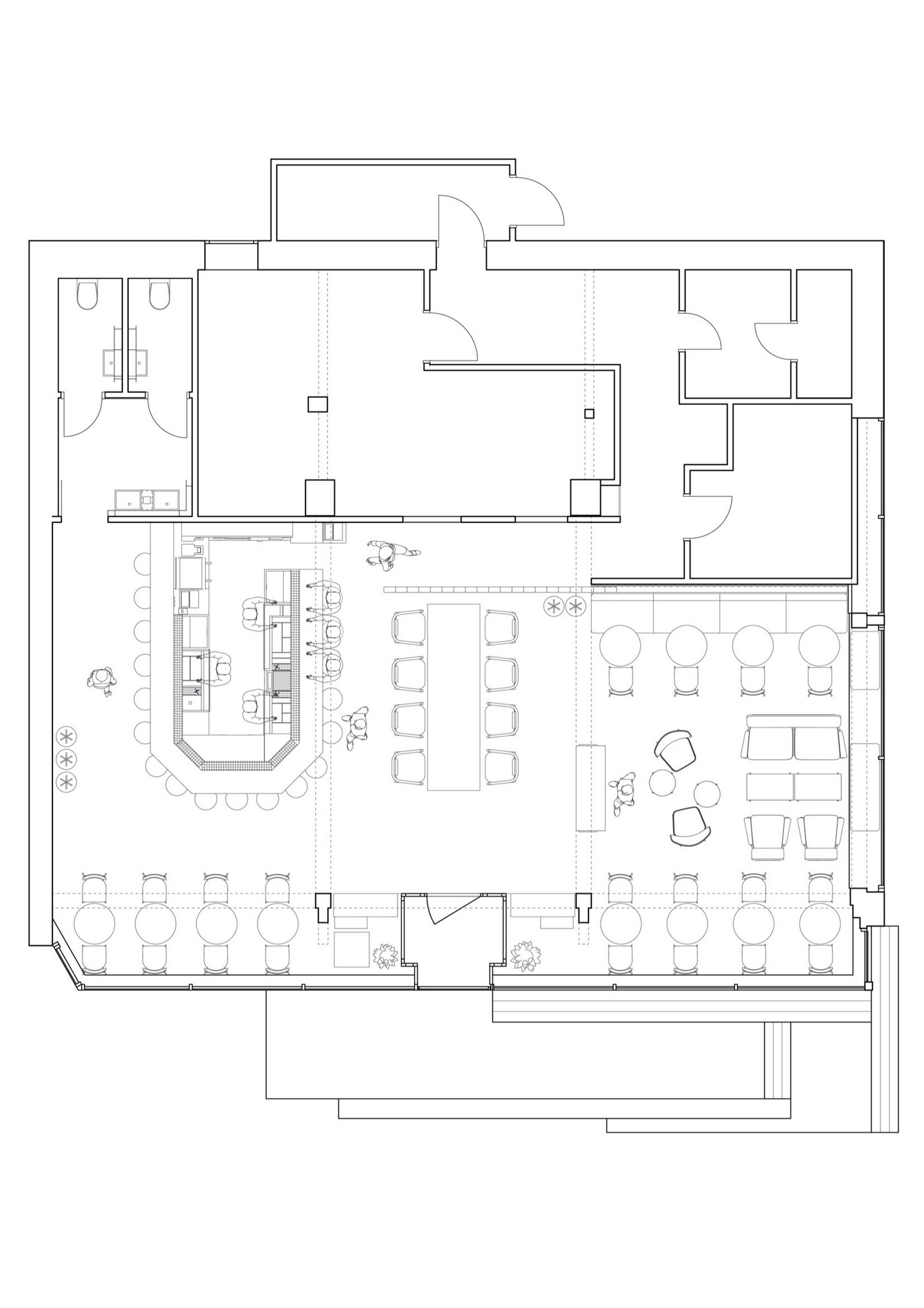
这是一间带有混凝土支柱的阁楼,我们将旧的饰面剥离掉,以揭示天花板纹理的美感,以及先前拆除的地砖的复杂背面印记。这些是我们要保留的关键元素,因此强调了建筑物的原始建筑设计。
我们的任务之一是将空间划分为功能区域和流程。因此,我们将房间的背面指定为技术区,而全景窗户的中央部分成为主要的用餐区。在房间中间放置了一个可容纳大型团体的公用桌子,桌子的左侧放置了一个全尺寸的酒吧。
我们将DJ固定在桌子的右侧,而柔软的座椅(扶手椅和沙发)以及可容纳两个人的小桌子则放在DJ的后面,还有全景窗户。除公用桌子外,大多数家具元素都是由我们的家具品牌propro设计和生产的。
没有音乐,就不会有酒吧。该机构的所有者是高品质声音的真正鉴赏家,他们非常重视声音设备。他们选择了Void Acoustics,这是针对安装和现场音响市场的音频系统的领先制造商。虚空不仅可以播放背景音乐,还可以与邀请的DJ举办派对。
复古设计的时髦主题可以追溯到整个房间。从正宗的钢化玻璃墙板上可以看出,我们在对一栋老建筑进行解构期间进行了抢救。它也是在DJ的控制面板中,我们通过对老式射线图进行现代化改造而创建。后壁上的老镜子会产生无限的视觉效果,增加物体并增加视角。
DJ控制台是我们在分类广告网站上购买的现代化的苏联时代的放射图。我们将放射线图切成两半,并添加了用现代材料制成的缺失部分。电线穿过放射线的腿,音乐控制单元隐藏在放射线内。
房间的重点之一是悬挂在公用桌子上的灯具。在大型聚会中,它被举到天花板上,而桌子则滚到玻璃墙上。灯具的形状绝非偶然,非常复杂:它包含一个特殊的主角用语-“这个城市需要一个主角”,由项目团队叠加在椭圆形上的声波代表。
洗手间的金属框架采用组织者风格设计,可以有序地固定和隐藏所有必要的配件。与空间的总体主题一致,盥洗室的内部采用了去皮瓷砖设计。外观简单朴实。与内部协调,深色基础由铝复合板制成。在正门处,我们创建了一个开放式露台,该露台也是一个长长的座位,可吸引街道交通。
客服
消息
收藏
下载
最近


















































