查看完整案例

收藏

下载
项目名称:墨西哥CRA住宅
位置:墨西哥
设计公司:Estudio MMX
CRA住宅坐落于墨西哥州阿万达罗的一个乡村俱乐部内。与墨西哥的许多其他俱乐部一样,该乡村俱乐部内的建筑也有统一的设计标准,包括特定的建筑形式与一致的材料选择。考虑到场地山区的地理条件,俱乐部要求设计师们通过建筑语言来保留当地的乡村特征。项目的核心理念旨在通过对场地的分析与深入的设计来协调设计标准带来的限制,同时打造出一栋个性化的乡村住宅。在此情况下,本项目综合了多种建筑风格,既保证了俱乐部内建筑群的整体连续性,同时以独特的方式表达出不同的空间与住宅功能。建筑师并没有按照典型的住宅设计方式,使建筑平面与道路垂直,而是旋转了一个角度。这种设置使住宅获得了最佳的朝向与面向高尔夫球场的最佳视野。旋转的住宅平面与围墙代替了传统的围墙,形成开放的对角线景观视野,在室内外之间建立起一种独特的关系,使建筑与场地产生更加深入的联系。此外,旋转后的平面布局模糊了封闭的室内空间与半封闭的空间之间的界限,并将在视觉上,将这些空间与场地周边的花园与高尔夫球场联系起来。在本项目中,设计极其注重景观视野,无论是直接的还是间接的、远景还是近景都被纳入考虑之中。
建筑以谦虚的姿态融入场地之中,不对自然造成破坏,表达出住宅对场地与现有景观的致敬。CRA住宅采用了颇屋顶与木制结构体系,住宅上部楼层的四个侧翼围绕着中央公共区域组织起来,呈风车状排布。这种布局不仅能够充分利用自然采光,同时有利于室内的温度调节。大面积的玻璃窗将生活空间变身成观景平台,在这里,人们可以从不同角度尽情欣赏周边森林的美景。此外,建筑师利用充裕的楼层高度,加设了阁楼,使住宅的每个侧翼中都享有足够的空间以容纳所有家庭成员。CRA住宅以一种巧妙的方式对当地的设计标准作出了解读,利用传统的建筑材料完成了当代设计的表达,既维持了俱乐部内统一的建筑形象,又将住宅与自然观景融为一体,堪称当地住宅的创新范本。建筑采用了当地材料、工艺以及建造技术,同时创造出国际化的当代空间。通过建筑师的观察与思考,不同的空间、结构与建筑形式巧妙的结合在一起。资源与人力的合理利用,使CRA住宅在美学、功能以及节能方面都发挥出不俗的表现。
墨西哥CRA住宅外部实景图
墨西哥CRA住宅外部实景图
墨西哥CRA住宅外部实景图
墨西哥CRA住宅外部实景图
墨西哥CRA住宅外部实景图
墨西哥CRA住宅外部实景图
墨西哥CRA住宅外部实景图
墨西哥CRA住宅外部实景图
墨西哥CRA住宅外部实景图
墨西哥CRA住宅外部实景图
墨西哥CRA住宅内部实景图
墨西哥CRA住宅内部实景图
墨西哥CRA住宅内部实景图
墨西哥CRA住宅内部实景图
墨西哥CRA住宅内部实景图
墨西哥CRA住宅内部实景图
墨西哥CRA住宅内部实景图
墨西哥CRA住宅内部实景图
墨西哥CRA住宅内部实景图
墨西哥CRA住宅内部实景图
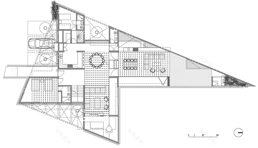
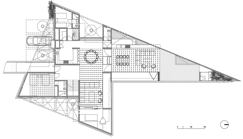
墨西哥CRA住宅平面图
墨西哥CRA住宅平面图
墨西哥CRA住宅平面图
墨西哥CRA住宅平面图
墨西哥CRA住宅平面图
墨西哥CRA住宅平面图
墨西哥CRA住宅剖面和立面图
墨西哥CRA住宅剖面和立面图
客服
消息
收藏
下载
最近































