查看完整案例

收藏

下载

翻译
Architect:Daniele Bonetti Architetto
Location:Bione, BS, Italy; | ;View Map
Project Year:2022
Category:Rurals;Visitor Center;Cultural Centres
Any project arises from the desire and will to solve needs. The functional redevelopment of a warehouse to create a hiking shelter is a significant example.
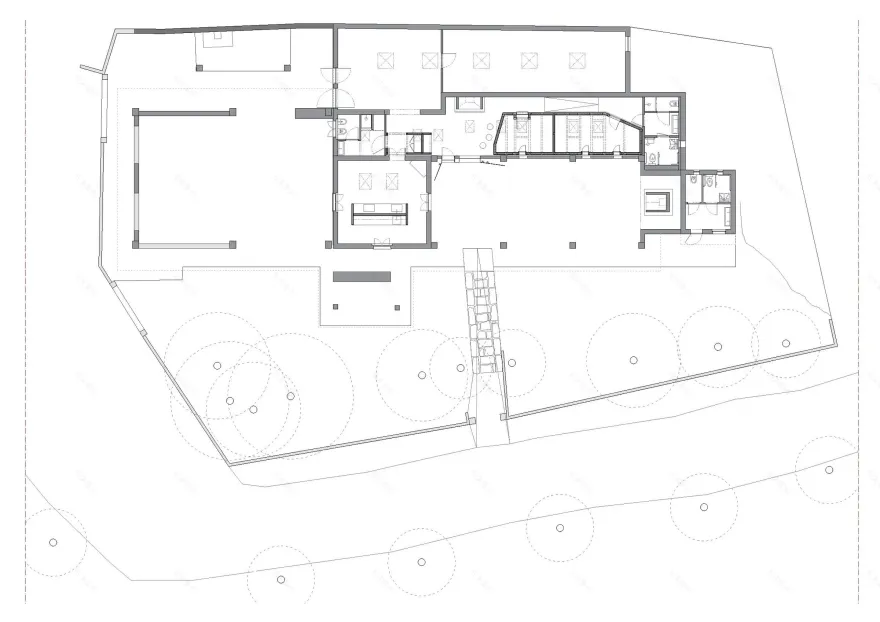
We are in Bione, a small village of 1300 inhabitants in the pre-Alps of Brescia, Italy, about 1000 meters above sea level; a predominantly mountainous landscape characterized by strong components of naturalistic, architectural, artistic, archaeological and religious value. The building under intervention is located at the edge of an extensive clearing surrounded by woods, from which extends a dense network of paths that physically and culturally connect different points of interest in the area. The intervention proposes to activate a mode of small-scale tourism, linked to the place and the traditions it preserves, identifying receptivity and hospitality as the tool for the pursuit of this objective. The new hiking refuge becomes a point of support and stopover for hikers and lovers of the mountains and nature.
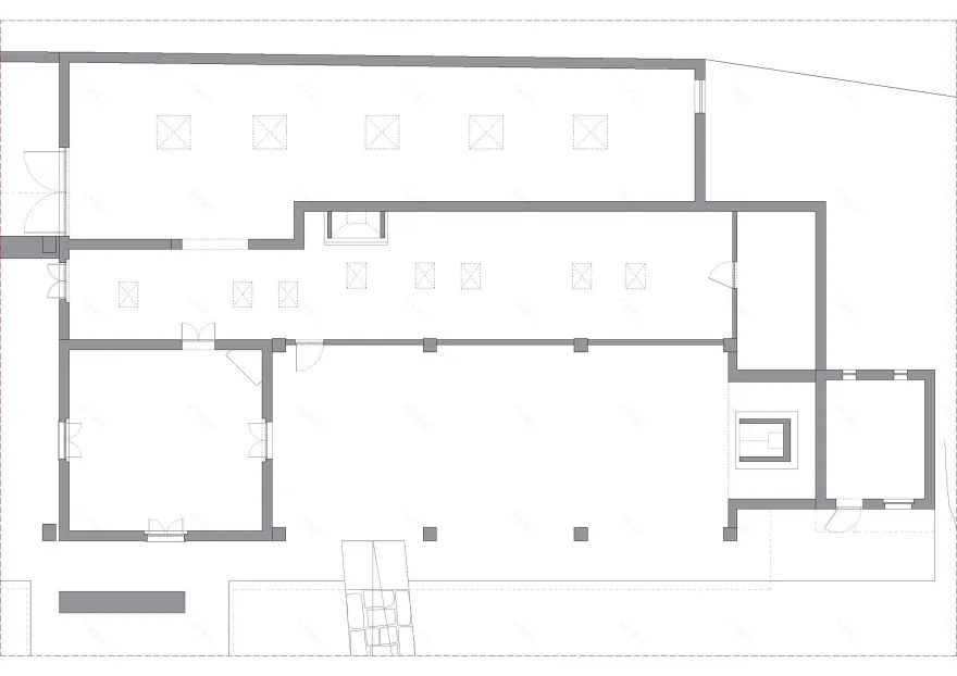
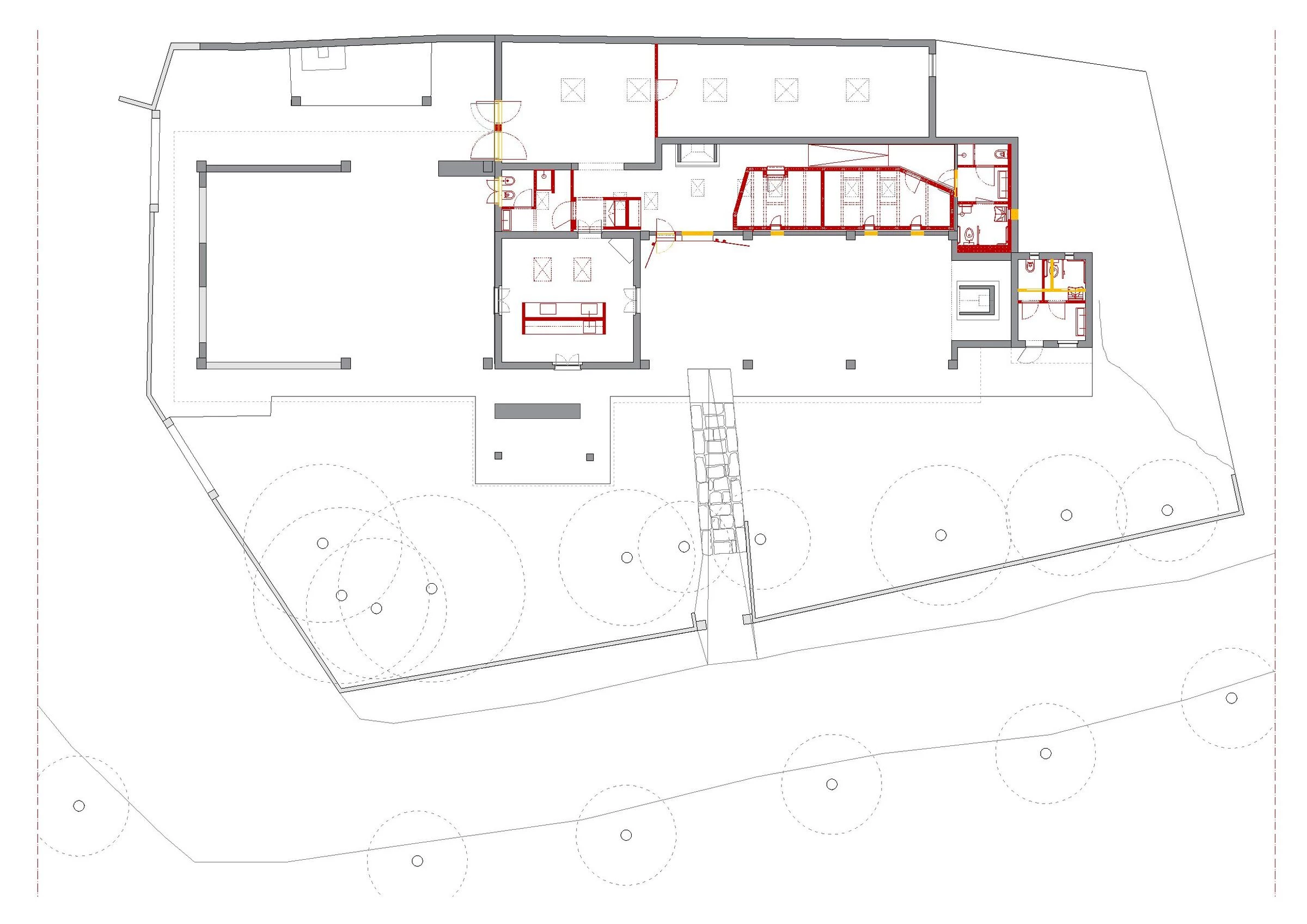
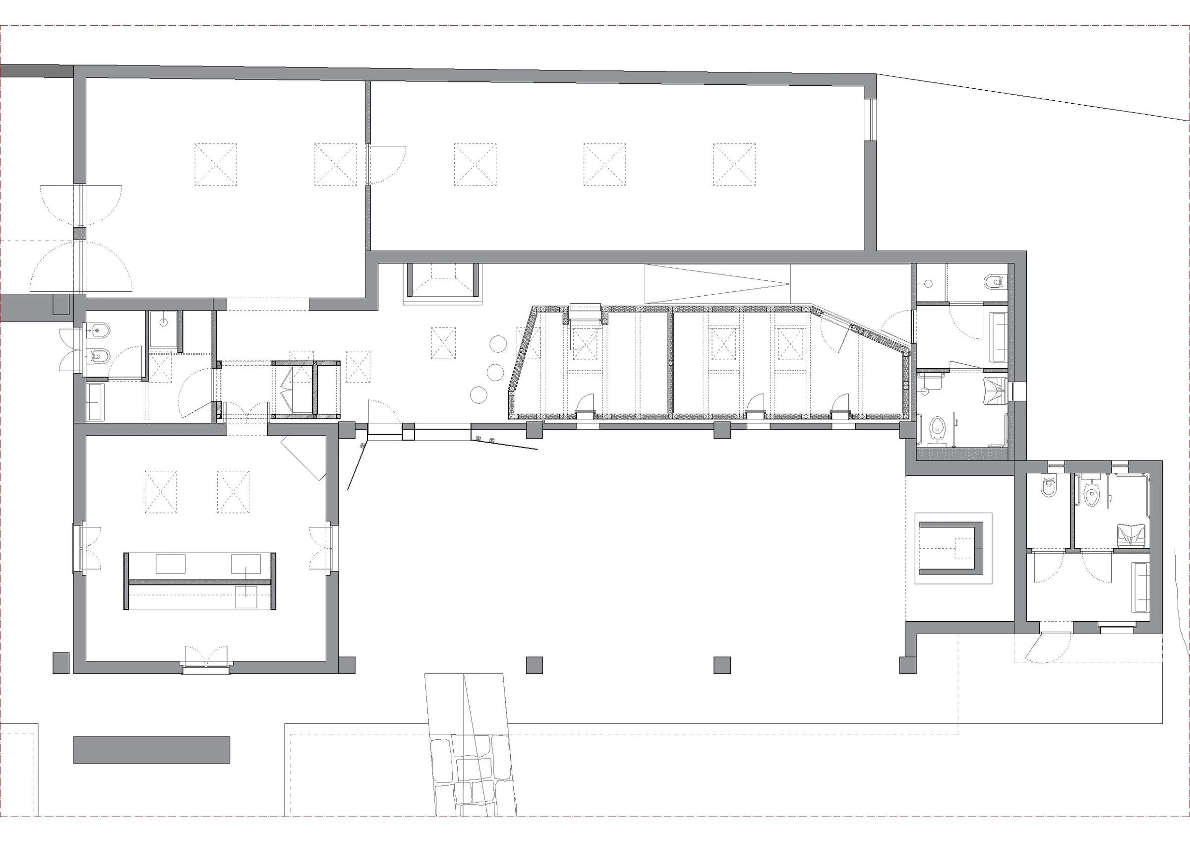
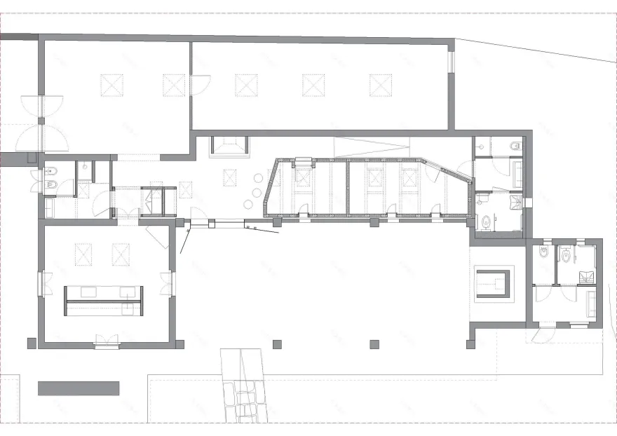
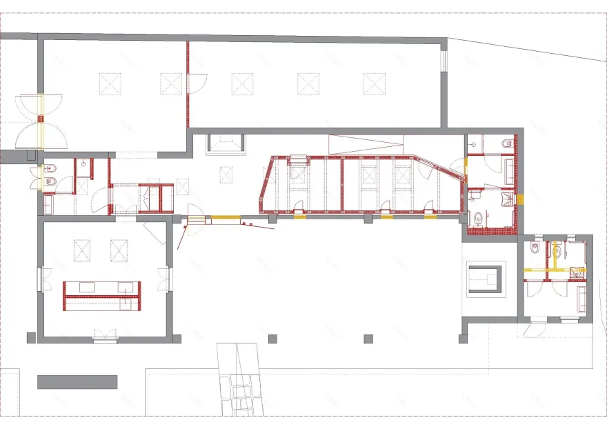
Spaces for these activities are created within an existing building. A kitchen with bar, an indoor dining room, two rooms and respective restroom places. Two outdoor porches are always accessible. The planned intervention deliberately presents and declares itself as a kind of disruptive graft, in formal, dimensional and material contrast with the existing building, which lacks relevant features of architectural merit. A new entrance is figured along the main axis of access to the site area, as well as on axis with the fireplace of the first indoor room. Fire represents the generating element of the project's forms.
It draws a new threshold, a new story and new relations between exterior and interior. This architectural device is made of solid rough iron plates; the two slightly sloping side panels welcome the visitor, a central perforated plate on the other hand acts as a diaphragm capturing and altering the visual perception of those who approaching try to observe what lies beyond. At night, lights from the hearth behind hint at the presences of the guests who inhabit the shelter. Crossing the threshold, one reaches a space with ambiguous characters, where it is still difficult to define how much belongs to the outside world and how much to the inside.
Here two dark volumes in opposing positions take place; both reveal their own skins made of charred fir wood, in memory of the ancient traditional technique of charcoal production peculiar to the place. One occupies the full height of the existing sloping pitch room, while the other is a parallelepiped of lower height. The former presents itself without openings, but sloping invites to reach the entrance doors of the rooms; the latter is a double-sided service volume that separates the rooms reserved for managers from those open to the public. The atmosphere of dimness and the smell of charred wood contrasts with the interior of the rooms where a sense of warmth and intimacy prevails.
Architect: Daniele Bonetti Architetto
Photography: Gabriele Boretti
Client: Associazione Nazionale Alpini - Gruppo di Bione
Project: Arch. Daniele Bonetti with Arch. Lorenzo Simoni
Charred fir wood panelling production (using the traditional Japanese shou sugi ban / yakisugi technique): Pietro Brunazzi, Margherita Calciolari, Renato Juarez Corso, Olivia Corso, Gianluigi Formentin, Fabio Gafforini, Severino Iritano, Marco Modesti, Paola Mongiu, Carmen Napolitano, Stefano Tremolada, Francesco Tricarico
▼项目更多图片
客服
消息
收藏
下载
最近

















































