查看完整案例

收藏

下载
项目名称:加拿大Skeena学生宿舍
位置:加拿大
设计公司:PUBLIC
新建成的六层Skeena被动式住宅以充足的自然光照、不受遮挡的景观视野和糖果色的楼梯井为主要特征,提供了220间经过优化的传统卧室以及配套的娱乐设施。项目属于围绕Kelowna UBC Okanagan大学校园公共草坪建筑群的一部分,居民可以方便地来到绿色的草地上,野餐、健身,或只是四处闲逛,放松身心。Skeena住宅是加拿大第一栋、北美第二栋被动式宿舍。它将成为UBCO生活实验室的一部分。作为校园中数栋木框架宿舍之一,它为研究被动房在加拿大的表现创造了独特的条件。建筑中设有综合监测系统,可以获取Skeena的能耗和住户舒适度数据,并将其与周边获得LEED金牌认证、满足BC建筑规范的建筑进行对比。相比传统的建造方式,为了满足被动房的设计要求,项目需要采用整体的设计流程。在传统的设计过程中,建筑师会先出一个粗略的方案,然后一步步深化。然而在被动房中,细节决定一切,即使是连接件也由于其导热能力成为了设计中的关键元素。在项目最初阶段就对细节进行设计可以满足之后建立精确的能耗模型的需求。
加拿大Skeena学生宿舍外部实景图
加拿大Skeena学生宿舍外部实景图
加拿大Skeena学生宿舍外部实景图
加拿大Skeena学生宿舍外部实景图
加拿大Skeena学生宿舍外部实景图
加拿大Skeena学生宿舍外部实景图
加拿大Skeena学生宿舍外部实景图
加拿大Skeena学生宿舍外部实景图
加拿大Skeena学生宿舍外部实景图
加拿大Skeena学生宿舍外部实景图
加拿大Skeena学生宿舍内部实景图
加拿大Skeena学生宿舍内部实景图
加拿大Skeena学生宿舍内部实景图
加拿大Skeena学生宿舍内部实景图
加拿大Skeena学生宿舍内部实景图
加拿大Skeena学生宿舍内部实景图
加拿大Skeena学生宿舍内部实景图
加拿大Skeena学生宿舍内部实景图
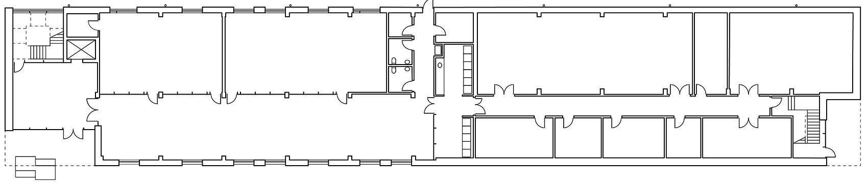
加拿大Skeena学生宿舍平面图
加拿大Skeena学生宿舍平面图
加拿大Skeena学生宿舍剖面
加拿大Skeena学生宿舍立面图
客服
消息
收藏
下载
最近

























