查看完整案例

收藏

下载

翻译
Architect:one-aftr
Location:21, Achasan-ro 13-gil, Seongdong-gu, Seoul, Korea; | ;View Map
Project Year:2024
Category:Offices;Factories
In the Sungsoo district, known for its youthful and trendy atmosphere, the renovation of industrial buildings has given rise to a distinct architectural style characterized by rough concrete finishes and the replacement of traditional facades with expansive glass storefronts. While these transformations have invigorated Sungsoo economically and culturally, they mask a fundamental issue concerning old industrial buildings in Seoul: the lack of insulation. In our efforts to revamp an outdated and uninsulated factory for a label fabrication company, insulation took center stage as a critical feature of the transformation.
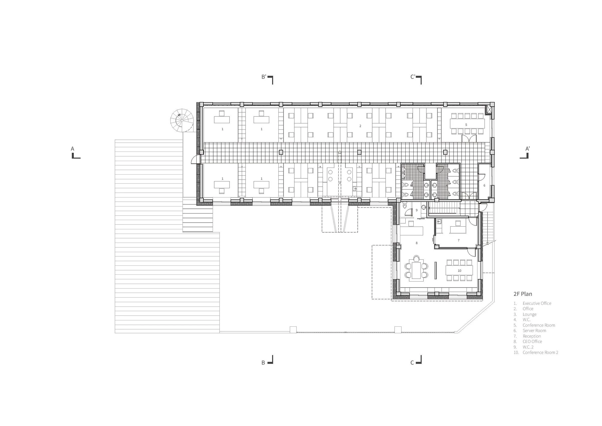
Much like the majority of industrial buildings in Sungsoo, our selected factory featured a two-story, L-shaped concrete structure with brick cladding. The primary factory building served a range of purposes, including label production, storage, and office space, while an annex located at the southern end, constructed with concrete blocks and metal beams, was designated for storage, bathrooms, and dining facilities.
To optimize the factory's logistical flow, we reconfigured the layout by consolidating all production and storage areas on the ground floor, streamlining the process from product arrival and processing to storage and distribution. Meanwhile, the office space, originally spread across two levels of the factory, has now been centralized on the second floor.
Our approach to insulation was tailored to the specific needs and thermal heat gain of each floor. Minimum insulation was applied on the ground level since the machineries produce enough radiant heat to warm up the space. In contrast, the second floor was equipped with thicker insulation to compensate for the absence of an internal heat source. This strategic design approach resulted in a distinctive vertical crenulation effect, creating a nuanced interplay of varying insulation thicknesses.
Preservation is often touted as a sustainable practice in architecture. However, as we face the challenge of reducing our carbon footprint, we must reimagine preservation not only as an appreciation of its old age but also as a way to equip old and cold buildings with the tools for their prolonged survival.
Design: one-aftr
Architect in Charge: Joon Ma, Ryu Ahn
Design team: Yoonha Lee
Construction: RAUM A.I.D
Structural engineer: JIN Construction Engineering Co.
Mechanical engineer: HITEC Engineering Co.
Telecommunication equipment: HITEC Engineering Co.
Interior: one-aftr
Photographer: Jang Mi
1. Main Structure: Reinforced Concrete, Lightweight Steel Frame
2. Exterior finish: Stucco Rough and Fine, Galvanized Steel Sheet
3. Interior finish: Plaster, Tile, Stainless Steel
▼项目更多图片
客服
消息
收藏
下载
最近












































