查看完整案例

收藏

下载

翻译
Architect:Jose Maria Sanchez Garcia
Location:C. Carpinteros, 23, 06400 Don Benito, Badajoz, Spain; | ;View Map
Project Year:2016
Category:Factories
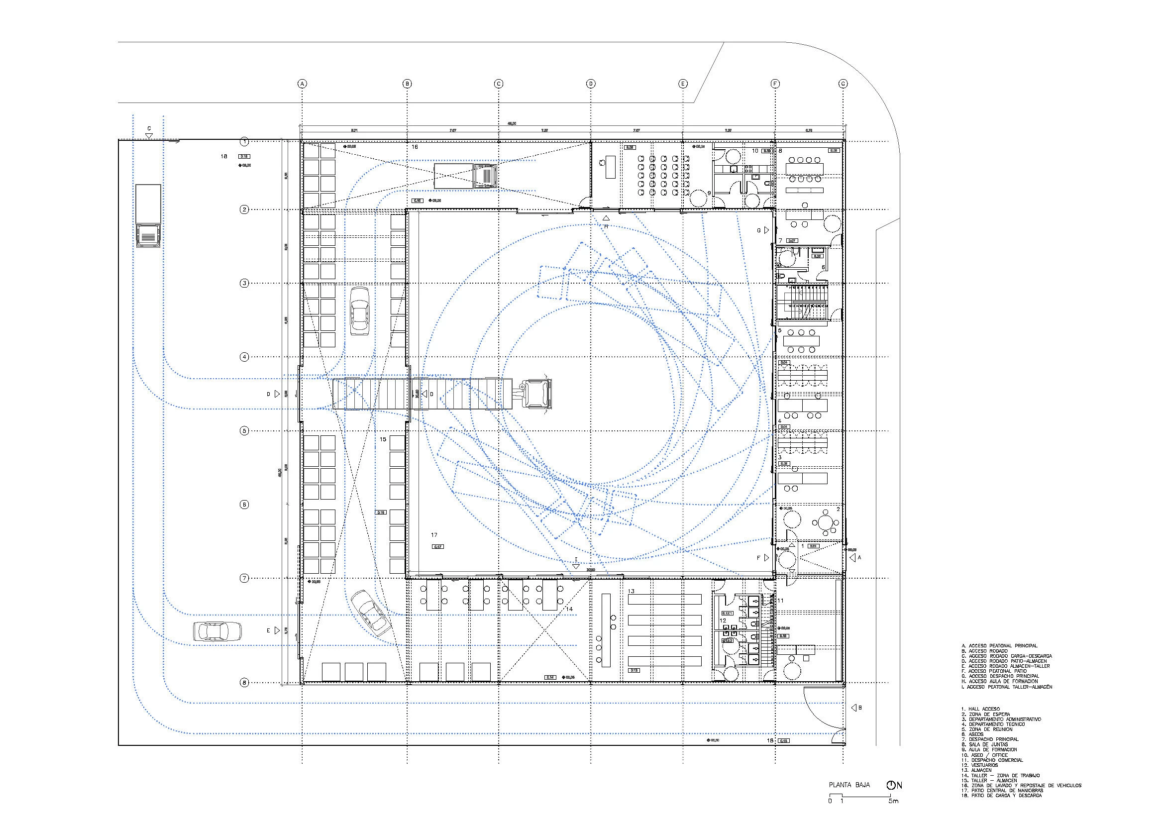
This project works with the landscape surrounding Don Benito by looking beyond its innocuous context. Instead of a conventional industrial warehouse and an open esplanade, the building occupies the whole site with a private inner manoeuvre area whose dimensions are dictated by the turning radius of big lorries.
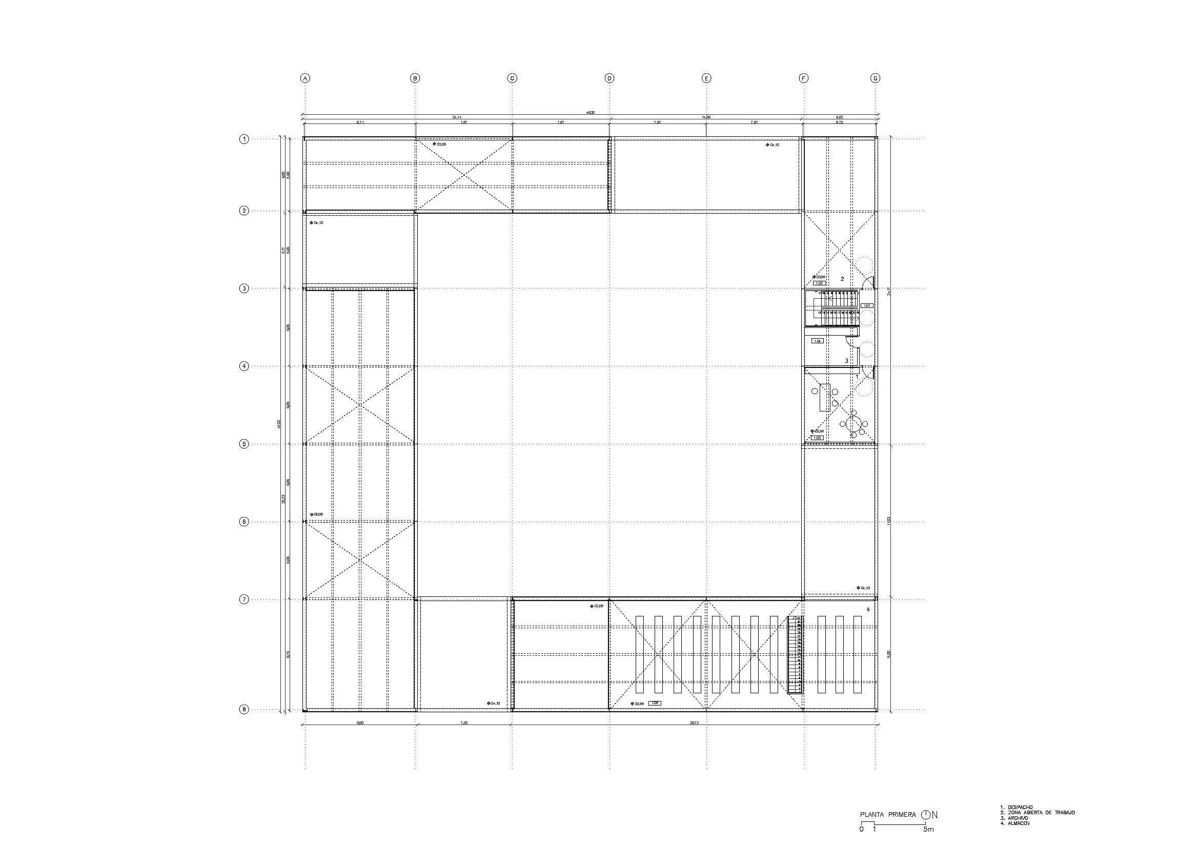
Inside, the ringshaped circulation generates a sequence of concatenated spaces that allow the whole building to be traversed. The courtyard is shifted off-centre from the big square to generate two bay widths: one measuring 6 metres for the administration and offices, and another measuring 9 metres for the industrial zones.
In section, the extrusion of four 10 m tall volumes generates industrial ‘battlements’ that contain a sequence of full height and mezzanine spaces.
A striking variation of brightness and contrasts is created by cladding the metal frame structure with microcorrugated galvanized steel sheeting, a clear reference to the local context. This also allows the interior and the exterior of the building to be defined with a single material.
Despite the building’s hermetic external aspect, abstract and rectangular offset cuts with perforations in the sheeting material provide controlled sun-lighting and at the same time blurr the building’s scale.
▼项目更多图片
客服
消息
收藏
下载
最近

























