查看完整案例

收藏

下载
项目名称:澳大利亚的折面木屋
位置:澳大利亚
设计公司:Clinton Murray Architects
摄影师:Peter Bennetts
委托方对我们为他们创造一种全新的生活方式持开放态度。我们设计房子的目的是让公众可以感知到建筑内部。地面层为客户提供私密性,隐蔽性和休养生息的场所。一层的起居空间为他们提供了通往生活舞台的窗口。我们可以见到路过的人们都纷纷停下来和主人惬意地聊天,这与街上其他房屋的封闭性形成了令人愉悦的对比。我们通过学习研究片区规划控制重点,以得出合宜的设计解决策略。于我们而言,设计“关键时刻”是采用规划控制来推定“折面屋顶”,并将场地三角形的几何印象调整为折叠“Y”屋顶,以便理解场地特性。我们与Canberra Ken Murtagh当地一位非常有创造力的守旧派工程师密切合作,创造了如此神秘的屋面!
澳大利亚的折面木屋外部实景图
澳大利亚的折面木屋外部实景图
澳大利亚的折面木屋内部实景图
澳大利亚的折面木屋内部实景图
澳大利亚的折面木屋内部实景图
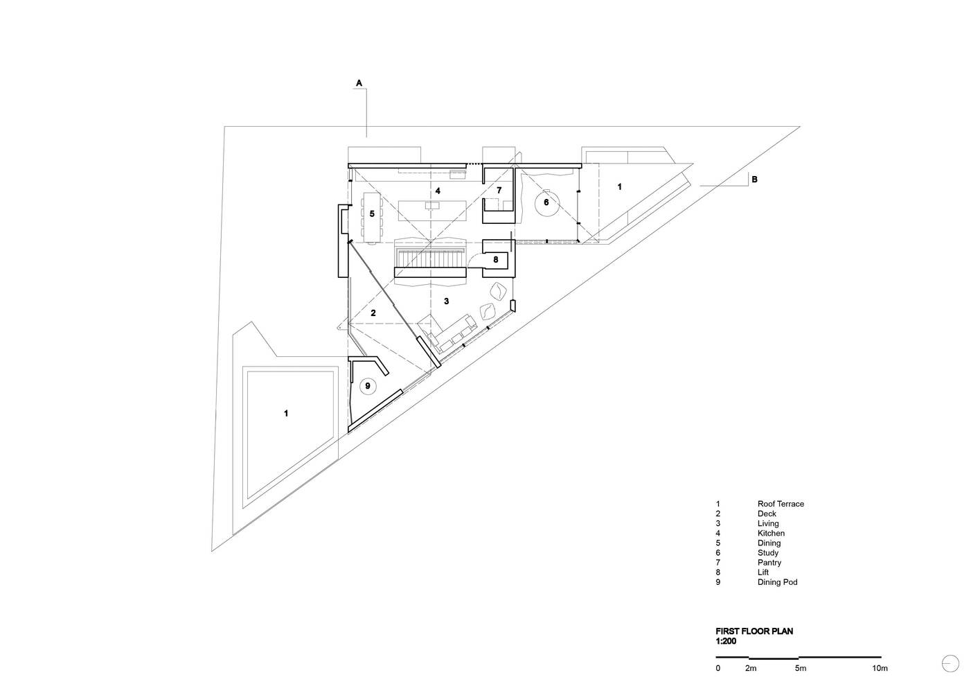
澳大利亚的折面木屋平面图
澳大利亚的折面木屋平面图
澳大利亚的折面木屋剖面图
澳大利亚的折面木屋剖面图
澳大利亚的折面木屋草图
澳大利亚的折面木屋立面图
客服
消息
收藏
下载
最近














