查看完整案例

收藏

下载
项目名称:瑞士亭子之家
位置:瑞士
设计公司:GusWüstemann
摄影师:布鲁诺·海布林
这栋房屋位于瑞士苏黎世附近的乡村Buchberg。这个村庄房屋的类型主要是农村农民建筑的山墙屋顶。这些房屋传统上具有大型底座和木质屋顶结构,是由石头和木头制成的房屋。屋顶通常会向立面的各个侧面悬垂,从而在房屋前面创建一个有盖的外部区域。像凉亭一样,屋顶掩盖了开放空间的底层。这房子是为村里的一个家庭计划的。 我们采用了这种屋顶类型,并在地面层上创建了一个宽敞的开放空间,几乎像一个谷仓,只是遮蔽了原本应该居住的区域。地面空间的一半是内部空间,另一半是屋顶所覆盖的外部空间。在夏季,居住区的面积增加了一倍,滑动窗户打开并与屋顶下方的外部区域相连。我们在原始混凝土和木材的混合物中适应了当地建筑传统的实用主义。从形态上讲,它是混凝土和木材的混合物。混凝土骨架是承重结构,带有预制的木质屋顶。内部和外部的所有材料都是原始的,只有木头和混凝土。
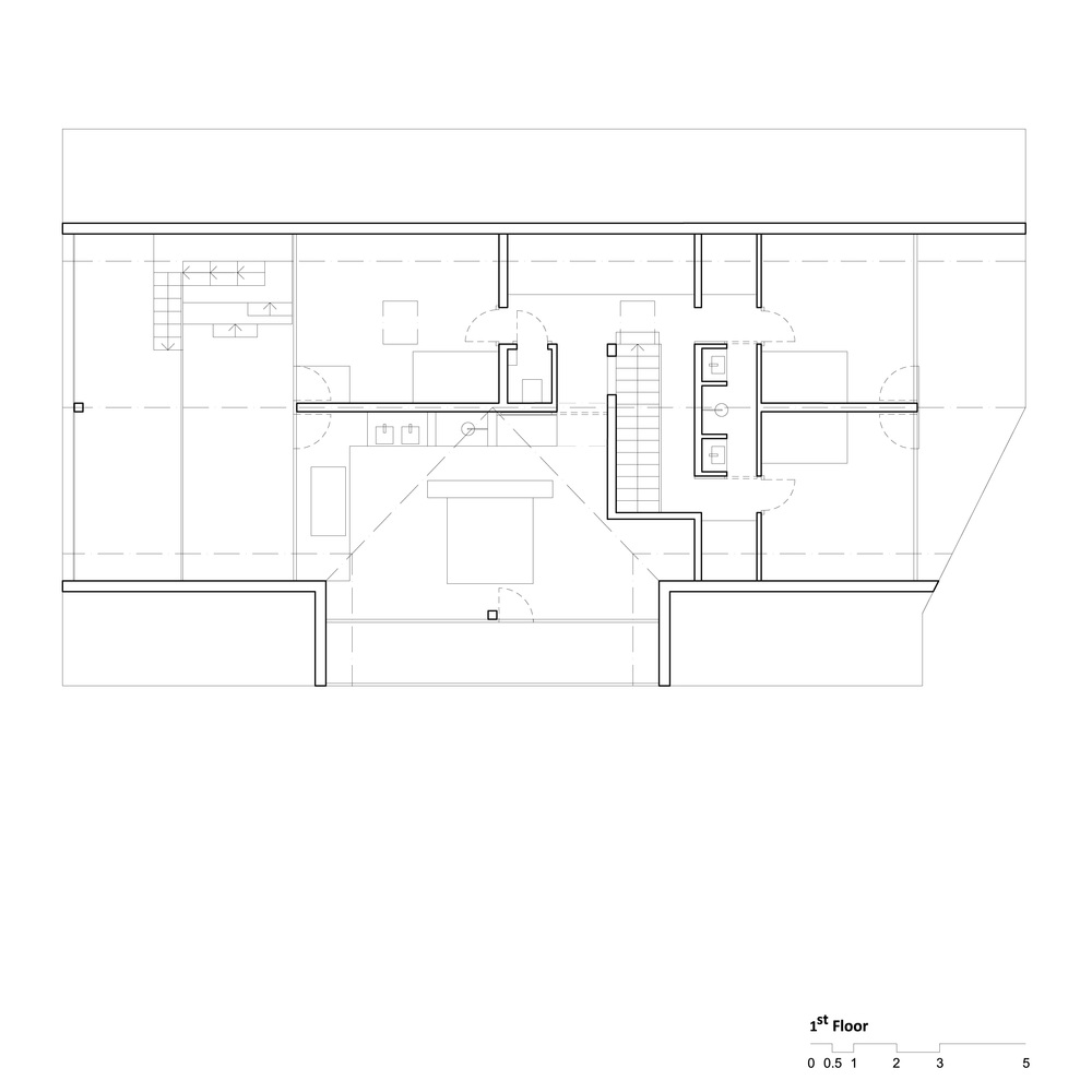
一楼的卧室完全用木头制成。底座是混凝土的,并包含牙科操作。底楼是一个大谷仓屋顶下的起居空间,该起居室可向四面八方悬垂,因此将周围环境与起居区相连。通过将建筑物的所有技术安装降至最低水平(以瑞士标准),对干预进行了经济上的优化,我们专注于一些干预措施,这些干预措施可为居住空间的质量带来重大价值。这些是滑动窗户和内置式长椅,是混凝土地形的交流元素。 使用大部分回收的混凝土和当地木材可以减少碳足迹。建筑的原始性是对传统实用建筑方式的借鉴;它是如何构建的,没有层次的材料或美学。简单是要走的路。此外,除了要提到每个参与人员的出色工作和团队合作之外,我们还要特别感谢领班塞缪尔·扬瑟(Samuel Janser)。不幸的是,他从未遇见过他的工作,因为他在一场不幸的交通事故中丧生。
瑞士亭子之家外部实景图
瑞士亭子之家外部实景图
瑞士亭子之家外部实景图
瑞士亭子之家外部实景图
瑞士亭子之家外部实景图
瑞士亭子之家外部实景图
瑞士亭子之家局部实景图
瑞士亭子之家局部实景图
瑞士亭子之家局部实景图
瑞士亭子之家内部实景图
瑞士亭子之家内部实景图
瑞士亭子之家内部实景图
瑞士亭子之家内部实景图
瑞士亭子之家内部实景图
瑞士亭子之家内部实景图
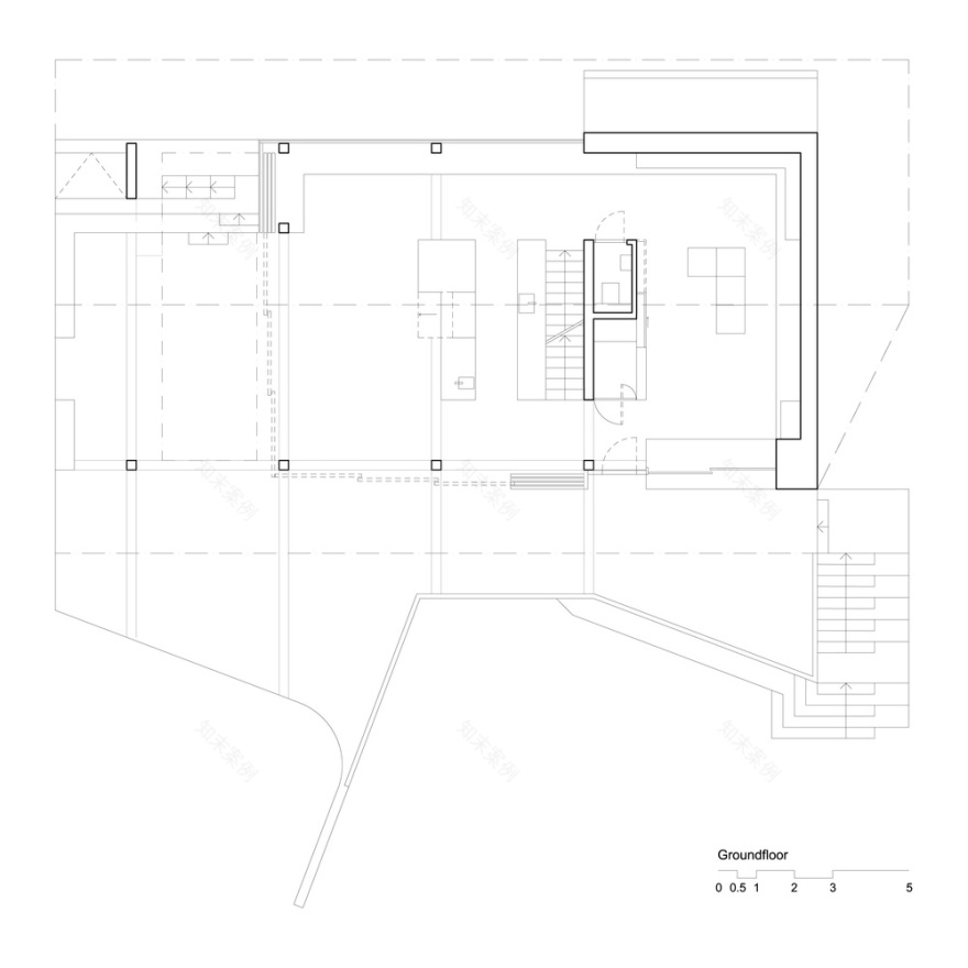
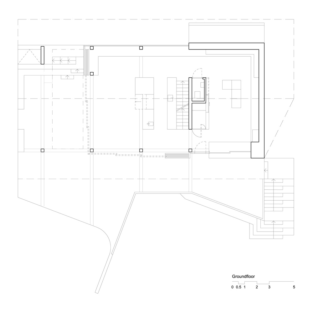
瑞士亭子之家平面图
瑞士亭子之家平面图
瑞士亭子之家平面图
瑞士亭子之家剖面图
瑞士亭子之家剖面图
客服
消息
收藏
下载
最近























