查看完整案例

收藏

下载
项目名称:越南河马农场生物气候宿舍
位置:越南
设计公司:T3 ARCHITECTS
摄影师:ALISA生产
T3 ARCHITECTS团队应河马农场的邀请设计宿舍,欢迎“绿色班级”,学生和家庭,他们希望了解更多有关自然,永续文化,骑马,可持续建筑以及一切有意义的活动的知识,这些活动可以与基本知识重新联系:教育,团队合作,与朋友分享有意义的时间并与自然环境重新建立联系。该建筑必须反映所有这些想法,以符合河马农场的概念。T3首先决定提出一种生物气候设计,在干燥季节(以获取自然气流的最大益处)和雨季(以保护立面免受水渗透)的影响下,朝着太阳方向进行并仔细研究风向。然后,T3决定在坏的情况下重新利用已拆除的现有马箱中的残骸,并将建筑物抬高至洪水线以上(在自然土壤上保留昆虫和野生生物)。重复利用现有材料是我们节俭方法的一部分,以更少的钱做更多的事……该建筑具有在现场附近量身定制的简单钢结构,墙壁是用当地砖砌成的,上面覆盖着天然石灰,并抹上了当地的红砂。屋顶的隔热层使用越南大米稻壳和硅藻土混合而成,有助于防止昆虫侵袭。
稻壳富含硅酸盐,在热带气候下也能很好地抵抗高湿度,而且价格低廉且可生物降解。所有门窗均采用越南产的实木(甲板为热木)和竹编编织而成,既经济又实惠,而且防水,可保持建筑物的自然通风。为了节约用水,我们建议使用干式厕所系统,该系统由OSB面板和在底部立面上带有舱口的Inox桶制成,从而使员工易于操作。除了生产可用于河马农场人工林施肥的投入外,系统中不使用水。按钮水龙头还有助于为所有水槽节省水,这些水槽将被孩子们使用,并让他们意识到节水的重要性!扶手和凉棚用千层木(也来自越南南部且耐水)制成。屋顶上的太阳能加热器朝南,以尽可能提高效率,并在必要时产生热水。建筑物周围的所有植物都是当地物种,需要较少的维护,并带来阴影和新鲜感。这座建筑是项目的完美“宣言”,符合热带乡村(乡村)的“快乐与节俭”。
越南河马农场生物气候宿舍外部实景图
越南河马农场生物气候宿舍外部实景图
越南河马农场生物气候宿舍外部实景图
越南河马农场生物气候宿舍外部实景图
越南河马农场生物气候宿舍外部实景图
越南河马农场生物气候宿舍外部实景图
越南河马农场生物气候宿舍外部实景图
越南河马农场生物气候宿舍内部实景图
越南河马农场生物气候宿舍内部实景图
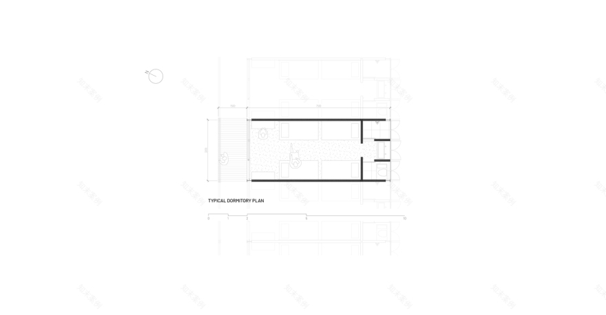
越南河马农场生物气候宿舍平面图
越南河马农场生物气候宿舍平面图
越南河马农场生物气候宿舍剖面图
越南河马农场生物气候宿舍剖面图
越南河马农场生物气候宿舍剖面图
越南河马农场生物气候宿舍剖面图
客服
消息
收藏
下载
最近


















