查看完整案例

收藏

下载

翻译
Architect:Fokkema & Partners Architecten
Location:Wageningen, The Netherlands; | ;View Map
Project Year:2022
Category:Offices;Research Facilities
Located on the Wageningen University & Research campus, Fokkema & Partners designed the Food Science Centre for Upfield, a leading producer of entirely plant-based butter. Guided by their motto “We are Generation Plant”, the building stands as a statement to this sustainable mission. Designed to foster collaboration and knowledge sharing, with an inviting and open interior. Its facade will flourish with lush vegetation, blending with nature, as time unfolds. The Food Science Centre holds the BREEAM Outstanding certification.
Natural expression
‘How do you express a sustainable way of building, without falling into dogmatic use of form and materials? That question was an important starting point for the architectural design', says Diederik Fokkema. 'Research reveals that our eyes are naturally inclined to perceive overall shapes first, before focusing on details. For instance, if we zoom in on a photo of buildings in Hong Kong, with their endless repetition of balconies, our eyes struggle to form a cohesive picture. That causes stress. However, when we look at an image of foliage, we instantly recognise the tree; the leaves and tree form a natural whole, offering a sense of tranquillity. This natural harmony became the essence we aimed to capture in this project.'
Growing greener
The wooden grid, designed to wrap around the building, creates a cohesive and captivating appearance, enhanced by the intricate arrangement of its diverse "branches". Deliberately placed at irregular intervals, the grid creates double-height windows, that offer vistas and abundant natural light. Adding depth and character, movable slat frames have been placed within the grid, providing texture and shade. Hanging plants grow and cascade down from the second-floor balcony. Closed sections of the façade are lined with metal mesh grids, acting as trellises for climbing plants growing upwards. As the seasons shift, the building will undergo a transformation, changing colour and gradually embracing the lush greenery; an enticing prospect for the future!
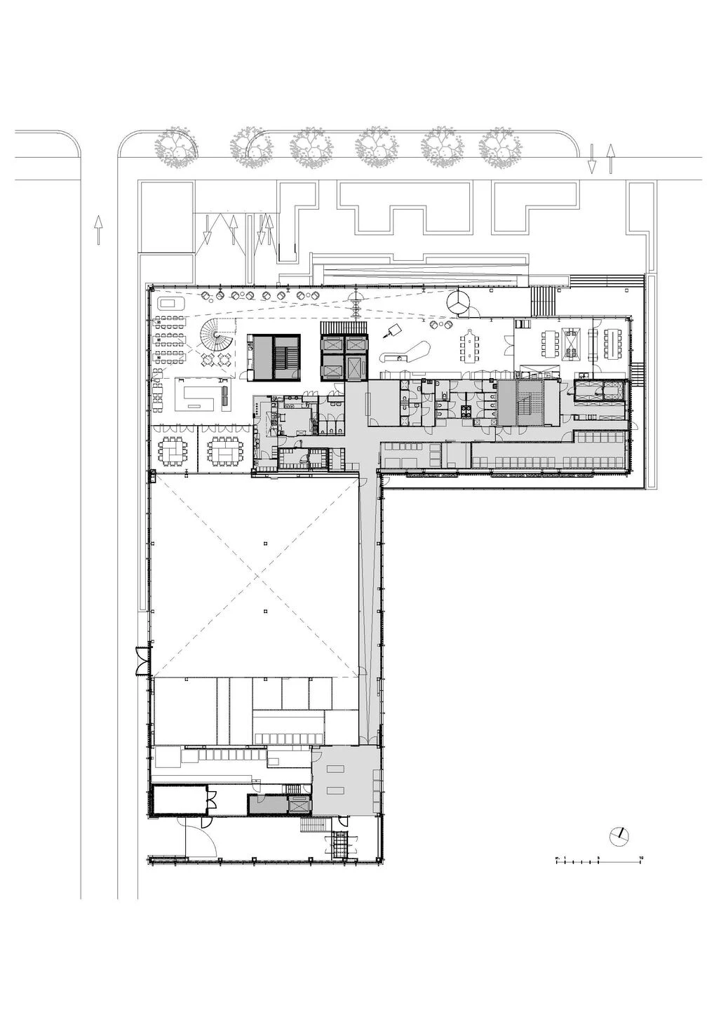
A clear structure
The building, composed of a steel structure and precast concrete floors, has a rational layout. The transparent main volume houses the office functions and laboratories, while perpendicular to that the pilot plant, expedition and logistics are positioned. Elevators and stairs converge at the junction, with a semi-sunken parking garage below. The recessed top floor conceals the installations. An aluminium façade wraps the building, covered with a wooden frame, along which plants grow. Visitors access the building via a lush courtyard, leading to a spacious stair and a ramp. The double-height entrance hall, with a wooden reception desk, offers direct views of the tasting kitchens, company restaurant, and offices above, overlooking the green campus.
Interaction and movement
Building and interior architect: Fokkema & Partners Architecten
Building owner: W.P. Carey, Real estate agent: CBRE
Project partners: Arcadis (building physics, construction engineer and MEP, acoustic, fire-safety, BREEAM consultant), Atelier Loos van Vliet (landscape architect), Colliers (project management), Van Wijnen Arnhem (general contractor), Unica (contractor installations), D&S Process Solutions (pilot plant consultant and contractor), Nelissen Ingenieursbureau (BREEAM consultant), Gielissen (joinery), Furnify (contract furniture), Verwol (partition walls), and more.
Photography and videography: Stijn Poelstra
Drawings: Fokkema & Partners Architecten
▼项目更多图片
客服
消息
收藏
下载
最近


























