查看完整案例

收藏

下载

翻译
CABO BLANCO
Diseño integral para local Cabo Blanco - fast food
Proyecto: Arq. Gimena Salvatelli
Santa Fe, 2020-2022
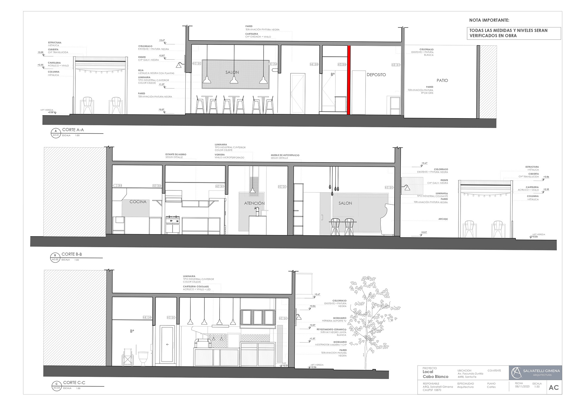
Cabo Blanco es un restaurante fast food situado en Santa Fe capital. En esta oportunidad el diseño integral del proyecto respeta la necesidad de generar ambientes cómodos con circulaciones claras que permitan la autoatención de los clientes tal como lo requiere el concepto fast food. Impregnado de un estilo industrial, su interiorismo se caracteriza por el uso de materiales como el hierro, madera y chapa donde el diseño arquitectónico se entremezcla con el diseño gráfico generando un escenario propicio para el disfrute.
PROYECTO
DISEÑO DE MOBILIARIO
RENDERS DE PROYECTO
客服
消息
收藏
下载
最近



















