查看完整案例

收藏

下载

翻译
Architect:STERLING PRESSER
Location:Karlsruhe, Germany; | ;View Map
Project Year:2020
Category:Bridges;Hospitals
The Karlsruhe Municipal Hospital is a large hospital facility and the largest hospital in the "Mittlerer Oberrhein" region and a teaching hospital of the University of Freiburg. Every year, around 185,000 outpatients and over 63,000 inpatients are treated in the hospital by around 4,300 employees. However, due to the increased number of staff and treatments as well as an infrastructure that is no longer up to date, extensive structural changes are also planned for the coming years.
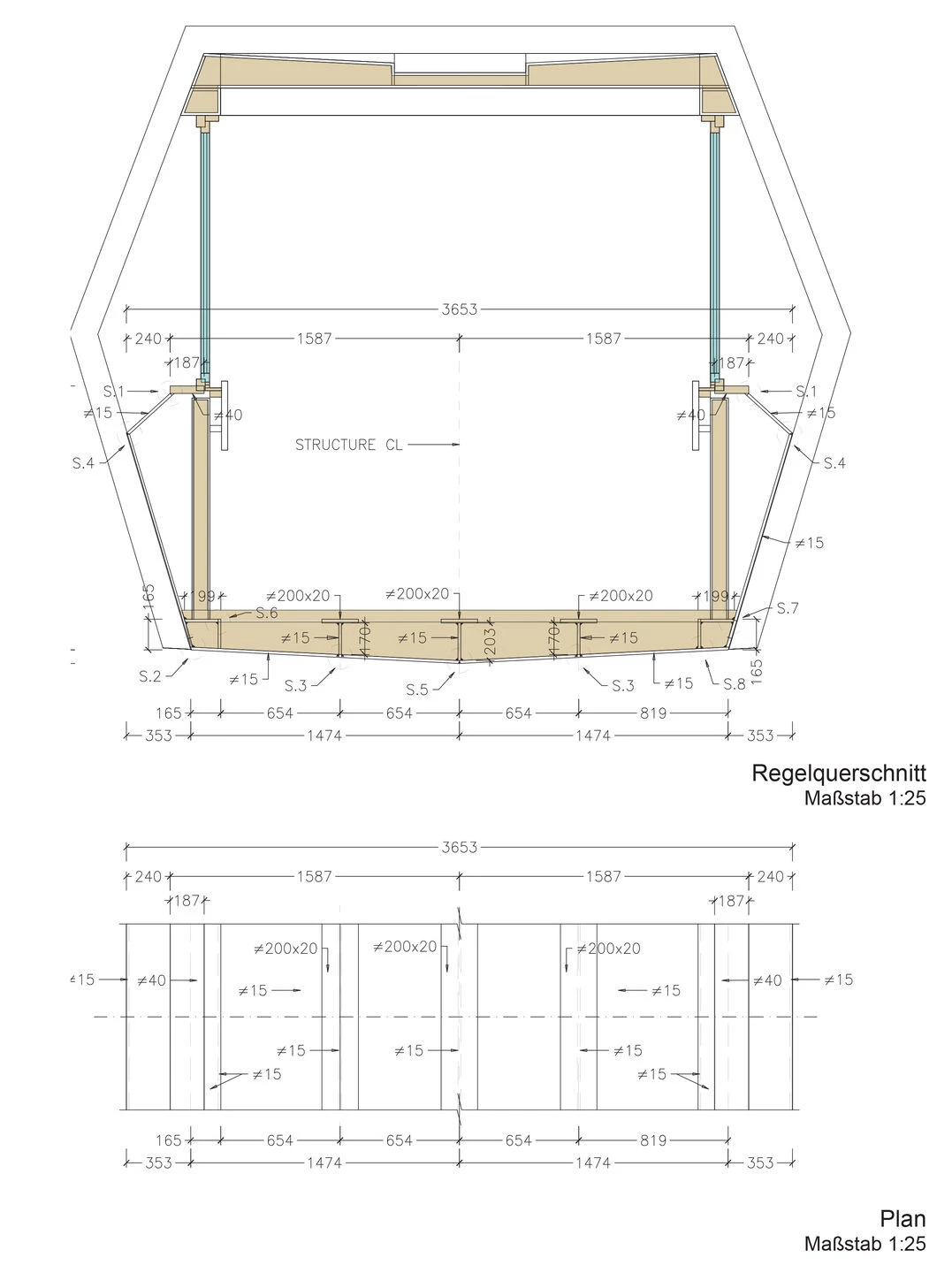
It is planned to erect a new helicopter landing platform as a free-standing structure on the open space in front of the building. The element of the current competition relates to the development of the bridge connection between the helicopter platform and the Helios Clinic. It is planned to further develop the bridge to connect the platform with Haus R Radiologie.
▼项目更多图片
客服
消息
收藏
下载
最近













