查看完整案例

收藏

下载
项目名称:澳大利亚伯恩路住宅
位置:澳大利亚
设计公司:studiofour
设计团队:莎拉·亨利,安娜贝尔·贝里曼
摄影师:香农·麦格拉思(Shannon McGrath)
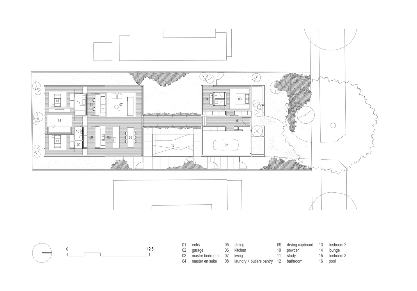
这座房子的设计源自室外空间的框架,建筑是家庭与花园互动的背景。该项目将建筑语言还原为白色渲染平面,成为探索将家庭生活的基本习惯包含在受限制的建筑形式中的探索。像许多郊区景点一样,这一地区的规模和方向尤其是朝北的前花园带来了挑战。该房屋被视为场地内被内部花园刺穿的单个对象。通过这种方法,新住宅可以将相邻的属性全部关闭,并将其内部化,以创建自己的视图和外观。集中破坏表格使北极光既可以进入场地,也可以进入建筑形式,而不会影响街道的视觉或听觉隐私。我们的简介是要在景观和室外空间以及任何内部居住空间上都具有同等重要的意义。我们早期的工作坊确定,景观不仅要成为建筑的周围,而且要成为建筑的中心。捕捉北极光并实现高度隐私也是最重要的。通过将花园内部化,不仅在建筑形式内,而且在场地内,花园都与周围郊区后院的典型节奏截然不同,并相互对齐,并创造了高度私密,私密且安全的朝北生境。
到达后,该条目是通过对其他原本空白的外墙进行一次全高穿刺来定义的。前立面充当画布,捕获一棵大橡树街道树的阴影和反射。进入时,人们会经历内部和外部之间的夸张门槛,在到达时产生一种感官感。与朴素而简单的立面相反,进入时,空间通过私人睡眠区,内部花园以及最终的主要起居,烹饪和就餐区域展开。花园必须经过并具有经验才能到达房屋的主要区域。位于房屋中央的人们必须不断穿过花园并体验花园;不仅客人来到家庭的公共区域,而且居住者从公共生活区域转移到私人的睡眠和洗浴场所。室内的视线有意隐瞒了睡眠,洗浴,学习和阅读的私人区域,而公共区域则完全开放并与内部花园相连。内部花园与房屋周围的空间之间建立了进一步的联系,从而提供了景观和周围建筑形式的层次感。
澳大利亚伯恩路住宅外部实景图
澳大利亚伯恩路住宅外部实景图
澳大利亚伯恩路住宅内部实景图
澳大利亚伯恩路住宅内部实景图
澳大利亚伯恩路住宅内部实景图
澳大利亚伯恩路住宅内部实景图
澳大利亚伯恩路住宅平面图
客服
消息
收藏
下载
最近










