查看完整案例

收藏

下载
项目名称:印度尼西亚甘榜之屋
位置:印度尼西亚
设计公司:Ismail Solehudin Architecture
摄影师:马里奥·维博沃(Mario Wibowo)
知道客户曾经住在高密度的城市甘榜村,我们为客户提供在新房子中的相同体验。这所房子的灵感来自于城市甘榜的秩序和对绿色空间的需求,这也是他们的兴趣所在。客户在城市甘榜生活的经验以及对绿色空间的兴趣已成为我们设计的主要思路。我们将这些问题转化为大规模的规划设计,将内部和外部分割开来。每个物体都被空隙和绿色空间隔开,同时可以通过光井增加微气候并通过该房屋中的空气通风。该策略还可以增加每个房间的居民之间的社交互动,而不会打扰任何隐私。连接每间卧室的走廊不仅用作通道,还可以支持居民进行社交互动,就像他们在城市甘榜的生活一样。这座房子给人的第一印象是入口处,代表着城市甘榜的体验,仿佛杂乱的各种质地的材料,天窗,绿色区域和吹来的风。从这个区域,我们可以看到整个开放区域的主房间包围着绿色区域。主房间并排放置,楼梯区域和连接走廊之间均设有绿色空间。
基本上,这所房子的公共区域是阴凉的户外空间。绿化区域还通过在卧室的正面和背面使用一些花盆框立面应用于外部设计。客户希望有一个大后院来进行一些自然环境下的家庭活动,我们通过主房间框架的绿色区域来实现它。大后院的需求使重物集中在中心位置。仅将一个零散的物体分解为每个房间的照明和空气流通解决方案,也可以代表房屋中的城市甘榜。通常用于屋顶的材料 -PVC现在用于外墙,因为它是一种可以面对日晒雨淋的材料。我们还将外露砖用于外墙,它的布置方式多种多样,在空气流通方面存在一些缝隙。如我们所知,在热带气候下,裸露的砖块可能更漂亮,更自然。这就是这所房子对热带气候的反应,以减少定期维护。
印度尼西亚甘榜之屋外部实景图
印度尼西亚甘榜之屋外部实景图
印度尼西亚甘榜之屋外部实景图
印度尼西亚甘榜之屋外部实景图
印度尼西亚甘榜之屋外部实景图
印度尼西亚甘榜之屋外部实景图
印度尼西亚甘榜之屋外部实景图
印度尼西亚甘榜之屋局部实景图
印度尼西亚甘榜之屋内部实景图
印度尼西亚甘榜之屋内部实景图
印度尼西亚甘榜之屋内部实景图
印度尼西亚甘榜之屋内部实景图
印度尼西亚甘榜之屋内部实景图
印度尼西亚甘榜之屋内部实景图
印度尼西亚甘榜之屋内部实景图
印度尼西亚甘榜之屋内部实景图
印度尼西亚甘榜之屋局部实景图
印度尼西亚甘榜之屋局部实景图
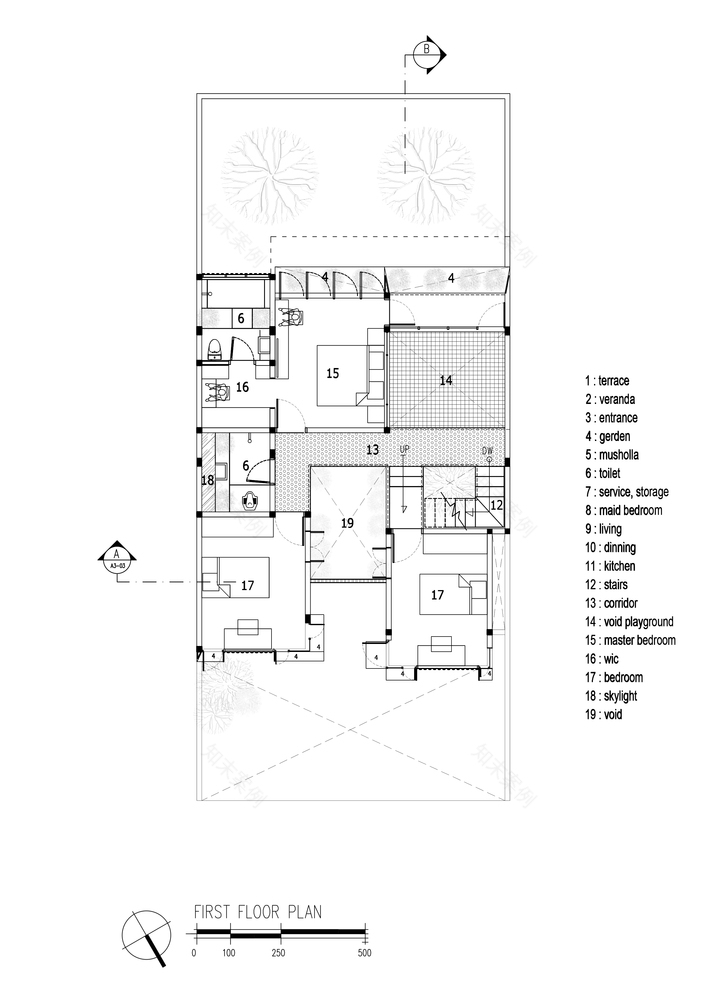
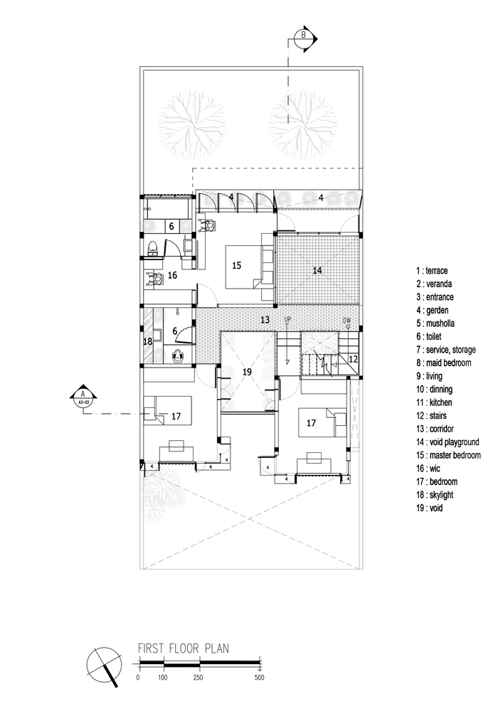
印度尼西亚甘榜之屋平面图
印度尼西亚甘榜之屋平面图
印度尼西亚甘榜之屋剖面图
印度尼西亚甘榜之屋立面图
客服
消息
收藏
下载
最近

























