查看完整案例

收藏

下载
项目名称:荷兰Westerschans 1A公寓楼
位置:荷兰
设计公司:Jeanne Dekkers Architectuur,Zoetmulder
首席建筑师:Anton Zoetmulder,Jeanne Dekkers
摄影师:Trespa巴西,罗德鲁扎
这座多功能公寓楼设有大型超市,零售空间和83个社会租赁房屋,其中13座是码头房屋。Westerschans 1A是Goes中心边缘新住宅,办公和休闲区的第一阶段。Westerschans地区直接与历史悠久的市中心,环城公路和Havenkanaal的水接壤。Westerschans 1A是Jeanne Dekkers Architectuur和ZOETMULDER为整个Westerschans地区设计的城市发展计划的一部分。该开发项目由三个构建块组成,这些构建块包含各种计划,包括社会住房,自住公寓,商业空间,养老院,超级市场,餐饮场所和酒店。主要形式的铰接形式Westerschans 1A位于Goes的Westerschans的南侧,在所有侧面都具有一致的建筑特色。塔楼的高度使Westerschans可以从远处识别出来。同时,集中程序确保建筑物的其余部分保持适当的高度。建筑体积进一步分为不同的部分,相对于整体而言,其比例缩小了。南侧的开口可欣赏到市中心的景色。码头上的生活在底楼引入了一种新的住房类型:码头房。这些码头房屋包括两层楼的半宽计划。结果,码头沿岸有十三扇前门,这鼓励人们沿无车码头闯入。一楼的壁柱用砖凳或花坛装饰。这些内置家具标志着码头房屋的半私人空间,刺激了居民的使用。
荷兰Westerschans 1A公寓楼外部实景图
荷兰Westerschans 1A公寓楼外部实景图
荷兰Westerschans 1A公寓楼外部实景图
荷兰Westerschans 1A公寓楼外部实景图
荷兰Westerschans 1A公寓楼外部实景图
荷兰Westerschans 1A公寓楼外部实景图
荷兰Westerschans 1A公寓楼外部实景图
荷兰Westerschans 1A公寓楼外部实景图
荷兰Westerschans 1A公寓楼外部实景图
荷兰Westerschans 1A公寓楼外部实景图
荷兰Westerschans 1A公寓楼外部实景图
荷兰Westerschans 1A公寓楼外部实景图
荷兰Westerschans 1A公寓楼外部实景图
荷兰Westerschans 1A公寓楼立面图
荷兰Westerschans 1A公寓楼立面图
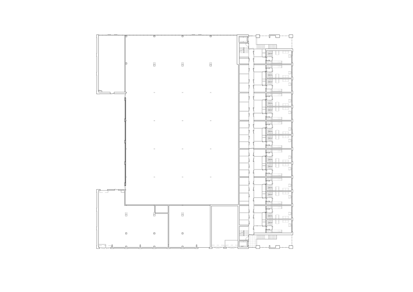
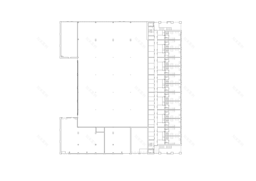
荷兰Westerschans 1A公寓楼平面图
荷兰Westerschans 1A公寓楼平面图
荷兰Westerschans 1A公寓楼平面图
荷兰Westerschans 1A公寓楼平面图
客服
消息
收藏
下载
最近






















