查看完整案例

收藏

下载

翻译
Architect:ADNS architekti;Petr Dvorak;Martin Nemec
Location:Prague, Czechia; | ;View Map
Project Year:2020
Category:Marinas
The project was created in a very confined space, defined in the area of a functional cargo port in Prague. On the north side it is limited by the functional river transhipment point, from the south by the future adjacent residential development.
From the east, the land is bounded by the Vltava riverbed and by the line of the mobile flood wall. This mobile wall completely secures and protects the adjoining residential quarter of Holešovice from a possible flood tide and runs perpendicularly in the middle of the layout through the entire ground plan of the house.
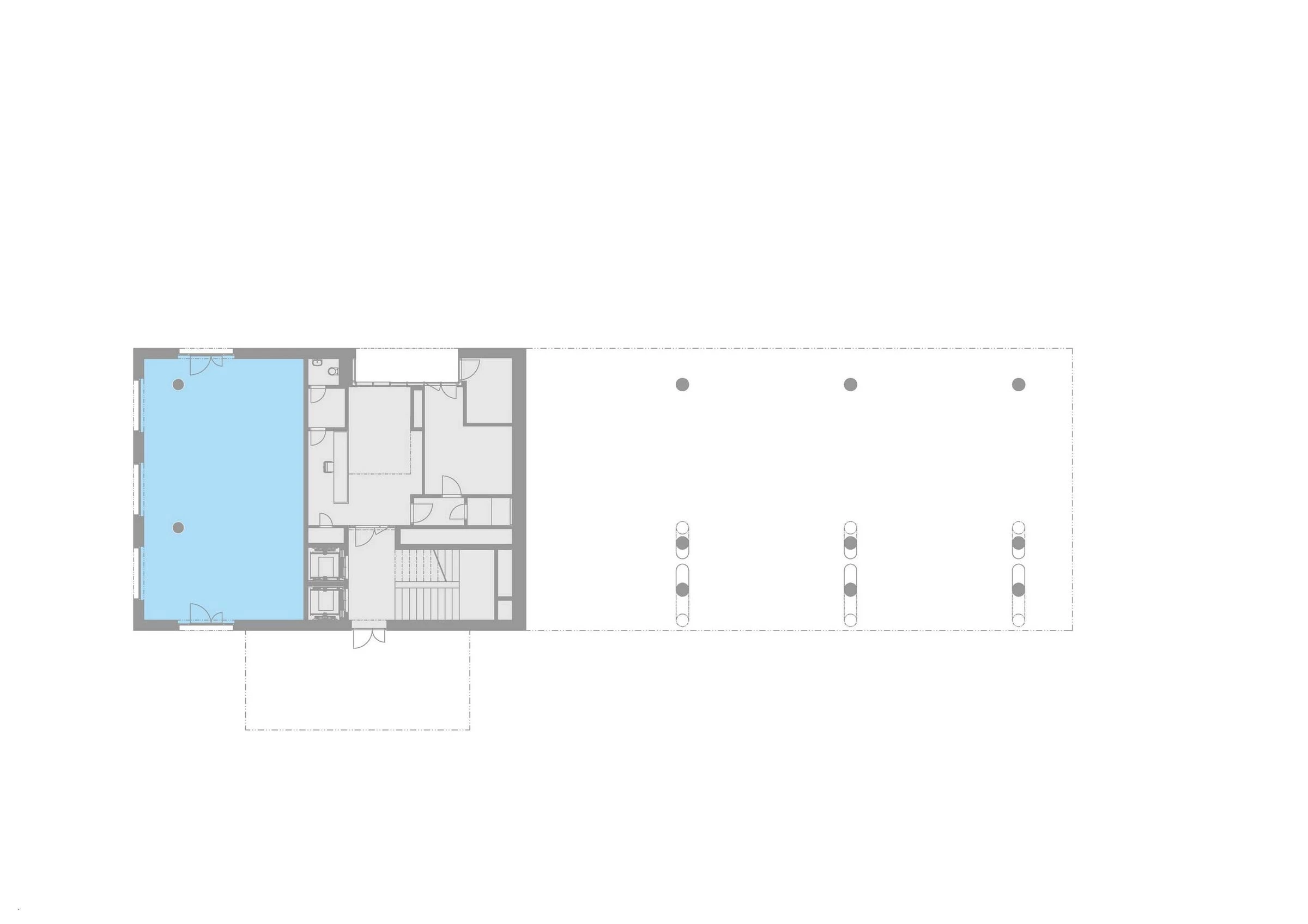
The necessity to ensure technical access and, in the event of flood threat, the collision-free construction of the flood wall is also visible in the structural design of the house, where more than half of the building is above the possible river flood. Plain concrete is thus also admitted on the columns and the ceiling of the building.
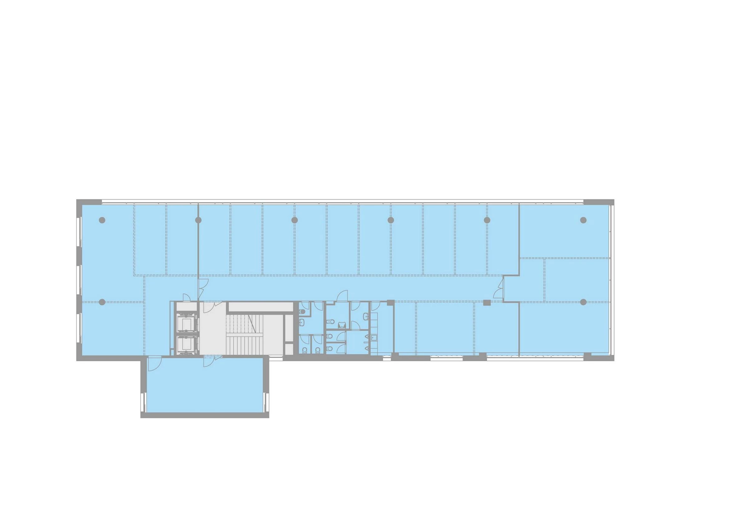
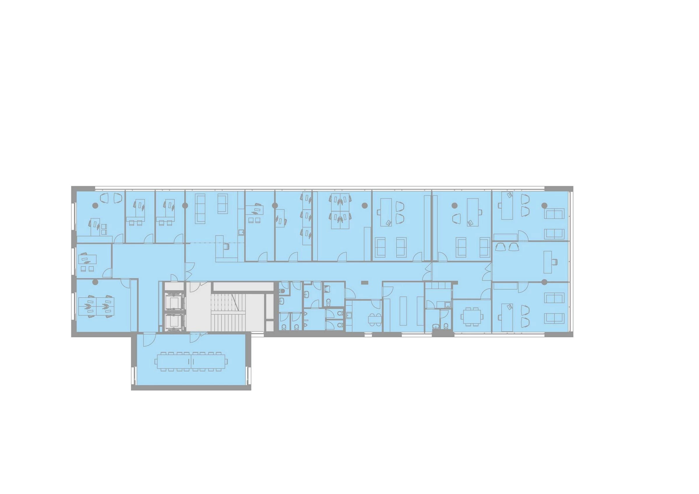
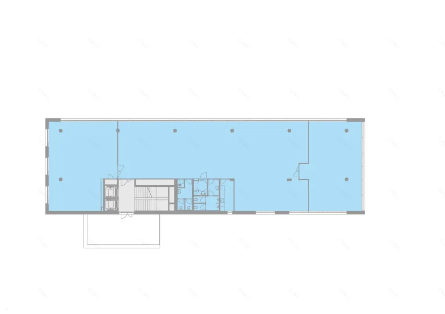
The simple layout of the house, influenced by the possibility of the site, presupposes a simple and clear use and arrangement of the office layout. The flats on the upper floors, on the other hand, benefit from the view of Prague Castle and basically the entire level of the Vltava valley. Concrete, simple large-format slabs, copper and coloured metal sheets are comprehensible means of expression for the realisation of a geometric façade that transcribes the logic of the building's layout into its external envelope. The new office building houses the new headquarters of the Czech Ports Joint Stock Company. The lettable areas are situated on the second to sixth floor.
On the upper floors, a pair of residential units is designed with a fabulous view of the Prague skyline and the bend of the Vltava River. On the ground floor of the building is a conceptual elevated space, designed for commercial lease, with a reception area adjoining the main entrance on the north side. The roof extensions, basement and mezzanine are intended to accommodate the technologies that ensure the operation of the building.
Architect and author: Petr Dvořák, Martin Němec
Cooperation on the implementation project: Petr Máša / JPa
Investor: České přístavy a.s.
Supplier: PORR a.s.
Statics: Miroslav Šváb
Photographs: BoysPlayNice
The building is complemented by parking areas on the ground. The building and its architecturally coherent, non-symbolic expression must also be understood in the context of the surrounding area, which is essentially a regenerating port district today, originally with small factories and manufacturing plants, dating from the turn of the nineteenth and twentieth centuries. Subsequently significantly shaped by urbanisation and the encroachment of the building boom before the Second World War. The site is illustrated by panoramic views eastwards to the Vltava River and the dramatic scenery of its right bank, the slopes of Bulovka with its landscape features, the White and Black Rocks.
▼项目更多图片
客服
消息
收藏
下载
最近































