查看完整案例

收藏

下载

翻译
Architect:Novos Architecture Studio
Location:Caferağa Mh., Moda Cd. No:175, 34710 Kadıköy/İstanbul, Türkiye; | ;View Map
Project Year:2022
Category:Passenger Terminals;Libraries
The Moda Pier, a historical structure designed by Vedat Tek in 1916-1917, underwent a re-functioning project to revive its role in Kadıköy's sea transportation. The restoration and re-functioning aimed to integrate the pier into contemporary needs while preserving its historical significance.
The ground level, transformed into a book-cafe and working area, features an open-plan space. Removal of additional walls created a flexible layout, offering various scenarios. Service units and toilets are discreetly placed to maintain the space's homogeneous character. The wooden ceiling, previously damaged, was restored, maintaining consistency with original woodwork.
Dark green ceramic tiles on one side enhance the perception of depth, complemented by brass finishes for transitions between textures. The service counter, crafted from a mix of green and brown terrazzo, harmonizes with the ceramic-tiled wall and wooden elements. Dark green surfaces act as reception boards, ensuring material consistency as an orientation strategy.
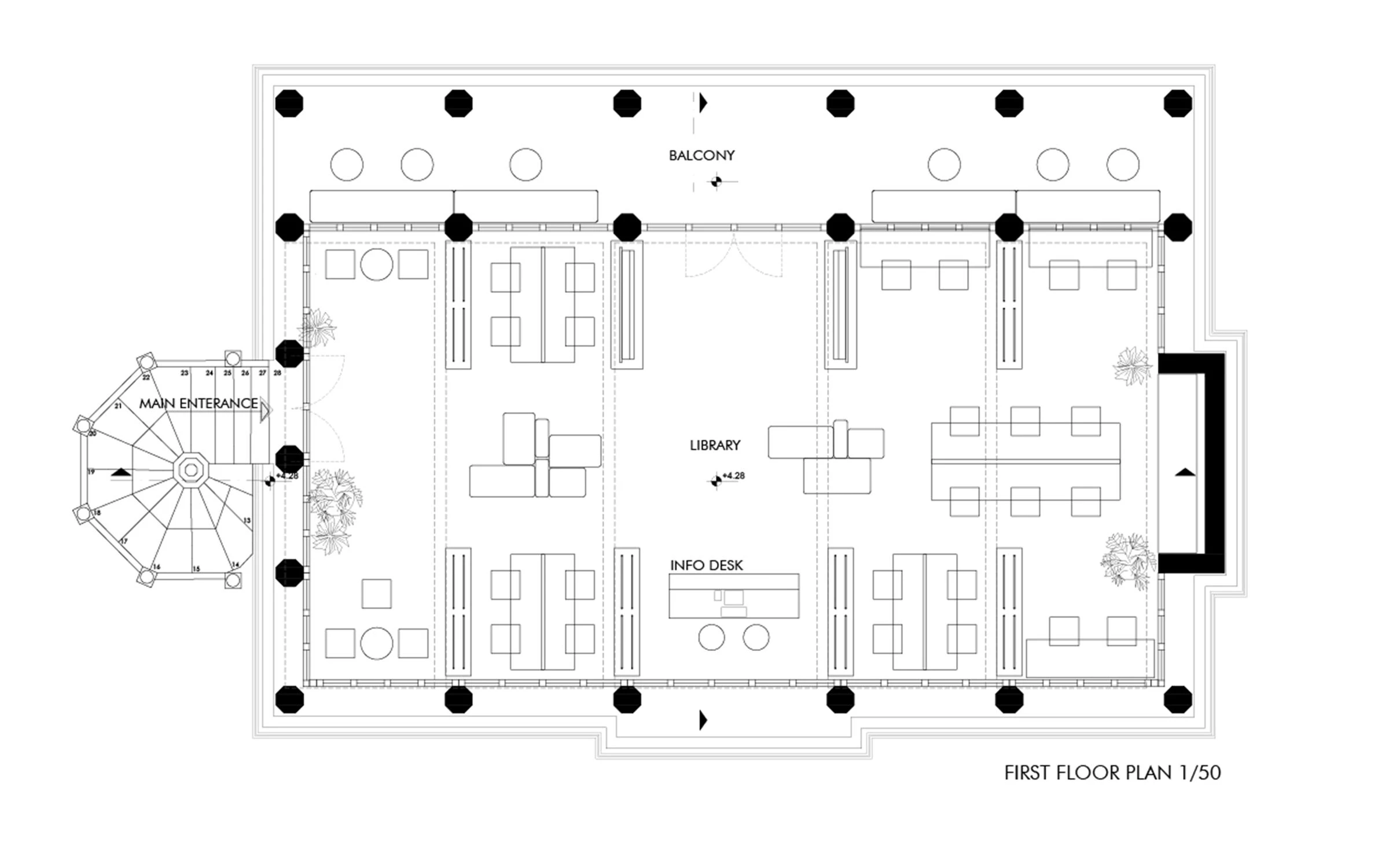
The first level houses the library, offering a transparent space with sea views. Wooden-framed glass doors and bookshelves create well-defined working areas. Customized furniture scenarios cater to diverse working atmospheres, offering users multiple options for seating arrangements and spaces.
Exposed original roofs house electromechanical equipment, presented uniformly in black-painted steel structures. Spotlights illuminate the main space and bookshelves. Anthracite bookshelves and wooden bookshelves complement the interior design, maintaining the original aesthetic.
Micro concrete flooring, chosen for durability and authenticity preservation, extends through both levels. The interior's textured materials and construction are complemented by plant arrangements, creating a warm atmosphere.
Exterior spaces retain the pier's historical function while accommodating infrastructural needs. The pedestrian path connecting land and sea serves as a sea-taxi connection node. Flexible public seating on the front terrace adjusts for ferry arrivals and passenger traffic.
Careful lighting design highlights the architectural elements, emphasizing the building's authentic character. Landscape lighting guides visitors along the path connecting Kadıköy seaside to the pier, ensuring a subtle yet welcoming approach.
Focused on contemporary design elements, this re-functioned Moda Pier project harmonizes historical preservation with modern functionality, providing versatile spaces for cultural engagement and sea-related activities.
▼项目更多图片
客服
消息
收藏
下载
最近
















