查看完整案例

收藏

下载

翻译
Project area : 117 sq.m
Project year : 2021
Location : Riyadh ,KSA
Visualised By : A10+ studio
About : Cha cafe at Riyadh city. Tea cafe under construction.
Concept : The main value of Cha is the semulation of pure environment ,by using uncovered materials which connect directly between indoor & outdoor .
Create a cozy interior that will allow guests to enjoy drinks and socialize.
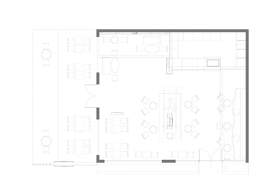
Zoning : The cafe consists of one big hall, which has access directly to outdoor area. The hall seats up to 50 guests
Exterior: A balacony seating 20 guests. A new metal structure was made which will be covered by wicker.
Cha is a cafe for locals where anyone can feel at home. The interior supports this idea and conveys that everyone is always welcome.
All rights reserved to A10+ studio
project is not availabe to republish with anyone except owners
Thank you !
客服
消息
收藏
下载
最近














