查看完整案例

收藏

下载

翻译
Architect:AZC Atelier Zündel Cristea;ARCHITRAM
Location:Rennes, France; | ;View Map
Project Year:2022
Category:Subway Stations
The context
The choice of the metro for public transportation, implies significant investments in works and in the time needed to build the infrastructures. With only 223,000 inhabitants within the city limits, Rennes is today the smallest city to have two metro lines.
AZC architectes, in association with Architram, was commissioned to design four of the fifteen metro stations for the new line B in Rennes. We carried out the design and architectural supervision assignments for the four underground stations - Mabilais, Colombier, Saint Germain and Gares - which were delivered in 2022.
As the contracting authority for the first line A, Semtcar had acquired the necessary experience to set precise objectives for line B. In particular, a contextualization on an urban scale was required. All the stations function as public places, accessible to all and characterized by harmonious and safe atmospheres. Designed by several architectural firms, the fifteen stations are sometimes underground, sometimes above ground, and have in common a charter of materials and products used.
The project
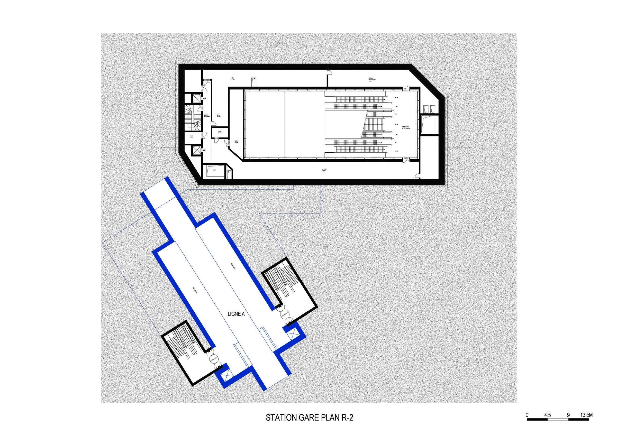
The starting point for the city has always been the idea that the metro must meet the objectives of accessibility, safety, and sustainability. In Rennes, the station is of a more human size and must be solid and well designed, because for many city dwellers, it is a landmark. The space formed by a series of ticket rooms, mezzanines, walkways, and gangways leading to the platforms is detailed and partially clad with resistant and architecturally appealing materials.
The four underground stations designed by our group are characterized by a central, full-height atrium, a striking element that allows the passenger to understand the space and to grasp, in the blink of an eye, the path that remains to be travelled between the street and the platforms, which are located at a depth of approximately 25 meters.
Delimited by a light wall made of aluminum mesh for three stations or profiled glass for the Gares station, the atrium is crossed by the stairs and escalators, nestled in self-supporting structures.
Around the atrium, the implementation of a peripheral structure of concrete slabs and stairs has the role of consolidating the civil engineering box so to eliminate, the use of buttons crossing the center.
The cladding of the surfaces is differentiated between floor, wall, and ceiling, between the non-paying zone and the paying zone, inside the atrium delimited by the mesh.
For the three stations, Saint Germain, Mabilais and Colombier, the grid is made of a stack of triangular modules, in perforated aluminum, with acoustic insulation and partially with low energy lighting.
For the Gares station, the atrium wall is made of white glass profiles, backlit.
Bathed in light, half natural, half artificial, the descent is pleasant due to the continuous changes of perspective. On superimposed mezzanines, the flows of passengers, up and down, are clearly separated; the only meeting points are at the ticketing and platform levels.
The staircases and escalators are designed as self-supporting structures, made of solid beams, which cross the central space in one line and allow the whole space to be visualized. The descent to the platforms is marked by continuous lines of artificial lighting and the tracks can be crossed by means of footbridges located on the intermediate levels between the platforms and the mezzanines.
The spaces are designed to make the metro a non-discriminatory means of transport, truly accessible to all, and to disabled people, whatever their disability. On the platforms in particular, the escalators and fixed staircases, which are essential for operation, are easily accessible and generously sized.
Sustainability of stations
Significant resources are used to build such complex structures. Whether it is a question of the choice of materials and products (cladding, lighting, equipment) or their implementation, the project favors proven, sustainable processes.
Reinforced by detailed implementation, the walls and floors are differentiated, while using a very limited palette of materials, consisting of ceramics, aluminum and concrete.
The qualities sought are resistance to wear and tear, ease of maintenance and cleaning.
The architecture of the paths plays an important role. The connecting corridors are well lit, open onto varied interior views, and offer clear routes through the levels, while meeting the constraints of flow management and safety.
The civil engineering box is lined with a technical strip, reserved for the reinforcement of the embedding wall, the installation of networks and ducts. This space is used to free the public space from the technique and make it legible and functional.
▼项目更多图片
客服
消息
收藏
下载
最近







































