查看完整案例

收藏

下载
项目名称:澳大利亚悬崖屋
位置:澳大利亚
建筑师:Auhaus建筑
该地点位于一个被风吹扫的沙丘的顶部,并下降到其底部的海滩。饱经风霜的沙丘植被显示出当地条件的恶劣性,西南风定期从巴斯海峡拂过海洋。我们为该站点设计的房屋将由同一所有者替换该站点上的先前房屋,该房屋因整个结构受到严重的钢腐蚀而遭到谴责。我们进入该项目时要充分了解该站点的历史,其任务是设计一栋可以抵御海浪和大风盐驱动的降雨而不会随着时间而恶化的房屋。一家人在这片土地和农场之间分配时间,其中包括一对夫妇,其中有2个成年子女,非常年迈的祖父母和未来的孙子。然后将房屋设计为对场地和天气条件的响应,对景观和周围植被的响应,对多代人的生活以及所需要的空间的响应。材料质朴,维护成本低,并且用澳大利亚硬木木材对原地混凝土壳进行加热。除了栖息在沙丘悬崖上,这所房子还毗邻一个公共海滩停车场。设计的关键要素是与公共领域的接口,我们试图与之互动,同时为所有者保留一定程度的隐私。
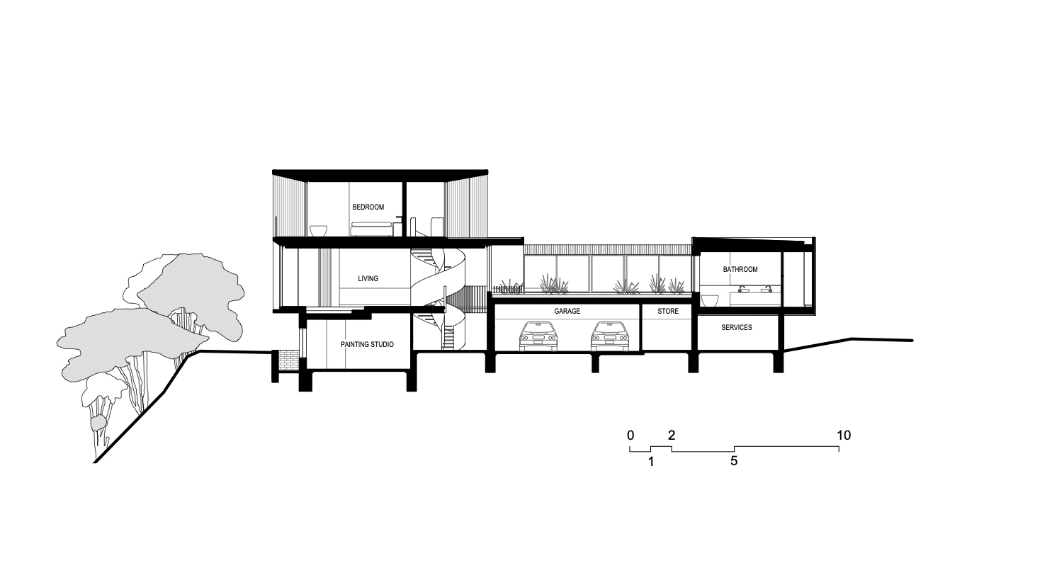
公共区域没有栅栏,只是房屋本身的边缘,我们已经将建筑物的大部分分解为这一侧,通过车库上方的大型门户向公众开放,车库带有沙丘屋顶花园它将成熟并与房屋外的景观融合。从房屋内部开始,屋顶花园被切开并构成了Point Lonsdale灯塔的视野,营造了一种双重的保护和联系感,而从停车场则提供了令人愉悦的绿色边缘,并超越了房屋的生活。在内部,错层平面图将房子设置在三个主要层上,并通过雕刻的中央中庭将各层连接起来。尽管其坚固的混凝土外壳,但该空隙仍为居住区带来轻盈通风的感觉。当人们穿过房屋时,形式的几何体放松并变得更加膨胀,反映了从公共领域到私人领域的过渡。空隙和螺旋楼梯的雕刻曲线贯穿到铺有地毯的起居区和厨房细木工中,并穿过混凝土形成异形的开口。有机线条与崎native不平的自然环境自然融为一体,在空间之间轻松流动,并反射出房屋外自然风光的美感。
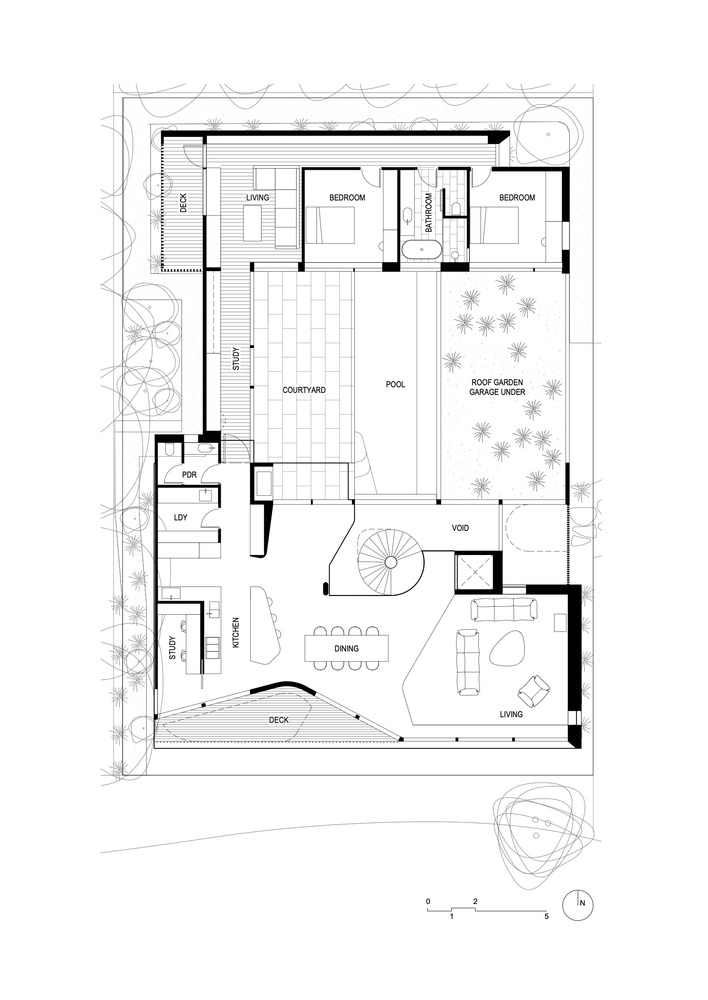
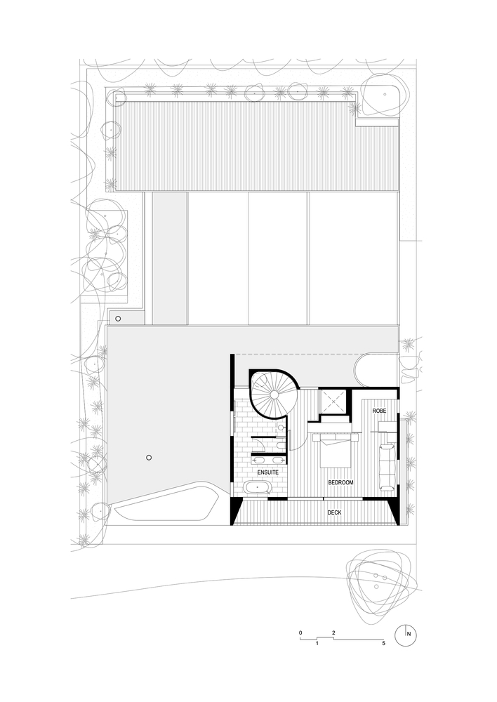
该方案围绕着场地,围绕着一个高架的,分层的中央庭院,游泳池,和屋顶花园,可以直视房屋,直望远处的海洋。居住空间位于海滩边缘,儿童卧室位于庭院的远端,父母位于海洋边缘,祖父母位于底层。几代人的分离使多代人可以长期居住,该设计提供了隐私时刻,聚集了空间,并为后代人提供了成长空间。高架的中央庭院,游泳池和屋顶花园提供了阳光明媚,更重要的是提供了庇护的户外空间,是该计划的定位点。将庭院拉到中层,高架屋顶花园位于起居区上方的策略给人的印象是,起居室实际上坐落在自然景观中,海滩被磨砂到一侧,并种有本地沙丘屋顶花园到另一个。随着时间的推移,屋顶花园将在主要的混凝土立面上生长并垂悬,从而使房屋软化到街道边缘。硬木衬里采用天然油精制而成,随着时间的流逝,银会脱落,将房子融合到沙丘灌木丛中。这是一所关于房屋的房屋。
澳大利亚悬崖屋外部实景图
澳大利亚悬崖屋外部实景图
澳大利亚悬崖屋外部实景图
澳大利亚悬崖屋内部实景图
澳大利亚悬崖屋内部实景图
澳大利亚悬崖屋内部实景图
澳大利亚悬崖屋平面图
澳大利亚悬崖屋平面图
澳大利亚悬崖屋平面图
澳大利亚悬崖屋立面图
澳大利亚悬崖屋剖面图
客服
消息
收藏
下载
最近














